2021-ben épült N+2 szobás, erkélyes, 70 nm-es lakás a 13. kerben

Ingatlan azonosító: HI-2549842

Budapest - Budapest XIII., Tégla lakás


111 600 000 Ft (304 918 €)

  • Hirdetés feladója: Ingatlaniroda
  • Pontos cím: Budapest XIII. Röppentyű utca
  • Típus: Eladó
  • Belső irodai azonosító: LK048615-5173039
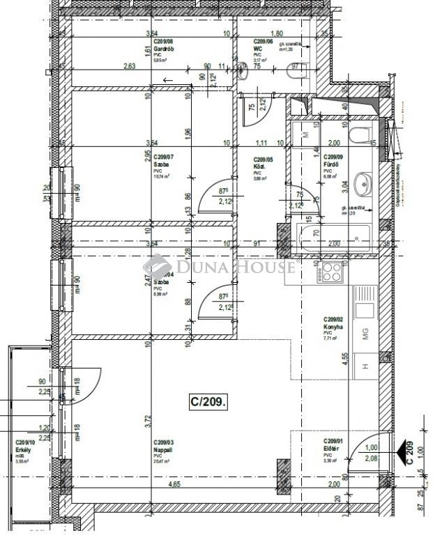
  • Alapterület: 72 m²
  • Építés éve: 2021
  • Egész szobák száma (12 m² felett): 3 db
  • Félszobák száma (6-12 m² között): 0 db
  • Fürdőszobák száma: 1 db
  • Emelet: 2. emelet
  • Ingatlan állapota: újszerű
  • Fűtés: távfűtes egyedi méréssel
  • Lift: van
  • Akadálymentesített: nincs
  • Napelem van?: nincs
  • Erkély: van
  • Légkondicionáló: nincs
  • Tájolás: nyugat
  • A lakás falazata: Tégla

Leírás

Kiváló lokáció, közkedvelt lakópark, modern, fiatalos lakások! Budapesten, a XIII. kerület Angyalföld városrészén, egy 2021-ben épült, modern, liftes lakóparkban eladó egy 70 nm-es, 2. emeleti lakás 4 nm-es erkéllyel. A lakás amerikai konyhás nappalival, étkezővel és két hálószobával rendelkezik. A környék kiváló tömegközlekedési lehetőségekkel rendelkezik! A 14-es villamos, helyi autóbusz járatok, illetve akár az M3 metró megállója is csupán perc sétára található, így a belváros is könnyen megközelíthető. A lakáshoz teremgarázsban parkolóhely vásárolható vagy bérelhető. Találja meg nálunk leendő otthonát, aktuális befektetését!

E-mail küldése a hirdetőnek

Hibás hirdetés bejelentése

Sikeres elküldtük a hiba bejelentést.

Hirdető adatai

Dr. Kocsár Janka Ildikó
E-mail cím: kocsar.janka@dh.hu
Telefonszám: +36302055998
Duna House
Hirdetés feladója: Ingatlaniroda
Ingatlaniroda: Duna House
E-mail cím: db.derek@dh.hu
Telefonszám: +3652756575

Képek



Térkép


Ajánlott ingatlanok

Tégla lakás

1 em. 65 nm-es lakás a 2 villamos vonalán

Keresés azonosító alapján: HI-2536669
  • Debrecen Honvéd utca
  • Alapterület: 65 m²
  • Ár: 53 000 000 Ft (144 809 €)
  • Feltöltés dátuma: 2026.02.12.
  •  
Tégla lakás

Kiadó belvárosi 106 nm-es N+2 szobás bútorozott lakás

Keresés azonosító alapján: HI-2536678
  • Debrecen Piac utca
  • Alapterület: 106 m²
  • Ár: 395 000 Ft (1 079 €)
  • Feltöltés dátuma: 2026.02.12.
  •  
Tégla lakás

Piac utca közelében 43 nm-es N+2 szobás lakás

Keresés azonosító alapján: HI-2549851
  • Debrecen Vörösmarty utca
  • Alapterület: 43 m²
  • Ár: 55 000 000 Ft (150 273 €)
  • Feltöltés dátuma: 2026.03.13.
  •  
Tégla lakás

Faraktár utcán 56 nm-es felújítandó lakás

Keresés azonosító alapján: HI-2549847
  • Debrecen Faraktár utca
  • Alapterület: 56 m²
  • Ár: 42 900 000 Ft (117 213 €)
  • Feltöltés dátuma: 2026.03.13.
  •  
Facebook
Blogger
Twitter
Tweets by hasznaltingatla
Flickr