Balaton utcai, nappali + 2 szobás, erkélyes lakás ELADÓ!

Ingatlan azonosító: HI-2540841

Bács-Kiskun megye - Kecskemét, Tégla lakás


82 000 000 Ft (218 667 €)

  • Hirdetés feladója: Ingatlaniroda
  • Pontos cím: Kecskemét
  • Típus: Eladó
  • Belső irodai azonosító: 3621251-5156691
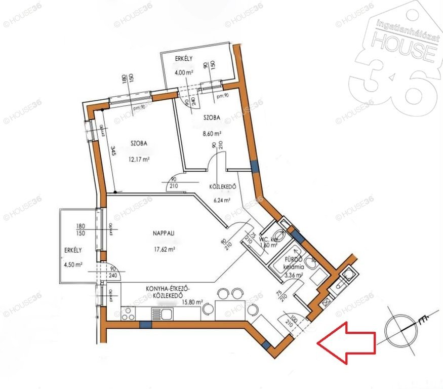
  • Alapterület: 65 m²
  • Egész szobák száma (12 m² felett): 3 db
  • Félszobák száma (6-12 m² között): 0 db
  • Emelet: 2. emelet
  • Ingatlan állapota: jó állapotú
  • Komfort: összkomfortos
  • Fűtés: gáz (cirko)
  • Lift: nincs
  • Akadálymentesített: nincs
  • Energiatanúsítvány: B
  • Napelem van?: nincs
  • Erkély: van
  • Légkondicionáló: nincs
  • A lakás falazata: Tégla

Leírás

Kecskeméten, a Balaton utcában, 2015-ös építésű, szigetelt társasházban lévő, 65 m2-es, nappali +2 szobás, II. emeleti, 2 erkélyeslakás ELADÓ garázzsal, saját tárolóval!! Jellemzők: - 2015-ös építésű, kedvelt lakópark - homlokzat szigetelt - beépített konyhabútor gépekkel - előszoba szekrény - parkettás szobák +tágas nappali - nagyon kedvező rezsi költség - gáz-cirkó fűtés - 2 db erkély + 8 m2 - klíma - műanyag nyílászárók redőnnyel, szúnyoghálóval - földszintről induló lift - mélygarázs, további 6.000.000 Ft - saját tároló további 4.000.000Ft - alacsony rezsi Figyelem! Az adatlap megbízónktól kapott adatok alapján készült. Pontosságáért felelősséget nem tudunk vállalni! Amennyiben a hirdetés felkeltette az érdeklődését és kérdése lenne a lakással kapcsolatban, akkor kérem forduljon hozzám bizalommal! 82000000 Ft Az iroda legfrissebb, aktuális kínálatát a HOUSE36 saját weboldalán találja. Referencia szám: 3621251

E-mail küldése a hirdetőnek

Hibás hirdetés bejelentése

Sikeres elküldtük a hiba bejelentést.

Hirdető adatai

Veligdán Gabriella
E-mail cím: gabriella.veligdan@h36.hu
Telefonszám: +36704150679
Hirdetés feladója: Ingatlaniroda

Képek



Térkép


Ajánlott ingatlanok

Tégla lakás

Földszinti 2 szobás, garázsos lakás 217 m2-es kerttel eladó!

Keresés azonosító alapján: HI-2530939
  • Kecskemét
  • Alapterület: 60 m²
  • Ár: 59 800 000 Ft (159 467 €)
  • Feltöltés dátuma: 2026.02.04.
  •  
Tégla lakás
  • Kecskemét
  • Alapterület: 55 m²
  • Ár: 47 900 000 Ft (127 733 €)
  • Feltöltés dátuma: 2026.02.04.
  •  
Tégla lakás
  • Kecskemét
  • Alapterület: 67 m²
  • Ár: 67 000 000 Ft (178 667 €)
  • Feltöltés dátuma: 2026.02.27.
  •  
Tégla lakás

Kivételes lehetőség a belváros peremén!

Keresés azonosító alapján: HI-2530894
  • Kecskemét
  • Alapterület: 91 m²
  • Ár: 74 200 000 Ft (197 867 €)
  • Feltöltés dátuma: 2026.02.04.
  •  
Facebook
Blogger
Twitter
Tweets by hasznaltingatla
Flickr