Belvárosban - 250 m2-es tégla épület, 50% Beépíthető Telekkel!

Ingatlan azonosító: HI-2530745

Bács-Kiskun megye - Kecskemét, Irodaházban A, A+ kat.


140 000 000 Ft (382 514 €)

  • Hirdetés feladója: Ingatlaniroda
  • Pontos cím: Kecskemét
  • Típus: Eladó
  • Belső irodai azonosító: 3620831-5088319
  • Alapterület: 250 m²
  • Építés éve: 1998
  • Félszobák száma (6-12 m² között): 0 db
  • Emelet: földszint
  • Lift: nincs
  • Akadálymentesített: nincs
  • Napelem van?: nincs
  • Légkondicionáló: nincs

Leírás

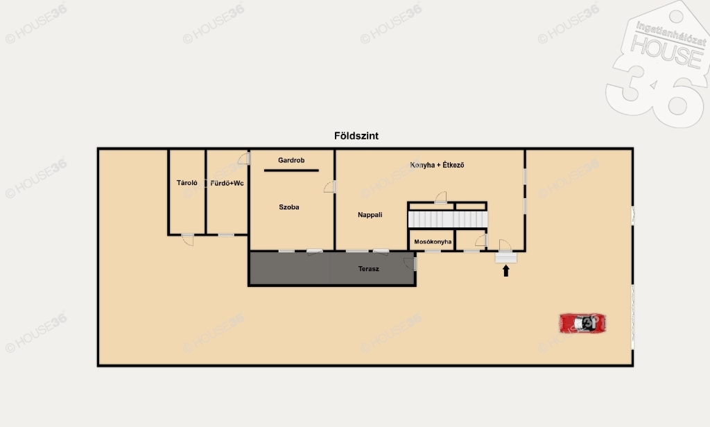
Különleges lehetőség Kecskemét belvárosában! 250 m² lakóterű családi ház – 539 m²-es telekkel, melléképülettel és kiváló adottságokkal eladó! A város szívében, mégis csendes környezetben kínáljuk megvételre ezt a tágas, 5 szobás, kétszintes családi házat, amely igazi otthon lehet nagycsaládosoknak vagy akár vállalkozásra, rendelőnek, irodának is ideális választás. Főbb jellemzők: Lakótér: 250 m² Telek területe: 539 m² Szobák száma: 5 + konyha-étkező Fürdőszobák: 2 WC-k: 2 Építés éve: 1998, felújítva: 2015 Fűtés: gáz cirkó rendszer Állapot: jó állapotú, azonnal költözhető Melléképület: tárolásra alkalmas, 18 m² Parkolás: gépkocsi beálló Tetőtér beépített, további bővítésre alkalmas ​Telek és beépíthetőség: Beépíthetőség: 50% Megengedett építménymagasság: 9,5 m Ez kiváló lehetőség akár bővítésre, új épület kialakítására vagy befektetési célra. Elhelyezkedés: Belvárosi lokáció, minden elérhető közelségben: Buszmegálló, bolt 50 méter Iskola/óvoda: 100 méter Mégis nyugodt, családias környezet, rendezett utcafronttal. Figyelem az adatlap megbízónktól kapott adatok alapján készült, pontosságáért felelősséget nem tudunk vállalni! Az iroda legfrissebb, aktuális kínálatát a HOUSE36 saját weboldalán találja!

E-mail küldése a hirdetőnek

Hibás hirdetés bejelentése

Sikeres elküldtük a hiba bejelentést.

Hirdető adatai

Szécsényi Dóra
E-mail cím: dora.szecsenyi@h36.hu
Telefonszám: +36704211216
Hirdetés feladója: Ingatlaniroda

Képek



Térkép


Ajánlott ingatlanok

Új építésű lakás

*A belváros új ékköve, pár perc sétára a Főtértől*

Keresés azonosító alapján: HI-2541330
  • Kecskemét
  • Alapterület: 48 m²
  • Ár: 67 900 000 Ft (185 519 €)
  • Feltöltés dátuma: 2026.02.25.
  •  
Családi ház
  • Kecskemét
  • Alapterület: 154 m²
  • Telekterület: 362 m²
  • Ár: 138 900 000 Ft (379 508 €)
  • Feltöltés dátuma: 2026.02.04.
  •  
Tégla lakás

Kecskemét belvárosában, első emeleti lakás eladó!

Keresés azonosító alapján: HI-2530735
  • Kecskemét
  • Alapterület: 54 m²
  • Ár: 62 900 000 Ft (171 858 €)
  • Feltöltés dátuma: 2026.02.04.
  •  
Családi ház

Kecskemét közelében felújított lovas tanya eladó!

Keresés azonosító alapján: HI-2549234
  • Kecskemét
  • Alapterület: 109 m²
  • Telekterület: 2 877 m²
  • Ár: 79 900 000 Ft (218 306 €)
  • Feltöltés dátuma: 2026.03.12.
  •  
Facebook
Blogger
Twitter
Tweets by hasznaltingatla
Flickr