Rábapordány - 2 szoba nappalis ház melléképületekkel eladó

Ingatlan azonosító: HI-2506047

Győr-Moson-Sopron megye - Rábapordány, Családi ház


28 900 000 Ft (74 677 €)

  • Hirdetés feladója: Ingatlaniroda
  • Pontos cím: Rábapordány
  • Típus: Eladó
  • Belső irodai azonosító: 7184
  • Alapterület: 100 m²
  • Telekterület: 3 525 m² ( 980 négyszögöl )
  • Épület szintjei: földszintes
  • Egész szobák száma (12 m² felett): 3 db
  • Nappalik száma: 1 db
  • Fürdőszobák száma: 1 db
  • Wc-k száma: 1 db
  • Wc egyben vagy külön: Különálló
  • Ingatlan állapota: jó állapotú
  • Komfort: összkomfortos
  • Fűtés: cirkó + vegyes tüzelésű kazán
  • Parkolás: garázs - az árban
  • Pince: nincs
  • Akadálymentesített: nincs
  • Napelem van?: nincs
  • Légkondicionáló: nincs
  • Kilátás: udvari
  • Falazat ház: Tégla
  • Víz: van
  • Villany: van
  • Gáz: van
  • Csatorna: van

Leírás

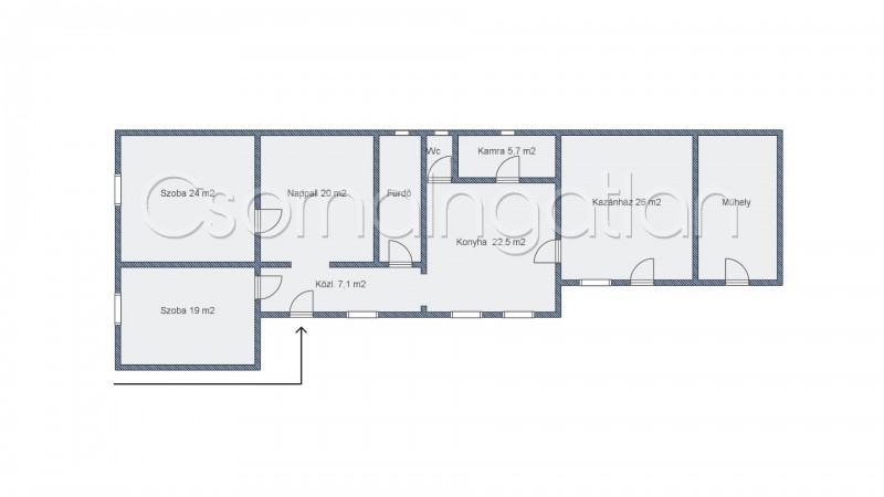
Rábapordány - Tégla építésű, 2 hálószobás családi ház ELADÓ 100 m2-es családi ház 3525 m2-es telken eladó Rábapordányban HELYISÉGEK: - 2 hálószoba - nappali - közlekedő - konyha - fürdőszoba - WC - kamra - kazánház - műhely - garázs MŰSZAKI JELLEMZŐK: - magasított alap - tégla falazat - cserép tetőfedés - fa nyílászárók - fűtés gázkazán és vegyestüzelésű kazán által - meleg víz villanybojler és gáz bojler által is megoldott FONTOS LEHET: - 2 tulajdonos - teljesen körbekerített telek - parkolás 1 állásos garázsban RÁBAPORDÁNY: A kb. 1000 fős település Csornától 9 km-re fekszik. - Pápa- Csorna vasútvonal mentén - óvoda, alsó osztályos általános iskola - posta, bolt helyben megtalálható - falusi CSOK a településen igényelhető

E-mail küldése a hirdetőnek

Hibás hirdetés bejelentése

Sikeres elküldtük a hiba bejelentést.

Hirdető adatai

CsornaIngatlan
E-mail cím: ingatlancsorna@gmail.com
Telefonszám: +36-20-5011177
Hirdetés feladója: Ingatlaniroda

Képek



Ajánlott ingatlanok

Családi ház

Páli - tágas, elkezdett felújítással ház eladó

Keresés azonosító alapján: HI-2474290
  • Páli
  • Alapterület: 170 m²
  • Telekterület: 2 439 m²
  • Ár: 26 900 000 Ft (69 509 €)
  • Feltöltés dátuma: 2025.09.15.
  •  
Családi ház

Veszkény - új építésű 3 szoba nappalis ház eladó

Keresés azonosító alapján: HI-2510688
  • Veszkény
  • Alapterület: 174 m²
  • Telekterület: 721 m²
  • Ár: 95 000 000 Ft (245 478 €)
  • Feltöltés dátuma: 2025.12.08.
  •  
Családi ház

Ikrény - 2 szintes, tágas, szigetelt ház eladó

Keresés azonosító alapján: HI-2415883
  • Ikrény
  • Alapterület: 160 m²
  • Telekterület: 868 m²
  • Ár: 70 000 000 Ft (180 879 €)
  • Feltöltés dátuma: 2025.05.08.
  •  
Családi ház
  • Bágyogszovát
  • Alapterület: 110 m²
  • Telekterület: 2 800 m²
  • Ár: 48 000 000 Ft (124 031 €)
  • Feltöltés dátuma: 2025.07.29.
  •  
Facebook
Blogger
Twitter
Tweets by hasznaltingatla
Flickr