Veszkény - új építésű 3 szoba nappalis ház eladó

Ingatlan azonosító: HI-2510688

Győr-Moson-Sopron megye - Veszkény, Családi ház


95 000 000 Ft (244 216 €)

  • Hirdetés feladója: Ingatlaniroda
  • Pontos cím: Veszkény
  • Típus: Eladó
  • Belső irodai azonosító: 2789
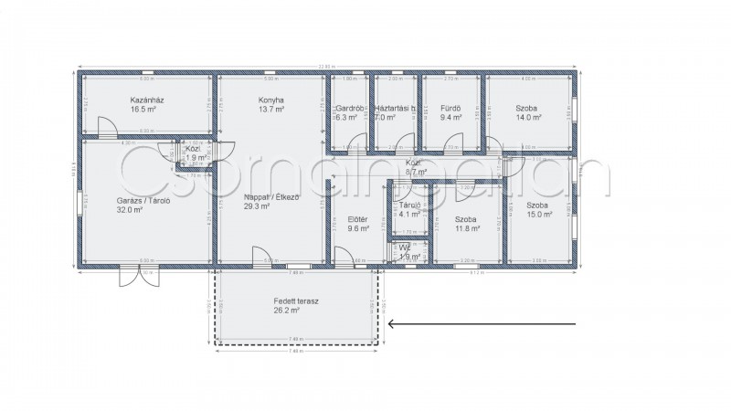
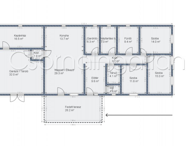
  • Alapterület: 174 m²
  • Telekterület: 721 m² ( 200 négyszögöl )
  • Építés éve: 2025
  • Épület szintjei: földszintes
  • Egész szobák száma (12 m² felett): 4 db
  • Nappalik száma: 1 db
  • Fürdőszobák száma: 1 db
  • Wc-k száma: 1 db
  • Wc egyben vagy külön: Különálló
  • Ingatlan állapota: új építésű
  • Komfort: összkomfortos
  • Fűtés: vegyes tüzelésű kazán
  • Parkolás: garázs - az árban
  • Pince: nincs
  • Akadálymentesített: nincs
  • Napelem van?: nincs
  • Légkondicionáló: nincs
  • Kilátás: udvari
  • Falazat ház: Tégla
  • Nyílászárók: Műanyag 3 rétegű hőszigetelt üvegezéssel
  • Víz: van
  • Villany: van
  • Gáz: az utcában
  • Csatorna: van

Leírás

Veszkény - 174 m2-es alapterületű új építésű családi ház 721 m2-es telken eladó. HELYISÉGEK: - 3 külön bejáratú szoba (11,84 m2; 14 m2; 15 m2) - tágas nappali + étkező (30 m2) - konyha (14 m2) - háztartási helyiség (7 m2) - méretes fürdő (9,45 m2), külön helyiségben a toalett - gardrób (6,29 m2) - tároló (4 m2) - előtér (13,17 m2) A garázs a lakótérből megközelíthető: - kazánház (17 m2) - garázs (32,34 m2) Hörmann szekcionált garázskapuval - fedett terasz (26 m2) MŰSZAKI JELLEMZŐK: - Porotherm tégla falazat - Terrán betoncserép tetőfedés - Lindab ereszcsatorna - műanyag nyílászárók 3 rétegű hőszigetelő üvegezéssel - 15 cm vastag hőszigetelés - fűtés faelgázosító kazánnal, puffertartály segítségével, központi szabályozóval - hőleadás padlófűtés és radiátorok által - meleg víz villanybojler által FONTOS LEHET: - a lakóház központhoz közeli csendes utcában található - az ingatlan fűtéskész állapotban azonnal átvehető - rövid határidővel akár kulcsrakészen is birtokba vehető - lehetőség van a burkolatok színben és minőségi választására is TELEK: - 721 m2 - parkolni burkolt kocsibeállón és a házból megközelíthető garázsban is lehetséges - előkert VESZKÉNY: A kb. 900 fős település Kapuvártól 8 km-re, Csornától 14 km-re fekszik - vonattal, busszal jól megközelíthető - óvoda, általános iskola - orvosi, védőnői, állatorvosi szolgálat - boltok, posta stb. helyben megtalálható

E-mail küldése a hirdetőnek

Hibás hirdetés bejelentése

Sikeres elküldtük a hiba bejelentést.

Hirdető adatai

CsornaIngatlan
E-mail cím: ingatlancsorna@gmail.com
Telefonszám: +36-20-5011177
Hirdetés feladója: Ingatlaniroda

Képek



Ajánlott ingatlanok

Családi ház

Kóny - kiadó 5 szobás családi ház

Keresés azonosító alapján: HI-2279286
  • Kóny
  • Alapterület: 160 m²
  • Telekterület: 716 m²
  • Ár: 340 000 Ft (874 €)
  • Feltöltés dátuma: 2024.08.08.
  •  
Családi ház

Bágyogszovát - 3 szoba nappalis ház új cserépfedéssel eladó

Keresés azonosító alapján: HI-2269831
  • Bágyogszovát
  • Alapterület: 135 m²
  • Telekterület: 2 924 m²
  • Ár: 74 900 000 Ft (192 545 €)
  • Feltöltés dátuma: 2024.08.01.
  •  
Családi ház

Kapuvár - 2 lakrészes ház apartmanokkal nagy telken eladó

Keresés azonosító alapján: HI-2115727
  • Kapuvár
  • Alapterület: 250 m²
  • Telekterület: 3 443 m²
  • Ár: 115 000 000 Ft (295 630 €)
  • Feltöltés dátuma: 2023.08.03.
  •  
Családi ház

Szilsárkány - 1987 -ben épült 3 szobás ház eladó

Keresés azonosító alapján: HI-2491606
  • Szilsárkány
  • Alapterület: 74 m²
  • Telekterület: 1 975 m²
  • Ár: 36 900 000 Ft (94 859 €)
  • Feltöltés dátuma: 2025.10.21.
  •  
Facebook
Blogger
Twitter
Tweets by hasznaltingatla
Flickr