Mórichida - 83 m2-es parasztház jellegű ingatlan eladó

Ingatlan azonosító: HI-2534482

Győr-Moson-Sopron megye - Mórichida, Családi ház


6 900 000 Ft (18 302 €)

  • Hirdetés feladója: Ingatlaniroda
  • Pontos cím: Mórichida
  • Típus: Eladó
  • Belső irodai azonosító: 2948
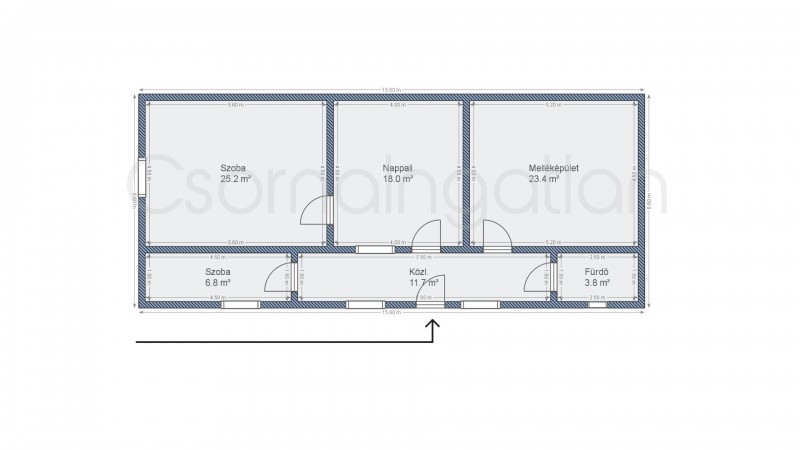
  • Alapterület: 83 m²
  • Telekterület: 1 534 m² ( 427 négyszögöl )
  • Épület szintjei: földszintes
  • Egész szobák száma (12 m² felett): 1 db
  • Félszobák száma (6-12 m² között): 1 db
  • Nappalik száma: 1 db
  • Fürdőszobák száma: 1 db
  • Wc-k száma: 1 db
  • Ingatlan állapota: felújítandó
  • Komfort: komfortos
  • Fűtés: egyéb
  • Parkolás: parkolás telken belül
  • Pince: nincs
  • Akadálymentesített: nincs
  • Napelem van?: nincs
  • Légkondicionáló: nincs
  • Kilátás: udvari
  • Falazat ház: Vályog + tégla
  • Tároló: van
  • Víz: van
  • Villany: van
  • Gáz: az utcában

Leírás

Mórichida csendes, természetközeli részén 83 m2-es felújítás alatt lévő ház 1534 m2-es telken eladó. HELYISÉGEK: - hálószoba - félszoba - nappali - fürdő - közlekedő - melléképület MŰSZAKI JELLEMZŐK: - vegyes falazat - víz, villany a házban - gázcsonk az utcában - jelenleg kályhával lehet fűteni TELEK: - 1534 m2-es - melléképület - parkolás az udvaron lehetséges MÓRICHIDA: A kb. 830 fős település Téttől 7 km-re, Csornától 22 km-re, Győrtől 32 km-re fekszik. - óvoda - háziorvos és védőnői szolgálat - élelmiszer-, szerszámbolt és vendéglő helyben megtalálható - falusi CSOK a településen igényelhető

E-mail küldése a hirdetőnek

Hibás hirdetés bejelentése

Sikeres elküldtük a hiba bejelentést.

Hirdető adatai

CsornaIngatlan
E-mail cím: ingatlancsorna@gmail.com
Telefonszám: +36-20-5011177
Hirdetés feladója: Ingatlaniroda

Képek



Ajánlott ingatlanok

Családi ház

Kóny - kiadó 5 szobás családi ház

Keresés azonosító alapján: HI-2279286
  • Kóny
  • Alapterület: 160 m²
  • Telekterület: 716 m²
  • Ár: 340 000 Ft (902 €)
  • Feltöltés dátuma: 2024.08.08.
  •  
Családi ház

Mórichida - komfortos 2 szobás ház eladó

Keresés azonosító alapján: HI-2378527
  • Mórichida
  • Alapterület: 68 m²
  • Telekterület: 600 m²
  • Ár: 18 000 000 Ft (47 745 €)
  • Feltöltés dátuma: 2025.02.24.
  •  
Családi ház

Kapuvár - összkomfortos 3 szobás ház eladó

Keresés azonosító alapján: HI-2533478
  • Kapuvár
  • Alapterület: 80 m²
  • Telekterület: 900 m²
  • Ár: 41 500 000 Ft (110 080 €)
  • Feltöltés dátuma: 2026.02.05.
  •  
Családi ház

Szilsárkány - 3 szobás masszív családi ház eladó

Keresés azonosító alapján: HI-2534484
  • Szilsárkány
  • Alapterület: 100 m²
  • Telekterület: 2 510 m²
  • Ár: 32 000 000 Ft (84 881 €)
  • Feltöltés dátuma: 2026.02.09.
  •  
Facebook
Blogger
Twitter
Tweets by hasznaltingatla
Flickr