Rábatamási - 2 szobás tehermentes ház eladó

Ingatlan azonosító: HI-2545062

Győr-Moson-Sopron megye - Rábatamási, Családi ház


10 500 000 Ft (28 926 €)

  • Hirdetés feladója: Ingatlaniroda
  • Pontos cím: Rábatamási
  • Típus: Eladó
  • Belső irodai azonosító: 7198
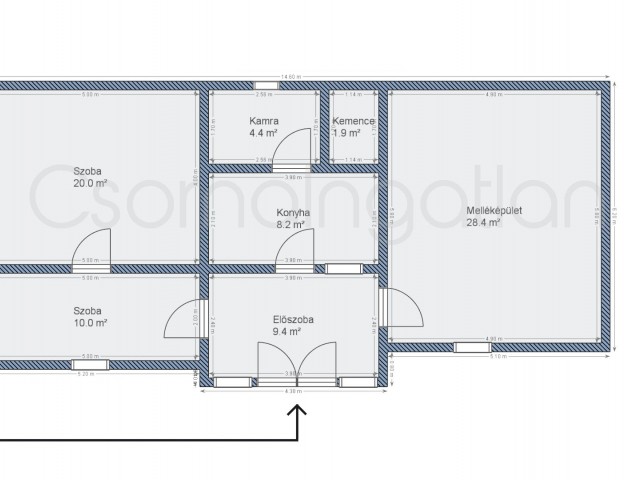
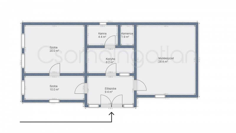
  • Alapterület: 80 m²
  • Telekterület: 720 m² ( 200 négyszögöl )
  • Épület szintjei: földszintes
  • Egész szobák száma (12 m² felett): 2 db
  • Ingatlan állapota: felújítandó
  • Fűtés: egyéb
  • Pince: nincs
  • Akadálymentesített: nincs
  • Napelem van?: nincs
  • Légkondicionáló: nincs
  • Falazat ház: Vályog + tégla
  • Víz: az utcában
  • Villany: van
  • Gáz: az utcában
  • Csatorna: az utcában

Leírás

80 m2-es parasztház jellegű ingatlan 720 m2-es telken eladó. HELYISÉGEK: - 2 szoba - konyha - kamra - előszoba - melléképület MŰSZAKI JELLEMZŐK: - vegyes falazat - ipari áram - többi közmű az utcában található - hagyományos fa nyílászárók - jelenleg nincs fűtés kiépítve TELEK: - 720 m2-es - körbekerített - fúrt kút - tehermentes RÁBATAMÁSI A kb. 940 fős település Csornától 8 km-re, Kapuvártól 12 km-re fekszik - a 85-ös főút és a Győr–Sopron vasútvonal mellett - óvoda és általános iskola - posta, bolt helyben megtalálható - falusi CSOK a településen igényelhető

E-mail küldése a hirdetőnek

Hibás hirdetés bejelentése

Sikeres elküldtük a hiba bejelentést.

Hirdető adatai

CsornaIngatlan
E-mail cím: ingatlancsorna@gmail.com
Telefonszám: +36-20-5011177
Hirdetés feladója: Ingatlaniroda

Képek



Ajánlott ingatlanok

Családi ház

Szil - 3 szobás, gázfűtéses ház eladó

Keresés azonosító alapján: HI-2567350
  • Szil
  • Alapterület: 70 m²
  • Telekterület: 1 662 m²
  • Ár: 26 900 000 Ft (74 105 €)
  • Feltöltés dátuma: 2026.05.04.
  •  
Családi ház

Kemenesszentpéter - 2 szoba nappalis ház nagy telken eladó

Keresés azonosító alapján: HI-2393199
  • Kemenesszentpéter
  • Alapterület: 70 m²
  • Telekterület: 3 288 m²
  • Ár: 28 000 000 Ft (77 135 €)
  • Feltöltés dátuma: 2025.03.24.
  •  
Családi ház

Fehértó - lótartásra alkalmas, nagy területű ingatlan eladó

Keresés azonosító alapján: HI-2458236
  • Fehértó
  • Alapterület: 127 m²
  • Telekterület: 3 377 m²
  • Ár: 128 000 000 Ft (352 617 €)
  • Feltöltés dátuma: 2025.08.05.
  •  
Családi ház

Malomsok - 3 szoba nappalis összkomfortos ház eladó

Keresés azonosító alapján: HI-2341751
  • Malomsok
  • Alapterület: 110 m²
  • Telekterület: 1 593 m²
  • Ár: 29 000 000 Ft (79 890 €)
  • Feltöltés dátuma: 2024.12.05.
  •  
Facebook
Blogger
Twitter
Tweets by hasznaltingatla
Flickr