Tököl, Pesti úti lakótelepen 2 szobás téglalakás!

Ingatlan azonosító: HI-2551544

Pest megye - Tököl, Tégla lakás


49 900 000 Ft (128 278 €)

  • Hirdetés feladója: Ingatlaniroda
  • Pontos cím: Tököl
  • Típus: Eladó
  • Belső irodai azonosító: 1238
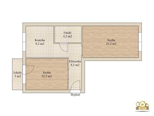
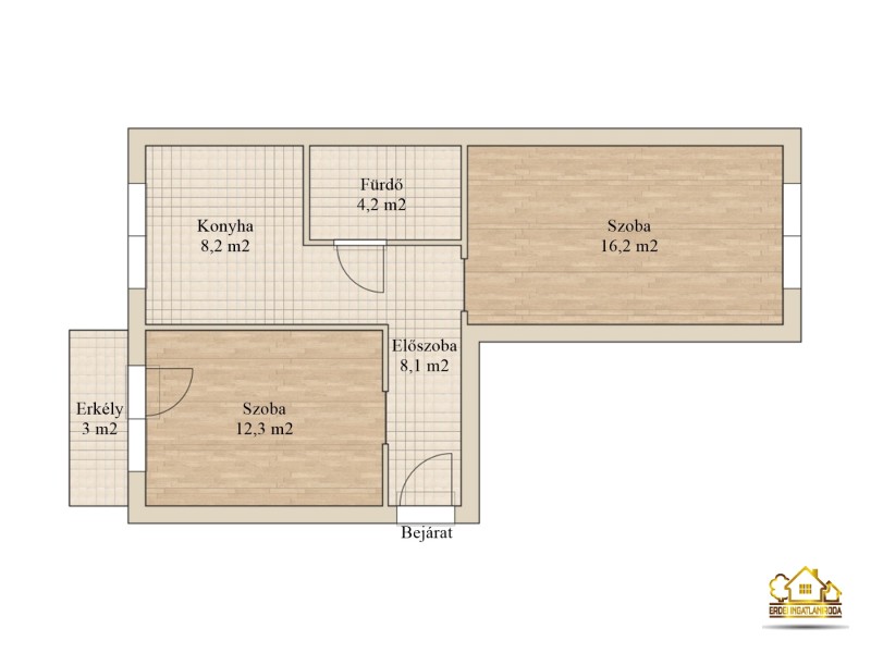
  • Alapterület: 49 m²
  • Építés éve: 1960
  • Egész szobák száma (12 m² felett): 2 db
  • Fürdőszobák száma: 1 db
  • Wc egyben vagy külön: Egybeépített
  • Emelet: 3. emelet
  • Ingatlan állapota: jó állapotú
  • Komfort: összkomfortos
  • Fűtés: gáz (cirko)
  • Lift: nincs
  • Parkolás: utcán, közterületen - ingyenes
  • Tetőtér - lakás: nem tetőtéri
  • Akadálymentesített: nincs
  • Napelem van?: nincs
  • Erkély: van
  • Légkondicionáló: van
  • Kilátás: utcai
  • Tájolás: dél
  • A lakás falazata: Tégla
  • Homlokzatszigetelés: 10 cm
  • Közös költség mértéke: 9000
  • Tároló: van
  • Nyílászárók: Műanyag 2 rétegű hőszigetelt üvegezéssel
  • Víz: van
  • Villany: van
  • Gáz: van
  • Csatorna: van
  • Kábel Tv: van

Leírás

Eladásra kínálunk Tökölön a Pestí úti lakótelepen egy 4 emeletes társasház III. emeletén elhelyezkedő 49 m²-es téglalakást. Az ingatlanban 2 külön nyíló szoba, konyha, fürdőszoba, előszoba és egy 3 m²-es erkély kapott helyet. Rendelkezésre áll a pincében egy 3 m²-es tároló is. Fűtéséről kombi cirkó gondoskodik, radiátoros hőleadással, a mindenkori kellemes hőmérsékletet 2 db hűtő-fűtő klíma biztosítja. A társasház 2015-ben felújításra került, ennek keretében 10 cm-es homlokzati szigetelés került fel, illetve új műanyag nyílászárók kerültek beépítésre, melyeket redőnnyel is felszereltek. Közös költség: 9 000 Ft/hó A beépített konyhabútor az ár részét képezi. A környéken kisbolt, étterem, buszmegálló, iskola és óvoda is megtalálható! További információkért keressen bizalommal!

E-mail küldése a hirdetőnek

Hibás hirdetés bejelentése

Sikeres elküldtük a hiba bejelentést.

Hirdető adatai


Erdei Imre
E-mail cím: erdeiimre75@gmail.com
Telefonszám: +36-30-7390398
Erdei Ingatlaniroda
Hirdetés feladója: Ingatlaniroda
Ingatlaniroda: Erdei Ingatlaniroda
E-mail cím: iroda@erdeiingatlan.hu
Telefonszám: +36-30-7010350

Képek



Ajánlott ingatlanok

Hétvégi házas

Azonnal költözhető, vízparti ház Szigetszentmiklóson!

Keresés azonosító alapján: HI-2189459
  • Szigetszentmiklós
  • Alapterület: 30 m²
  • Telekterület: 750 m²
  • Ár: 25 900 000 Ft (66 581 €)
  • Feltöltés dátuma: 2024.03.11.
  •  
Ikerház

Új építésű 3 szoba nappalis ikerházi lakás Dunavarsányban!

Keresés azonosító alapján: HI-2512757
  • Dunavarsány
  • Alapterület: 93 m²
  • Telekterület: 444 m²
  • Ár: 99 800 000 Ft (256 555 €)
  • Feltöltés dátuma: 2025.12.15.
  •  
Ikerház

Új építésű nettó 93 m²-es ikerházi lakás Dunavarsányban!

Keresés azonosító alapján: HI-2512758
  • Dunavarsány
  • Alapterület: 93 m²
  • Telekterület: 444 m²
  • Ár: 99 800 000 Ft (256 555 €)
  • Feltöltés dátuma: 2025.12.15.
  •  
Zártkert

Szigetszentmiklós, Tagi bányató környékén 879 m²-es telek!

Keresés azonosító alapján: HI-2545975
  • Szigetszentmiklós
  • Telekterület: 879 m²
  • Ár: 20 600 000 Ft (52 956 €)
  • Feltöltés dátuma: 2026.03.03.
  •  
Facebook
Blogger
Twitter
Tweets by hasznaltingatla
Flickr