Családi ház Kecskeméten!

Ingatlan azonosító: HI-2530360

Bács-Kiskun megye - Kecskemét, Könnyűszerkezetes ház


85 000 000 Ft (219 072 €)

  • Hirdetés feladója: Ingatlaniroda
  • Pontos cím: Kecskemét
  • Típus: Eladó
  • Belső irodai azonosító: 3620450-5031666
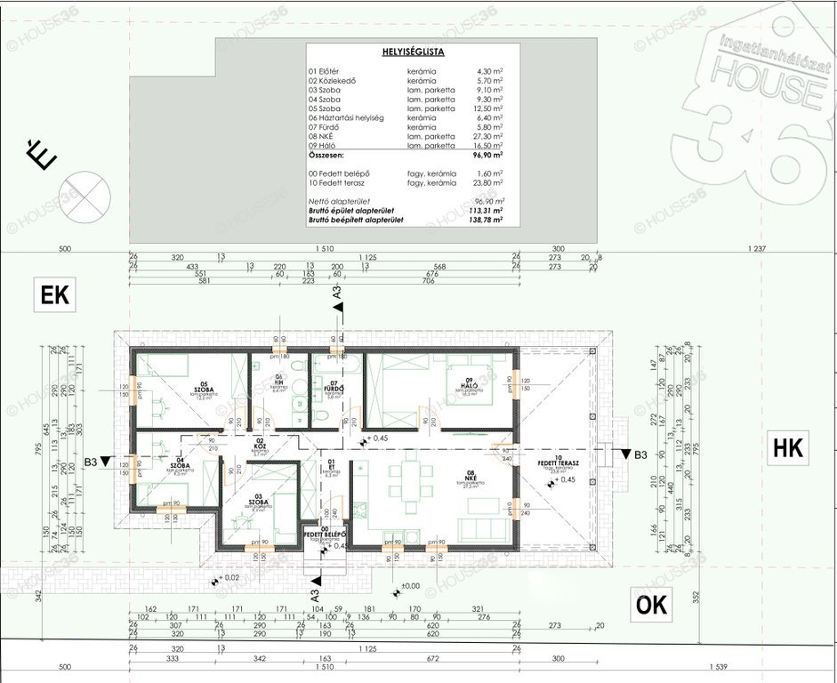
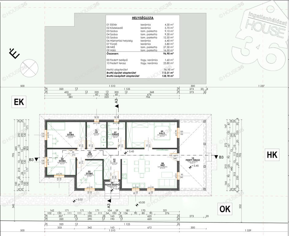
  • Alapterület: 96 m²
  • Telekterület: 575 m² ( 160 négyszögöl )
  • Építés éve: 2026
  • Egész szobák száma (12 m² felett): 4 db
  • Félszobák száma (6-12 m² között): 0 db
  • Ingatlan állapota: új építésű
  • Fűtés: egyéb
  • Pince: nincs
  • Akadálymentesített: nincs
  • Napelem van?: nincs
  • Légkondicionáló: nincs

Leírás

Kecskeméten az egész család számára tökéletes kényelmet biztosító, remek elrendezésű, új építésű családi ház csak önre vár. A 4 szoba minden családtagnak biztosít egy kis elvonulási lehetőséget. A kényelmes, tágas nappaliból a fedett teraszra léphet ki. - 96,9 m2 nettó lakótér - 575 m2 telek + 1,6 m2 fedett belépő + 24,4 m2 fedett terasz - hőszivattyú - padlófűtés - 4 szoba - gardrób - nagy nappali konyhával, étkezővel - háztartási helyiség - plusz külön wc - energia takarékos - 2026 év végi átadás Választható burkolatok, színek, nyílászárók, szaniterek. Hívjon.Nézzük meg a minta házakat akár hétvégén is. A HOUSE36 kínálatában lévő összes ingatlannal kapcsolatban tudok felvilágosítást nyújtani. Szolgáltatásaink kereső ügyfeleink részére ingyenesek. Az iroda legfrissebb, aktuális kínálatát a HOUSE36 saját weboldalán találja!

E-mail küldése a hirdetőnek

Hibás hirdetés bejelentése

Sikeres elküldtük a hiba bejelentést.

Hirdető adatai

Kocsis Zsuzsanna
E-mail cím: zsuzsanna.kocsis@h36.hu
Telefonszám: +36707959014
Hirdetés feladója: Ingatlaniroda

Képek



Térkép


Ajánlott ingatlanok

Könnyűszerkezetes ház

Kecskemét - Kadafalván új építésű ház.

Keresés azonosító alapján: HI-2530371
  • Kecskemét
  • Alapterület: 94 m²
  • Telekterület: 450 m²
  • Ár: 105 000 000 Ft (270 619 €)
  • Feltöltés dátuma: 2026.02.04.
  •  
Könnyűszerkezetes ház

Új építésű ikerház eladó Helvécián!

Keresés azonosító alapján: HI-2539877
  • Kecskemét
  • Alapterület: 49 m²
  • Telekterület: 320 m²
  • Ár: 49 900 000 Ft (128 608 €)
  • Feltöltés dátuma: 2026.02.21.
  •  
Könnyűszerkezetes ház

Költözzön Kecskemétre!

Keresés azonosító alapján: HI-2530335
  • Kecskemét
  • Alapterület: 96 m²
  • Telekterület: 575 m²
  • Ár: 85 000 000 Ft (219 072 €)
  • Feltöltés dátuma: 2026.02.04.
  •  
Könnyűszerkezetes ház

Kecskemét - Kadafalván, költözhető új építésű ház!

Keresés azonosító alapján: HI-2553629
  • Kecskemét
  • Alapterület: 167 m²
  • Telekterület: 773 m²
  • Ár: 150 000 000 Ft (386 598 €)
  • Feltöltés dátuma: 2026.03.24.
  •  
Facebook
Blogger
Twitter
Tweets by hasznaltingatla
Flickr