Csendes, nyugodt környéken CSALÁDI HÁZ eladó KUNADACSON!

Ingatlan azonosító: HI-2478183

Bács-Kiskun megye - Kunadacs, Családi ház


29 900 000 Ft (78 478 €)

  • Hirdetés feladója: Ingatlaniroda
  • Pontos cím: Kunadacs
  • Típus: Eladó
  • Belső irodai azonosító: 3620509-5042714
  • Alapterület: 120 m²
  • Telekterület: 1 440 m² ( 400 négyszögöl )
  • Építés éve: 1979
  • Egész szobák száma (12 m² felett): 4 db
  • Félszobák száma (6-12 m² között): 0 db
  • Ingatlan állapota: közepes állapotú
  • Fűtés: gáz (cirko)
  • Pince: nincs
  • Akadálymentesített: nincs
  • Napelem van?: nincs
  • Légkondicionáló: nincs

Leírás

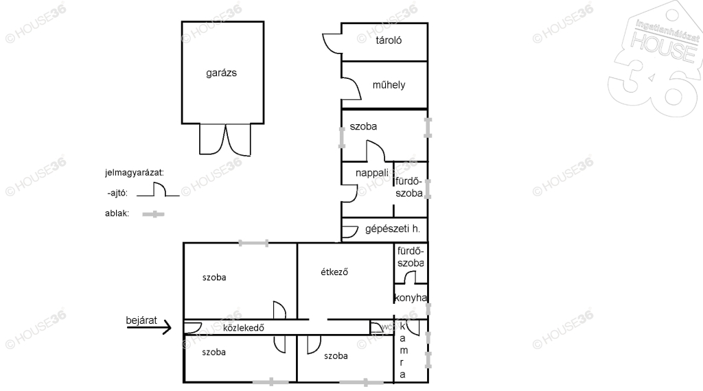
Kunadacson, központi elhelyezkedésű, csendes utcában eladó tágas családi ház nagy telekkel! Eladásra kínálunk egy családi házat, amely kialakításának köszönhetően akár KÉT GENERÁCIÓ együttélésére is kiválóan alkalmas.! A ház jellemzői; - 2007-ben, tető teljes felújítás történt, a gerendákkal együtt cserélve - 2 konyha, 2 fürdőszoba - melléképületek és dupla garázs - 1440 m2 telek - 4 szoba, étkező Figyelem az adatlap megbízóinktól kapott adatok alapján készült, pontosságáért felelősséget nem tudunk vállalni! A HOUSE36 kínálatában található összes ingatlannal kapcsolatban tudok felvilágosítást nyújtani! Az iroda legfrissebb, aktuális kínálatát a HOUSE36 saját weboldalán találja!

E-mail küldése a hirdetőnek

Hibás hirdetés bejelentése

Sikeres elküldtük a hiba bejelentést.

Hirdető adatai

Mihócza Zsolt
E-mail cím: zsolt.mihocza@h36.hu
Telefonszám: +36306861118
Hirdetés feladója: Ingatlaniroda

Képek



Térkép


Ajánlott ingatlanok

Családi ház
  • Lajosmizse
  • Alapterület: 70 m²
  • Telekterület: 728 m²
  • Ár: 43 500 000 Ft (114 173 €)
  • Feltöltés dátuma: 2025.09.18.
  •  
Családi ház

Gyönyörű környezetben igényes vevőknek!

Keresés azonosító alapján: HI-2513288
  • Kecskemét
  • Alapterület: 200 m²
  • Telekterület: 8 642 m²
  • Ár: 139 990 000 Ft (367 428 €)
  • Feltöltés dátuma: 2025.12.17.
  •  
Családi ház

ORGOVÁNYON KÉTGENERÁCIÓS, FELÚJÍTOTT CSALÁDI HÁZ ELADÓ!!

Keresés azonosító alapján: HI-2468810
  • Orgovány
  • Alapterület: 120 m²
  • Telekterület: 2 756 m²
  • Ár: 39 900 000 Ft (104 724 €)
  • Feltöltés dátuma: 2025.09.02.
  •  
Családi ház

Felújított otthon Kecskeméten, ahova csak költözni kell!

Keresés azonosító alapján: HI-2453669
  • Kecskemét
  • Alapterület: 66 m²
  • Telekterület: 800 m²
  • Ár: 42 500 000 Ft (111 549 €)
  • Feltöltés dátuma: 2025.08.02.
  •  
Facebook
Blogger
Twitter
Tweets by hasznaltingatla
Flickr