CSENGŐDÖN 654 m2-es IPARI INGATLAN ELADÓ! (6012 m2 telekterület!)

Ingatlan azonosító: HI-2531040

Bács-Kiskun megye - Csengőd, Műhely


53 900 000 Ft (137 500 €)

  • Hirdetés feladója: Ingatlaniroda
  • Pontos cím: Csengőd
  • Típus: Eladó
  • Belső irodai azonosító: 3615986-5034500
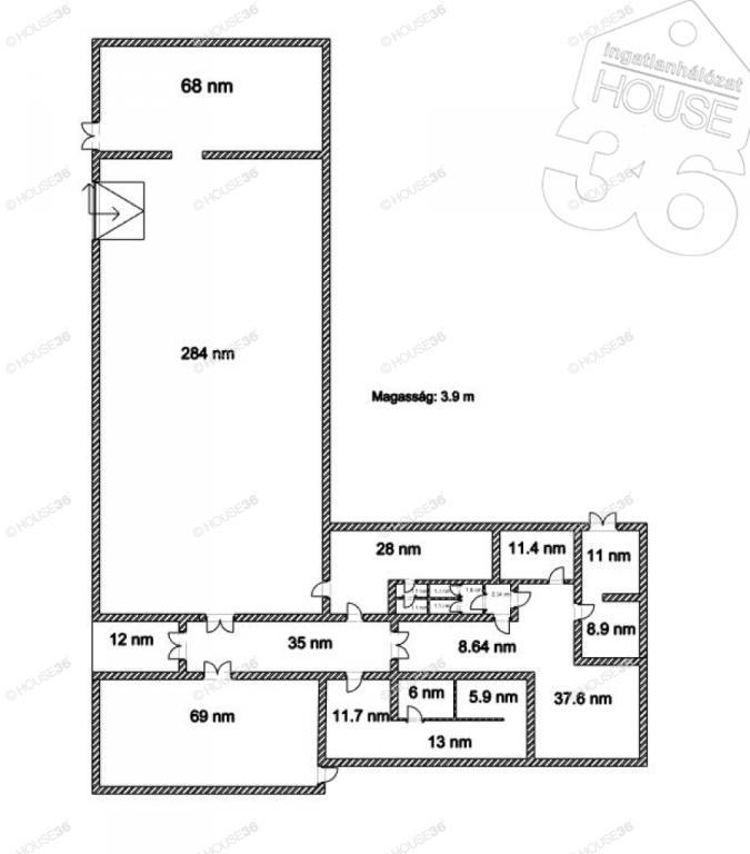
  • Alapterület: 654 m²
  • Telekterület: 6 012 m² ( 1 672 négyszögöl )
  • Építés éve: 1970
  • Fűtés: gáz (cirko)
  • Napelem van?: nincs

Leírás

Csengődön, 6012 m2-es telekterületen elhelyezkedő ipari ingatlan ELADÓ! Az ingatlan kiváló lehetőséget teremt a kis és közép vállalkozások számára. A 654 m2-es üzemrész mellett további: tárolók, raktár, betonozott udvarrész, parkoló, szolgálati lakás is része az ingatlannak. Az épület kiépített elszívó berendezéssel rendelkezik, jól megközelíthető. BEFEKTETÉSRE IS ALKALMAS INGATLAN! Főbb jellemzők: - 654 m2 üzemi épület,porta épület, kerékpár tárolókkal,raktár épület, külön lakórész, körbekerített terület. - 6012 m2-es rendezett udvar,saját kiépített parkoló. - 3 gázkazán és egy gázcirkó kazán biztosítja a fűtést. - Tehermentes, hitelezhető ingatlan, befektetésre is alkalmas ingatlan. Figyelem az adatlap megbízónktól kapott adatok alapján készült, pontosságáért felelősséget nem tudunk vállalni! Szolgáltatásaink kereső ügyfeleink számára ingyenesek!A tulajdonos kérésére az ingatlan bemutatása egy személyes konzultáció után történik, ahol részletes tájékoztatást kaphat az ingatlan paramétereiről és dokumentációjáról. Az iroda legfrissebb, aktuális kínálatát a HOUSE36 saját weboldalán találja!

E-mail küldése a hirdetőnek

Hibás hirdetés bejelentése

Sikeres elküldtük a hiba bejelentést.

Hirdető adatai

Farkas László
E-mail cím: laszlo.farkas@h36.hu
Telefonszám: +36301612379
Hirdetés feladója: Ingatlaniroda

Képek



Térkép


Ajánlott ingatlanok

Műhely
  • Mencshely
  • Alapterület: 1 400 m²
  • Telekterület: 26 220 m²
  • Ár: 499 000 000 Ft (1 272 959 €)
  • Feltöltés dátuma: 2026.02.04.
  •  
Műhely

A VÍZ A JÖVŐ LEGJOBB BEFEKTETÉSE!

Keresés azonosító alapján: HI-2531026
  • Pécs
  • Alapterület: 660 m²
  • Ár: 480 000 000 Ft (1 224 490 €)
  • Feltöltés dátuma: 2026.02.04.
  •  
Műhely

TELEPHELY, ÜZEM, MŰHELY, CSALÁDI HÁZAKKAL EGYBEN ELADÓ!

Keresés azonosító alapján: HI-2531013
  • Kiskőrös
  • Alapterület: 250 m²
  • Telekterület: 3 494 m²
  • Ár: 135 000 000 Ft (344 388 €)
  • Feltöltés dátuma: 2026.02.04.
  •  
Műhely

Főút melletti, 1656 m2 csarnok nagy területtel eladó!

Keresés azonosító alapján: HI-2531047
  • Kecskemét
  • Alapterület: 1 656 m²
  • Telekterület: 13 305 m²
  • Ár: 630 000 000 Ft (1 607 143 €)
  • Feltöltés dátuma: 2026.02.04.
  •  
Facebook
Blogger
Twitter
Tweets by hasznaltingatla
Flickr