Eladó 2 szobás, tégla lakás, Budapest 14. ker.

Ingatlan azonosító: HI-2493385

Budapest - Budapest XIV., Tégla lakás


64 900 000 Ft (169 452 €)

  • Hirdetés feladója: Ingatlaniroda
  • Pontos cím: Budapest XIV. Ilka utca
  • Típus: Eladó
  • Belső irodai azonosító: LK060716-5069283
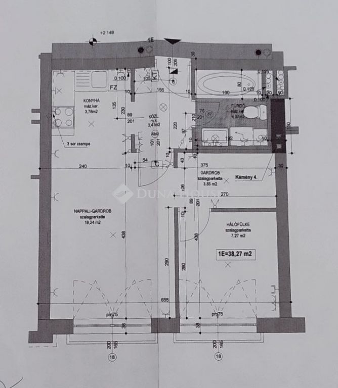
  • Alapterület: 38 m²
  • Építés éve: 2002
  • Egész szobák száma (12 m² felett): 2 db
  • Félszobák száma (6-12 m² között): 0 db
  • Fürdőszobák száma: 1 db
  • Ingatlan állapota: jó állapotú
  • Komfort: összkomfortos
  • Fűtés: gáz (cirko)
  • Lift: van
  • Akadálymentesített: nincs
  • Napelem van?: nincs
  • Erkély: nincs
  • Légkondicionáló: nincs
  • Kilátás: utcai
  • Tájolás: dél-kelet
  • A lakás falazata: Tégla

Leírás

Budapest központi részén, Herminamezőn szuper lakás! Eladó egy 1,5 szobás bútorozott, gépesített lakás az Ilka utcában. Az ingatlan az első emeleten van világos, szép lakás és mind két szoba külön nyíló, légkondicionált. A lakáshoz tartozik egy önálló, zárható garázs a belső udvarban és egy tároló is a garázs mögött közvetlen melyeknek az együttes ára 20M Ft és elengedhetetlen részét képezik az eladásnak. A háztól pár lépésre számtalan tömegközlekedési lehetőség van a város minden irányába, több trolibusz, busz, villamos és a M2 metro sincs messze, pár perc sétára van. A lakás tökéletes egyedülállok és párok részére, de befektetésnek is jó választás mert az adottságai miatt azonnal ki lehe adni jó áron. Amennyiben az ingatlan megfelelne az elvárásainak de nem rendelkezik a teljes vételárral? Ebben az esetben a CREDIPASS munkatársai kötelezettség- és díjmentes tanácsadással állnak Ügyfeleink rendelkezésére. Használja ki a jelenleg még érvényben lévő kedvező kamatozású hiteleket, CSOK-ot, illetékkedvezményt! Hétvégén is várom megtisztelő hívását, abban az esetben is ha csak hitelre lenne szüksége, Várom hívását, ha még el kell adnia ahhoz, hogy vásárolni tudjon! Várom megtisztelő hívását: Plachy Zsuzsa 30-8695401 Referencia szám: LK060716

E-mail küldése a hirdetőnek

Hibás hirdetés bejelentése

Sikeres elküldtük a hiba bejelentést.

Hirdető adatai

Plachy Zsuzsa
E-mail cím: plachy.zsuzsa@dh.hu
Telefonszám: +36308695401
Duna House
Hirdetés feladója: Ingatlaniroda
Ingatlaniroda: Duna House
E-mail cím: marvany@dh.hu
Telefonszám: +3616102533

Képek



Térkép


Ajánlott ingatlanok

Tégla lakás

Eladó lakás, Budapest 13. ker.

Keresés azonosító alapján: HI-2494399
  • Budapest XIII. Kucsma utca
  • Alapterület: 62 m²
  • Ár: 93 000 000 Ft (242 820 €)
  • Feltöltés dátuma: 2025.10.29.
  • klímás
Tégla lakás
  • Budapest VII. Dohány utca
  • Alapterület: 103 m²
  • Ár: 139 900 000 Ft (365 274 €)
  • Feltöltés dátuma: 2025.07.02.
  •  
Tégla lakás

Eladó lakás, Budapest 13. ker., 3 szobás, teraszos,

Keresés azonosító alapján: HI-2466733
  • Budapest XIII. Szabolcs utca
  • Alapterület: 67 m²
  • Ár: 113 558 000 Ft (296 496 €)
  • Feltöltés dátuma: 2025.08.28.
  • klímás
Tégla lakás

Eladó lakás, Budapest 14. ker. Hungária krt

Keresés azonosító alapján: HI-2486745
  • Budapest XIV. Hungária körút
  • Alapterület: 105 m²
  • Ár: 99 900 000 Ft (260 836 €)
  • Feltöltés dátuma: 2025.10.07.
  • klímás
Facebook
Blogger
Twitter
Tweets by hasznaltingatla
Flickr