Eladó 4 szobás, esztétikai felújítást igénylő ház, Tóalmás

Ingatlan azonosító: HI-2522139

Pest megye - Tóalmás, Családi ház


34 900 000 Ft (90 649 €)

  • Hirdetés feladója: Ingatlaniroda
  • Pontos cím: Tóalmás Árpád utca
  • Típus: Eladó
  • Belső irodai azonosító: HZ069585-5122488
  • Alapterület: 120 m²
  • Telekterület: 1 247 m² ( 347 négyszögöl )
  • Építés éve: 1970
  • Egész szobák száma (12 m² felett): 4 db
  • Félszobák száma (6-12 m² között): 0 db
  • Fürdőszobák száma: 1 db
  • Ingatlan állapota: jó állapotú
  • Komfort: összkomfortos
  • Fűtés: egyéb kazán
  • Pince: nincs
  • Akadálymentesített: nincs
  • Napelem van?: nincs
  • Légkondicionáló: nincs

Leírás

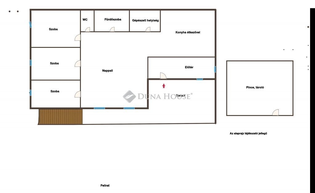
Budapesttől ca 55km távolságra kínálunk eladásra netto 120 m2 alapterületű családi házat 1247m2-es telken Tóalmás központjában. Az ingatlan tökéletes választás lehet mindazok számára, akik a városi közelséget és a nyugodt lakókörnyezetet egyaránt értékelik. Az ingatlan beton alapra épült, vegyes falazatú, cserép tetős. Három hálószoba, nagy méretű nappali, kádas és zuhanyzós fürdőszoba, külön wc, gépház, nagy méretű beépített konyha étkezővel és egy előszoba található benne. A fűtést vegyes tüzelésű kazán biztosítja, radiátoros hőleadással, fa és műanyag nyílászárók gondoskodnak a jó hőszigetelésről. Külső lejáratú pincéje ca. 20m2 alapterületű, 2m belmagassággal tágas, száraz, jól szigetelt. Esztétikai frissítést követően kitűnő otthona lehet kis - vagy nagy családosoknak is. Nyáron a kertben a gyerekek részére betonozott alapra lehet úszómedencét felállítani fák árnyékában. Az ingatlan OSP hitellel is megvásárolható, Babaváró és CSOK+ is igényelhető. Ingatlanvásárláshoz kapcsolódóan ügyvédi -, illetve teljeskörű pénzügyi tanácsadással, hitelezéssel állunk rendelkezésére minden kedves ügyfelünknek. A fotók között AI által szerkesztett képek találhatók! Megtekintéshez hívjon bizalommal! Amennyiben az ingatlan megfelelne az elvárásainak de nem rendelkezik a teljes vételárral? Ebben az esetben a CREDIPASS munkatársai kötelezettség- és díjmentes tanácsadással állnak Ügyfeleink rendelkezésére. Használja ki a jelenleg még érvényben lévő kedvező kamatozású hiteleket, CSOK-ot, illetékkedvezményt! Hétvégén is várom megtisztelő hívását, abban az esetben is ha csak hitelre lenne szüksége, Várom hívását, ha még el kell adnia ahhoz, hogy vásárolni tudjon! Várom megtisztelő hívását: Plachy Zsuzsa 30-8695401 Referencia szám: HZ069585

E-mail küldése a hirdetőnek

Hibás hirdetés bejelentése

Sikeres elküldtük a hiba bejelentést.

Hirdető adatai

Plachy Zsuzsa
E-mail cím: plachy.zsuzsa@dh.hu
Telefonszám: +36308695401
Duna House
Hirdetés feladója: Ingatlaniroda
Ingatlaniroda: Duna House
E-mail cím: marvany@dh.hu
Telefonszám: +3616102533

Képek



Térkép


Ajánlott ingatlanok

Családi ház

Eladó 3 szobás ház, Tóalmás

Keresés azonosító alapján: HI-2494395
  • Tóalmás Béke utca
  • Alapterület: 85 m²
  • Telekterület: 1 304 m²
  • Ár: 55 000 000 Ft (142 857 €)
  • Feltöltés dátuma: 2025.10.29.
  •  
Családi ház

Összkomfortos, 5 szobás, fedett autóbeállós ház, nagy telek

Keresés azonosító alapján: HI-2437432
  • Tóalmás
  • Alapterület: 100 m²
  • Telekterület: 2 051 m²
  • Ár: 51 900 000 Ft (134 805 €)
  • Feltöltés dátuma: 2025.07.02.
  •  
Családi ház

Eladó ház, Kóka

Keresés azonosító alapján: HI-2494392
  • Kóka Dózsa György út
  • Alapterület: 74 m²
  • Telekterület: 909 m²
  • Ár: 44 900 000 Ft (116 623 €)
  • Feltöltés dátuma: 2025.10.29.
  •  
Családi ház
  • Tura
  • Alapterület: 270 m²
  • Telekterület: 1 232 m²
  • Ár: 159 900 000 Ft (415 325 €)
  • Feltöltés dátuma: 2025.07.02.
  •  
Facebook
Blogger
Twitter
Tweets by hasznaltingatla
Flickr