Eladó AIRBNB-s lakás, Budapest 13. ker.

Ingatlan azonosító: HI-2481594

Budapest - Budapest XIII., Tégla lakás


86 500 000 Ft (221 228 €)

  • Hirdetés feladója: Ingatlaniroda
  • Pontos cím: Budapest XIII. Szent István körút
  • Típus: Eladó
  • Belső irodai azonosító: LK047906-5048002
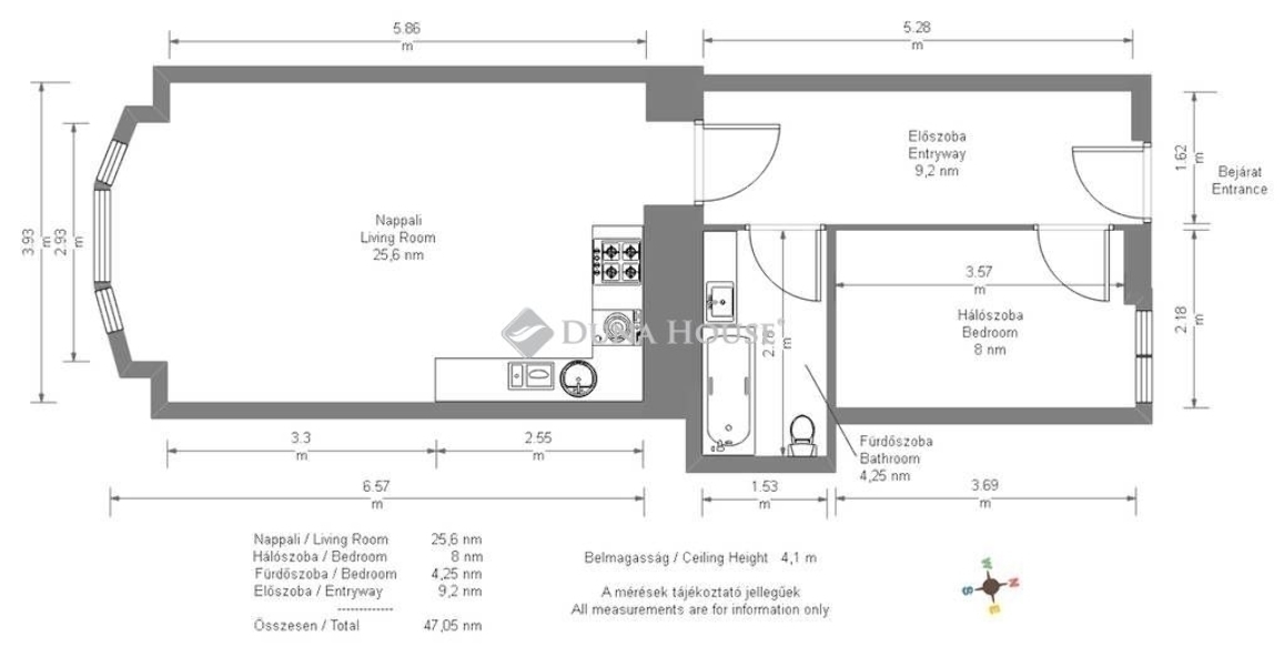
  • Alapterület: 47 m²
  • Egész szobák száma (12 m² felett): 2 db
  • Félszobák száma (6-12 m² között): 0 db
  • Fürdőszobák száma: 1 db
  • Ingatlan állapota: felújított
  • Komfort: összkomfortos
  • Fűtés: elektromos
  • Lift: van
  • Akadálymentesített: nincs
  • Napelem van?: nincs
  • Erkély: nincs
  • Légkondicionáló: van
  • Kilátás: utcai
  • Tájolás: dél
  • A lakás falazata: Tégla

Leírás

Újlipótvárosban, közvetlenül a Vígszínháznál, airbnb-re bejáratott, teljeskörűen felújított, első emeleti, nappali + hálós lakás eladó! Budapesten, a 13. kerületben, közvetlenül a Vígszínháznál, kulturált társasházban eladó egy első emeleti, teljes körűen, minőségi anyagokkal felújított, nappali + hálószobás, 47 nm-es lakás. A felújítás prémium minőségben készült el, beépítésre került egy gépesített konyhaszekrény, az ablakokra motoros redőnyöket szereltek fel, és minőségi faparketta melegburkolatot fektettek le. A fűtésről/hűtésről egy inverteres hűtő-fűtő klíma gondoskodik és a biztonságot a beépített riasztó biztosítja. Amennyiben az ingatlan megfelelne az elvárásainak de nem rendelkezik a teljes vételárral? Ebben az esetben a CREDIPASS munkatársai kötelezettség- és díjmentes tanácsadással állnak Ügyfeleink rendelkezésére. Használja ki a jelenleg még érvényben lévő kedvező kamatozású hiteleket, CSOK-ot, illetékkedvezményt! Hétvégén is várom megtisztelő hívását, abban az esetben is ha csak hitelre lenne szüksége, Várom hívását, ha még el kell adnia ahhoz, hogy vásárolni tudjon! Várom megtisztelő hívását: Plachy Zsuzsa 30-8695401 Referencia szám: LK047906

E-mail küldése a hirdetőnek

Hibás hirdetés bejelentése

Sikeres elküldtük a hiba bejelentést.

Hirdető adatai

Plachy Zsuzsa
E-mail cím: plachy.zsuzsa@dh.hu
Telefonszám: +36308695401
Duna House
Hirdetés feladója: Ingatlaniroda
Ingatlaniroda: Duna House
E-mail cím: marvany@dh.hu
Telefonszám: +3616102533

Képek



Térkép


Ajánlott ingatlanok

Tégla lakás

Eladó felújított 45 m2-es lakás, Budapest 13. ker.

Keresés azonosító alapján: HI-2459454
  • Budapest XIII. Visegrádi utca
  • Alapterület: 45 m²
  • Ár: 77 900 000 Ft (199 233 €)
  • Feltöltés dátuma: 2025.08.08.
  •  
Tégla lakás

Eladó magas emeleti lakás, 3 %-os hitelre alkalmas, Dunakeszi

Keresés azonosító alapján: HI-2480091
  • Dunakeszi Kandó Kálmán sétány
  • Alapterület: 50 m²
  • Ár: 66 300 000 Ft (169 565 €)
  • Feltöltés dátuma: 2025.09.25.
  •  
Tégla lakás

Eladó lakás, Budapest 7. ker.

Keresés azonosító alapján: HI-2481589
  • Budapest VII. Dohány utca
  • Alapterület: 50 m²
  • Ár: 62 900 000 Ft (160 870 €)
  • Feltöltés dátuma: 2025.09.29.
  •  
Tégla lakás

Eladó lakás, Budapest 14. ker.

Keresés azonosító alapján: HI-2475863
  • Budapest XIV. Hungária körút
  • Alapterület: 61 m²
  • Ár: 72 900 000 Ft (186 445 €)
  • Feltöltés dátuma: 2025.09.19.
  •  
Facebook
Blogger
Twitter
Tweets by hasznaltingatla
Flickr