Eladó Étterem, Budaörs

Ingatlan azonosító: HI-2555955

Pest megye - Budaörs, Étterem, vendéglő...


400 000 000 Ft (1 104 972 €)

  • Hirdetés feladója: Ingatlaniroda
  • Pontos cím: Budaörs
  • Típus: Eladó
  • Belső irodai azonosító: M322471-5184407
  • Alapterület: 900 m²
  • Építés éve: 1990
  • Fűtés: gáz (cirko)
  • Akadálymentesített: nincs
  • Napelem van?: nincs
  • Légkondicionáló: nincs

Leírás

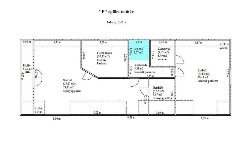
Befektetők figyelem! Kiváló fejlesztési projekt Budaörs szívében! Eladó egy 1.515 nm-es telken fekvő, 900 nm összterületű ingatlanegyüttes Budaörs központi részén! Az ingatlan sokoldalú hasznosítási lehetőségeivel, kiemelkedő bérleti hozamával és stratégiai elhelyezkedésével remek befektetési lehetőséget kínál. Főbb jellemzők: Épületek összesen: 900 nm Elhelyezkedés: M1-M7 csomópont közelében, Budapest könnyen elérhető Funkciók: szálló, munkásszálló, irodák, bemutatóterem, raktár Épületek és kapacitás: A épület: 221 nm, kétszintes szálló, 30 fő elszállásolására B épület: Közös használatú teakonyha C épület: 221 nm, földszintes szálló, 18 fő kapacitással D & E épületek: Tárolók, irodák, bemutatóterem, összesen 278 nm F épület: 183 nm lakóház, 12 fő befogadására, saját terasszal Kiemelt előnyök: Jövedelmező befektetés: az ingatlan jelenleg is bérbe van adva Rugalmas hasznosítás: szállás, irodák, raktárak, üzleti célok Kiváló közlekedés: buszmegálló 5 perc sétára, autópálya pár percre Teljes közműellátottság: víz, villany, gáz, csatorna Biztonság: kamerarendszerrel felszerelt M322471 Az OTP Ingatlanpont, mint egyetlen közvetlen banki hátterű ingatlanközvetítő társaság teljes körű ügyintézéssel áll az eladók és a vevők rendelkezésére! A kínálatunkból választott ingatlan finanszírozásához minősített fogyasztóbarát, piaci és kedvezményes hitel- és lízingkonstrukciókat kínálunk (lakásvásárlási hitel, CSOK plusz, szabad felhasználású hitel, babaváró hitel, céges hitelek, pályázatok, amennyiben az ügyfél és az ingatlan megfelel a feltételeknek). Az adásvételi szerződés megkötéséhez igény szerint megbízható ügyvédi közreműködést biztosítunk, és segítséget nyújtunk az adásvételhez kapcsolódó egyéb ügyek intézéséhez. Ha az új ingatlana megvásárlásához a jelenlegi ingatlanát el kell adnia, abban is szívesen segítünk. Referencia szám: M322471-HI

E-mail küldése a hirdetőnek

Hibás hirdetés bejelentése

Sikeres elküldtük a hiba bejelentést.

Hirdető adatai

Takács Zsuzsanna
E-mail cím: takacs.zsuzsanna@otpip.hu
Telefonszám: +36304953819
OTPip
Hirdetés feladója: Ingatlaniroda
Ingatlaniroda: OTPip
E-mail cím: budapest13.lehelutca@otpip.hu
Telefonszám: +36706136133

Képek



Térkép


Ajánlott ingatlanok

Étterem, vendéglő...

Eladó Étterem, Székesfehérvár

Keresés azonosító alapján: HI-2259380
  • Székesfehérvár
  • Alapterület: 16 132 m²
  • Ár: 220 000 000 Ft (607 735 €)
  • Feltöltés dátuma: 2024.07.07.
  • klímás
Étterem, vendéglő...

Eladó Étterem, Siófok

Keresés azonosító alapján: HI-2560487
  • Siófok
  • Alapterület: 260 m²
  • Ár: 211 000 000 Ft (582 873 €)
  • Feltöltés dátuma: 2026.04.14.
  •  
Étterem, vendéglő...

Eladó Étterem, Pilisszentiván

Keresés azonosító alapján: HI-2554175
  • Pilisszentiván
  • Alapterület: 500 m²
  • Ár: 140 000 000 Ft (386 740 €)
  • Feltöltés dátuma: 2026.03.25.
  •  
Étterem, vendéglő...

Eladó Étterem, Székesfehérvár

Keresés azonosító alapján: HI-2259368
  • Székesfehérvár
  • Alapterület: 368 m²
  • Ár: 67 500 000 Ft (186 464 €)
  • Feltöltés dátuma: 2024.07.07.
  •  
Facebook
Blogger
Twitter
Tweets by hasznaltingatla
Flickr