Eladó Étterem, Siófok

Ingatlan azonosító: HI-2486260

Somogy megye - Siófok, Étterem, vendéglő...


211 000 000 Ft (541 026 €)

  • Hirdetés feladója: Ingatlaniroda
  • Pontos cím: Siófok
  • Típus: Eladó
  • Belső irodai azonosító: M314047-5053245
  • Alapterület: 260 m²
  • Építés éve: 2000
  • Fűtés: gáz (cirko)
  • Akadálymentesített: nincs
  • Energiatanúsítvány: A+
  • Napelem van?: nincs
  • Légkondicionáló: nincs

Leírás

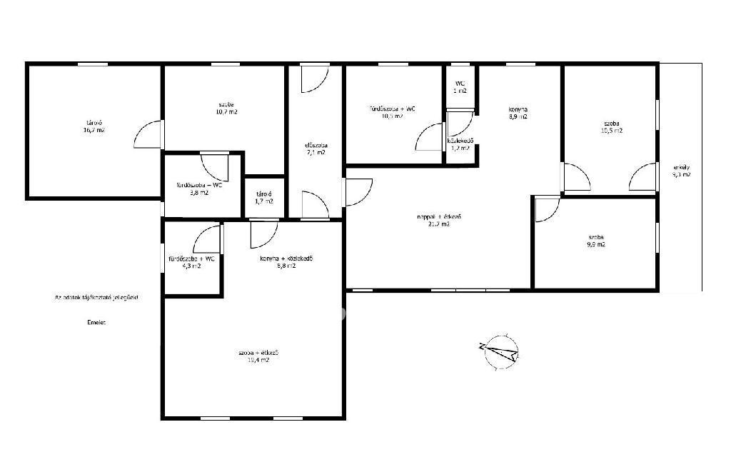
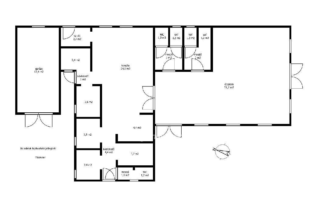
Somogy megye, Siófok Balatonszéplak, Ezüstpart, 119 m2 étterem, 141 m2 lakóház, 716 m2 telek eladó. Az ingatlan Balatonszéplak központi részén helyezkedik el, csendes, nyugodt környezetben, 350 m-re az Ezüstpart szabadstrandtól. A 2 szintes, 5 szobás ház fűtését cirkó gázkazán biztosítja radiátor hőleadókkal, amit kandalló, illetve klíma egészít ki. Az ingatlan 141 m2-es felső szintjén 3 lakóegység található, a 119 m2-es alsó szintje étteremként és konyhaként került kialakításra. Az étterem 35 fő, a terasz további 35 fő befogadására alkalmas. Parkolni a 17 m2-es garázsban, illetve 5 autóval zárt kocsibeállón lehetséges. A ház kialakítása lehetővé teszi a két szint különálló használatát is, így kiváló lehetőség akár több generációs családoknak állandó lakhatásra vagy nyaralásra, valamint üzleti vállalkozásnak, illetve befektetési céllal részben vagy egészben kiadásra is. Budapesti belvárosi lakás értékegyeztetéssel beszámítható. Bővebb információért keressen telefonon! M314047 211000000 Ft Referencia szám: M314047

E-mail küldése a hirdetőnek

Hibás hirdetés bejelentése

Sikeres elküldtük a hiba bejelentést.

Hirdető adatai

Vincze László György
E-mail cím: vincze.laszlo.gyorgy@otpip.hu
Telefonszám: +36-20-938-4141
OTPip
Hirdetés feladója: Ingatlaniroda
Ingatlaniroda: OTPip
E-mail cím: pecs@otpip.hu
Telefonszám: +36-70-708-2428

Képek



Térkép


Ajánlott ingatlanok

Étterem, vendéglő...

Eladó Szórakozóhely, Kémes

Keresés azonosító alapján: HI-2341836
  • Kémes
  • Alapterület: 400 m²
  • Ár: 70 000 000 Ft (179 487 €)
  • Feltöltés dátuma: 2024.12.06.
  •  
Új építésű lakás

Eladó Lakás, Siófok

Keresés azonosító alapján: HI-2370784
  • Siófok
  • Alapterület: 112 m²
  • Ár: 166 235 387 Ft (426 245 €)
  • Feltöltés dátuma: 2025.02.08.
  •  
Üdülőházas

Eladó Lakás, Siófok

Keresés azonosító alapján: HI-1839246
  • Siófok
  • Alapterület: 66 m²
  • Ár: 120 700 000 Ft (309 487 €)
  • Feltöltés dátuma: 2022.02.12.
  •  
Fejlesztési terület

Eladó Ipari terület, Paks

Keresés azonosító alapján: HI-2465851
  • Paks
  • Alapterület: 1 732 m²
  • Telekterület: 4 191 m²
  • Ár: 550 000 000 Ft (1 410 256 €)
  • Feltöltés dátuma: 2025.08.26.
  •  
Facebook
Blogger
Twitter
Tweets by hasznaltingatla
Flickr