Eladó Ház, Apc

Ingatlan azonosító: HI-2486012

Heves megye - Apc, Családi ház


19 900 000 Ft (51 026 €)

  • Hirdetés feladója: Ingatlaniroda
  • Pontos cím: Apc
  • Típus: Eladó
  • Belső irodai azonosító: M312449-5054078
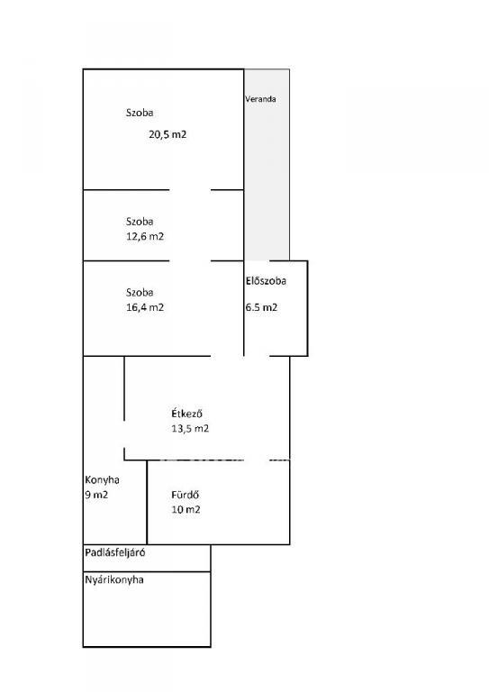
  • Alapterület: 87 m²
  • Telekterület: 790 m² ( 220 négyszögöl )
  • Építés éve: 1960
  • Egész szobák száma (12 m² felett): 3 db
  • Félszobák száma (6-12 m² között): 0 db
  • Ingatlan állapota: jó állapotú
  • Komfort: összkomfortos
  • Fűtés: gáz (konvektor)
  • Pince: nincs
  • Akadálymentesített: nincs
  • Napelem van?: nincs
  • Légkondicionáló: nincs

Leírás

Eladó Heves megyében, Apc községben (Budapesttől 70 km-re) egy 790 m2-es telken elhelyezkedő, 87m2-es 3 szobás jó állapotú családi ház. Az elmúlt években a víz és villanyvezetékek cseréjére került sor. Az otthon melegéről kályha és gáz konvektorok, meleg vízről bojler gondoskodik. A szobák burkolata laminált parketta. Az épület alatt 4m2-s száraz pince helyezkedik el. Az utca lakóközösség jó, csendes szomszédokkal. A közelben pár percen belül élelmiszerbolt, bölcsőde, óvoda, iskola, polgármesteri hivatal, orvosi rendelő, posta, gyógyszertár. Közvetlen autóbuszjáratok: Budapest, Eger, Gyöngyös, Salgótarján. A falusi CSOK igényelhető a településen, melynek ügyintézését díjmentesen vállaljuk. Ügyvédi háttérrel, ingyenes pénzügyi tanácsadással és kedvezményes hitellel segítjük vásárlását.

E-mail küldése a hirdetőnek

Hibás hirdetés bejelentése

Sikeres elküldtük a hiba bejelentést.

Hirdető adatai

Vályi-Nagy Károly
E-mail cím: valyi-nagy.karoly@otpip.hu
Telefonszám: +36-30-218-7461
OTPip
Hirdetés feladója: Ingatlaniroda
Ingatlaniroda: OTPip
E-mail cím: eger.torvenyhaz@otpip.hu
Telefonszám: +36304492522

Képek



Térkép


Ajánlott ingatlanok

Családi ház

Eladó Ház, Rózsaszentmárton

Keresés azonosító alapján: HI-2467686
  • Rózsaszentmárton
  • Alapterület: 87 m²
  • Telekterület: 1 197 m²
  • Ár: 27 000 000 Ft (69 231 €)
  • Feltöltés dátuma: 2025.08.31.
  •  
Családi ház

Eladó Ház, Hatvan

Keresés azonosító alapján: HI-2486013
  • Hatvan
  • Alapterület: 193 m²
  • Telekterület: 892 m²
  • Ár: 62 000 000 Ft (158 974 €)
  • Feltöltés dátuma: 2025.10.04.
  •  
Családi ház

Eladó Ház, Ludas

Keresés azonosító alapján: HI-2470421
  • Ludas
  • Alapterület: 75 m²
  • Telekterület: 1 125 m²
  • Ár: 23 400 000 Ft (60 000 €)
  • Feltöltés dátuma: 2025.09.04.
  •  
Családi ház

Eladó Ház, Karácsond

Keresés azonosító alapján: HI-2425825
  • Karácsond
  • Alapterület: 85 m²
  • Telekterület: 753 m²
  • Ár: 24 900 000 Ft (63 846 €)
  • Feltöltés dátuma: 2025.06.02.
  •  
Facebook
Blogger
Twitter
Tweets by hasznaltingatla
Flickr