Eladó ház, Baja

Ingatlan azonosító: HI-2497321

Bács-Kiskun megye - Baja, Sorház


49 999 000 Ft (128 863 €)

  • Hirdetés feladója: Ingatlaniroda
  • Pontos cím: Baja
  • Típus: Eladó
  • Belső irodai azonosító: HZ016564-5075736
  • Alapterület: 185 m²
  • Telekterület: 150 m² ( 42 négyszögöl )
  • Építés éve: 1984
  • Egész szobák száma (12 m² felett): 5 db
  • Félszobák száma (6-12 m² között): 0 db
  • Fürdőszobák száma: 2 db
  • Ingatlan állapota: jó állapotú
  • Fűtés: gáz (konvektor)
  • Pince: nincs
  • Akadálymentesített: nincs
  • Napelem van?: nincs
  • Légkondicionáló: nincs

Leírás

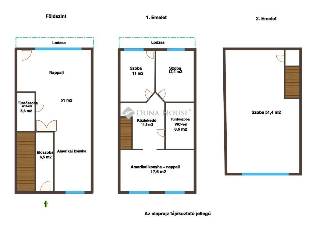
185 m²-es, kétgenerációs sorház az Alvég legkedveltebb részén 2 garázs, kertkapcsolat.Baja egyik legkedveltebb részén, az Alvég szívében eladó egy 185 m²-es, akár két generáció számára is tökéletes sorház, amely minden kényelmet és lehetőséget magában hordoz.Főbb jellemzők: Földszint: előszoba, tágas amerikai konyhás nappali, fürdőszoba WC-vel, lépcsőtér, udvarra/lodzsára nyíló kijárat. Első emelet: közlekedő, 2 szoba, amerikai konyhás nappali, fürdőszoba WC-vel, lodzsa. Második emelet: egyedülálló, 51 m²-es hatalmas szoba ideális hálónak, dolgozónak vagy hobbihelyiségnek.Műszaki adatok:- 1984-ben épült, masszív tégla falazat, beton alap.- Északi oldalon 15 cm hungarocell szigetelés.- Bátaszéki szalagcserép tető, fóliázva.- 2 db zárható garázs, zárt udvar, kertkapcsolat.- Összközműves: 3x10 amper villany, rézvezetékek (2015-ben felújítva), vízvezetékek cserélve.- Földszinten Ariston villanybojler, emeleten átfolyós gázbojler.- Külön mérhető víz- és villanyfogyasztás a két szinten.- Fatüzelés lehetősége + gázkonvektor fűtés az emeleten.- Fanyílászárók, redőnyök minden ablakon.Bónusz: a konyhabútorok a vételár részét képezik!Ez a sorház tökéletes választás nagycsaládosoknak, összeköltözőknek, hiszen könnyedén kialakítható benne két különálló lakrész. Elhelyezkedés: csendes, barátságos utcában, mégis közel a város főbb pontjaihoz. Bolt, óvoda a közelben.Egyéb kérdés esetén hívja a megadott telefonszámot!

E-mail küldése a hirdetőnek

Hibás hirdetés bejelentése

Sikeres elküldtük a hiba bejelentést.

Hirdető adatai


Grecs Krisztina
E-mail cím: grecs.krisztina@dh.hu
Telefonszám: 363993262
Duna House
Hirdetés feladója: Ingatlaniroda
Ingatlaniroda: Duna House
E-mail cím: halasztelek@dh.hu
Telefonszám: +3624790134

Képek



Térkép


Ajánlott ingatlanok

Tégla lakás

Eladó lakás, Kecskemét

Keresés azonosító alapján: HI-2497314
  • Kecskemét
  • Alapterület: 69 m²
  • Ár: 35 900 000 Ft (92 526 €)
  • Feltöltés dátuma: 2025.11.03.
  •  
Családi ház

Eladó ház, Szeged

Keresés azonosító alapján: HI-2497320
  • Szeged
  • Alapterület: 96 m²
  • Telekterület: 1 000 m²
  • Ár: 51 500 000 Ft (132 732 €)
  • Feltöltés dátuma: 2025.11.03.
  •  
Családi ház

Eladó ház, Császártöltés

Keresés azonosító alapján: HI-2496939
  • Császártöltés
  • Alapterület: 162 m²
  • Telekterület: 924 m²
  • Ár: 16 990 000 Ft (43 789 €)
  • Feltöltés dátuma: 2025.11.01.
  •  
Családi ház

Eladó ház, Paks

Keresés azonosító alapján: HI-2496944
  • Paks
  • Alapterület: 130 m²
  • Telekterület: 474 m²
  • Ár: 55 000 000 Ft (141 753 €)
  • Feltöltés dátuma: 2025.11.01.
  •  
Facebook
Blogger
Twitter
Tweets by hasznaltingatla
Flickr