Eladó Ház, Bakóca

Ingatlan azonosító: HI-2541301

Baranya megye - Bakóca, Családi ház


10 500 000 Ft (28 926 €)

  • Hirdetés feladója: Ingatlaniroda
  • Pontos cím: Bakóca
  • Típus: Eladó
  • Belső irodai azonosító: M323043-5157730
  • Alapterület: 98 m²
  • Telekterület: 2 609 m² ( 725 négyszögöl )
  • Építés éve: 1970
  • Egész szobák száma (12 m² felett): 2 db
  • Félszobák száma (6-12 m² között): 0 db
  • Ingatlan állapota: felújítandó
  • Komfort: komfort nélküli
  • Fűtés: egyéb
  • Pince: nincs
  • Akadálymentesített: nincs
  • Napelem van?: nincs
  • Légkondicionáló: nincs

Leírás

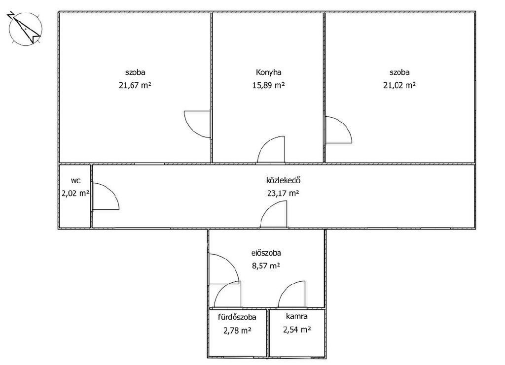
Oroszlótól 11 kilóméterre Bakócán eladó egy 1970-ben épült családi ház. 2 szobás, 98 négyzetméter alapterületű, 2609 négyzetméteres lejtős telek tartozik hozzá. Felújítandó állapotú. Víz az utcában van, Villany van. 3 Tartály van telepítve az udvarban a szennyíznek. Gáz nincs az egész faluban. Az új tulajdonosra vár a víz és a szennyvíz bekötése a házba. Az alaprajzon jelzett helyiségek szabadon változtathatók. Az épület statikailag rendben van. A melléképületekben állattárasra van lehetőség. Referenciaszám: M323043 10500000 Ft Referencia szám: M323043

E-mail küldése a hirdetőnek

Hibás hirdetés bejelentése

Sikeres elküldtük a hiba bejelentést.

Hirdető adatai

Vincze László György
E-mail cím: vincze.laszlo.gyorgy@otpip.hu
Telefonszám: +36209384141
OTPip
Hirdetés feladója: Ingatlaniroda
Ingatlaniroda: OTPip
E-mail cím: pecs@otpip.hu
Telefonszám: +36-70-708-2428

Képek



Térkép


Ajánlott ingatlanok

Családi ház

Eladó Ház, Balatonföldvár

Keresés azonosító alapján: HI-2501782
  • Balatonföldvár
  • Alapterület: 166 m²
  • Telekterület: 899 m²
  • Ár: 188 000 000 Ft (517 906 €)
  • Feltöltés dátuma: 2025.11.14.
  •  
Családi ház

Eladó Ház, Gyenesdiás

Keresés azonosító alapján: HI-2450670
  • Gyenesdiás
  • Alapterület: 150 m²
  • Telekterület: 850 m²
  • Ár: 139 000 000 Ft (382 920 €)
  • Feltöltés dátuma: 2025.07.28.
  •  
Családi ház

Eladó Ház, Siófok

Keresés azonosító alapján: HI-2338112
  • Siófok
  • Alapterület: 174 m²
  • Telekterület: 832 m²
  • Ár: 275 000 000 Ft (757 576 €)
  • Feltöltés dátuma: 2024.12.01.
  •  
Családi ház

Eladó Ház, Balatonlelle

Keresés azonosító alapján: HI-2499627
  • Balatonlelle
  • Alapterület: 213 m²
  • Telekterület: 964 m²
  • Ár: 150 000 000 Ft (413 223 €)
  • Feltöltés dátuma: 2025.11.07.
  •  
Facebook
Blogger
Twitter
Tweets by hasznaltingatla
Flickr