Eladó Ház, Bakonyság

Ingatlan azonosító: HI-2489720

Veszprém megye - Bakonyság, Családi ház


51 900 000 Ft (136 220 €)

  • Hirdetés feladója: Ingatlaniroda
  • Pontos cím: Bakonyság
  • Típus: Eladó
  • Belső irodai azonosító: M313814-5062276
  • Alapterület: 91 m²
  • Telekterület: 1 525 m² ( 424 négyszögöl )
  • Építés éve: 1960
  • Egész szobák száma (12 m² felett): 2 db
  • Félszobák száma (6-12 m² között): 1 db
  • Ingatlan állapota: jó állapotú
  • Komfort: összkomfortos
  • Fűtés: gáz (konvektor)
  • Pince: nincs
  • Akadálymentesített: nincs
  • Napelem van?: nincs
  • Légkondicionáló: van

Leírás

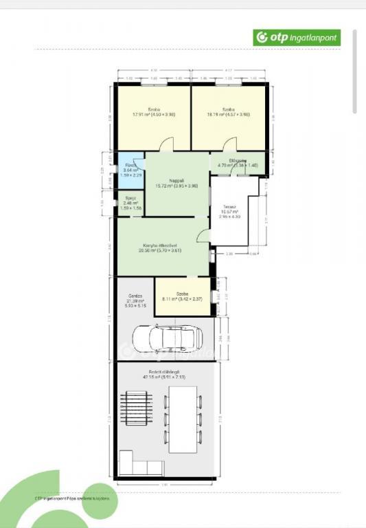
Eladásra kínálok Veszprém vármegyében, Bakonyság településen egy 91,5 m2 alapterületű, tégla falazatú családi házat, amely egy 1525 m2-es telken helyezkedik el. A ház elosztása kifejezetten családbarát: három külön nyíló szoba, egy nappali, konyha-étkező, fürdőszoba, előszoba, kamra, valamint egy fedett terasz biztosítja a mindennapi kényelmet és a zavartalan együttélést. A praktikumot tovább növeli a garázs és a házhoz tartozó 40 m2-es fedett dühöngő, amely nagyobb társaság fogadására is kiválóan alkalmas. A ház statikailag és szerkezetileg stabil, jelenlegi tulajdonosai pedig 2024-ben jelentős felújítást végeztek rajta. Ennek köszönhetően a teljes víz- és villanyhálózat megújult, a villamos kapacitás bővítésre került (3x16 Amper), valamint korszerű, hőszigetelt, szúnyoghálóval felszerelt műanyag nyílászárók kerültek beépítésre. A korábban felújított tetőszerkezet megerősített szarufákkal és új lécezéssel hosszú távon is biztonságos megoldást nyújt. A belső tér modern hideg- és melegburkolatokat kapott, a konyhabútor és a beépített háztartási gépek teljesen újak, alig fél évesek. A komfortérzetet tovább fokozza az energetikai megújulás: az álmennyezet feletti kőzetgyapotos szigetelés, a meglévő gázkonvektoros fűtés mellett pedig három inverteres hűtő-fűtő klíma szolgálja az otthon kényelmét. A 1525 m2-es telek mérete minden családi igényhez illeszkedik. Az előkert 110 m2-nyi térkövezett felülete biztosítja a rendezett megjelenést és a kényelmes parkolást, míg a hátsó, füvesített rész számtalan lehetőséget kínál pihenésre, kertészkedésre vagy akár játszótér kialakítására. A 40 m2-es fedett dühöngő ideális közösségi tér baráti összejövetelekhez, az udvaron található ásott kút pedig praktikus és költséghatékony vízforrást biztosít. Bakonyság a Bakony szívében fekvő, nyugodt és barátságos település, ahol a természet közelsége és a tiszta levegő mindennapok részét képezik. A község ideális választás azoknak, akik csendes, biztonságos környezetben szeretnének élni, ugyanakkor könnyen elérhető közelségben maradnának a nagyobb városoktól, mint Pápa vagy Veszprém. A falut erdők, kiránduló- és kerékpárutak veszik körül, így a szabadidő aktív eltöltésére is számos lehetőséget nyújt. A helyiek vendégszerető közössége és a rendezett településkép igazi otthonosságot sugároz. Mindezek miatt Bakonyság nemcsak lakóhelynek, hanem hosszú távú otthonnak is kiváló választás. Ez a családi ház tökéletes választás mindazok számára, akik szeretnék ötvözni a modern otthon nyújtotta kényelmet a falusi környezet nyugalmával. Ha Ön olyan ingatlant keres, amelyben egyszerre adott a friss felújítás, a tágas telek és a természet közelsége, akkor ez az otthon ideális lehetőség. 51900000 Ft Amennyiben az ingatlan felkeltette érdeklődését, esetleg bármivel kapcsolatban kérdése lenne, keressen Bizalommal! Verrasztó Edina: +36703156380 Referencia szám: M313814-HI

E-mail küldése a hirdetőnek

Hibás hirdetés bejelentése

Sikeres elküldtük a hiba bejelentést.

Hirdető adatai

Verrasztó Edina Irén
E-mail cím: edina.iren.verraszto@otpip.hu
Telefonszám: +36703156380
OTPip
Hirdetés feladója: Ingatlaniroda
Ingatlaniroda: OTPip
E-mail cím: celldomolk@otpip.hu
Telefonszám: +36707081049

Képek



Térkép


Ajánlott ingatlanok

Családi ház

Eladó Ház, Csorna

Keresés azonosító alapján: HI-2506087
  • Csorna
  • Alapterület: 140 m²
  • Telekterület: 407 m²
  • Ár: 57 900 000 Ft (151 969 €)
  • Feltöltés dátuma: 2025.11.26.
  •  
Családi ház

Eladó Ház, Devecser

Keresés azonosító alapján: HI-2505549
  • Devecser
  • Alapterület: 77 m²
  • Telekterület: 863 m²
  • Ár: 14 900 000 Ft (39 108 €)
  • Feltöltés dátuma: 2025.11.25.
  •  
Családi ház

Eladó Ház, Béb

Keresés azonosító alapján: HI-2480883
  • Béb
  • Alapterület: 107 m²
  • Telekterület: 1 111 m²
  • Ár: 78 000 000 Ft (204 724 €)
  • Feltöltés dátuma: 2025.09.26.
  •  
Családi ház

Kiadó Ház, Nemesgörzsöny

Keresés azonosító alapján: HI-2473307
  • Nemesgörzsöny
  • Alapterület: 20 m²
  • Telekterület: 1 881 m²
  • Ár: 130 000 Ft (341 €)
  • Feltöltés dátuma: 2025.09.12.
  •  
Facebook
Blogger
Twitter
Tweets by hasznaltingatla
Flickr