Eladó Ház, Berekböszörmény

Ingatlan azonosító: HI-2543336

Hajdú-Bihar megye - Berekböszörmény, Családi ház


35 000 000 Ft (90 439 €)

  • Hirdetés feladója: Ingatlaniroda
  • Pontos cím: Berekböszörmény
  • Típus: Eladó
  • Belső irodai azonosító: M319517-5129396
  • Alapterület: 69 m²
  • Telekterület: 2 205 m² ( 613 négyszögöl )
  • Építés éve: 1970
  • Egész szobák száma (12 m² felett): 2 db
  • Félszobák száma (6-12 m² között): 0 db
  • Ingatlan állapota: jó állapotú
  • Komfort: összkomfortos
  • Fűtés: egyéb kazán
  • Pince: nincs
  • Akadálymentesített: nincs
  • Napelem van?: nincs
  • Légkondicionáló: nincs

Leírás

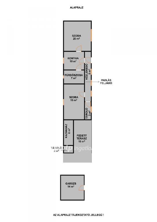
Berekböszörmény nyugodt, nem forgalmas, aszfaltos utcájában kínálunk megvételre egy 69 m2-es, kétszobás családi házat, amely egy 2 205 m2-es, részben körbekerített telken helyezkedik el. A környezet csendes, a szomszédság rendezett és barátságos. Az ingatlan beton alapon, tégla és vályog falazattal épült, kívül 10 cm szigeteléssel ellátva. A fa gerendás tetőszerkezet lemezfedést kapott, amely kb. 4-5 éve teljes felújításon esett át, csakúgy mint a víz- és villamos hálózat, a burkolatok, a nyílászárók és a belső terek gipszkartonozása. A fűtést egy nagy teljesítményű pelletes Ferroli kazán biztosítja radiátoros hőleadókkal. Az udvar több funkcióra kialakított: fa gyerekjátszóházzal, csúszdával és hintákkal, fúrt kúttal, tágas fa tárolóval, külön elkerített résszel állattartásra, valamint betonozott területen kutya kennelel. A telek hátsó része veteményesnek vagy további hasznosításra is kiváló. Helyiségek: - Szoba: 20 m2 - Szoba: 15 m2 - Konyha: 10 m2 - Fürdőszoba: 7 m2 - Közlekedő: 8 m2 - Tároló: 3 m2 - Kazánház: 6 m2 - Tároló: 2 m2 - Fedett terasz: 19 m2 ( beépíthető szobának is) - Különálló garázs: 14 m2 A hirdetésben tervezett látványképek is meg vannak jelenítve, hogy segítsenek a végleges megjelenés pontosabb elképzelésében! További információért hívjon bizalommal akár hétvégén is. Megtekintésre telefonos egyeztetés alapján van lehetőség. Kedvezményes kamatozású lakásvásárlási, felújítási hitelek, OTTHON START valamint CSOK és Babaváró ügyintézés az OTP hátterével irodánkban.

E-mail küldése a hirdetőnek

Hibás hirdetés bejelentése

Sikeres elküldtük a hiba bejelentést.

Hirdető adatai

Mester Tibor
E-mail cím: tibor.mester@otpip.hu
Telefonszám: +36-20-806-7007
OTPip
Hirdetés feladója: Ingatlaniroda
Ingatlaniroda: OTPip
E-mail cím: debrecenkurtos@otpip.hu
Telefonszám: +36-20-528-8700

Képek



Térkép


Ajánlott ingatlanok

Családi ház

Eladó Ház, Bakonszeg

Keresés azonosító alapján: HI-2543377
  • Bakonszeg
  • Alapterület: 48 m²
  • Telekterület: 3 900 m²
  • Ár: 9 900 000 Ft (25 581 €)
  • Feltöltés dátuma: 2026.03.02.
  •  
Családi ház

Eladó Ház, Komádi

Keresés azonosító alapján: HI-2543387
  • Komádi
  • Alapterület: 80 m²
  • Telekterület: 2 158 m²
  • Ár: 9 490 000 Ft (24 522 €)
  • Feltöltés dátuma: 2026.03.02.
  •  
Családi ház

Eladó Ház, Komádi

Keresés azonosító alapján: HI-2543352
  • Komádi
  • Alapterület: 146 m²
  • Telekterület: 934 m²
  • Ár: 27 900 000 Ft (72 093 €)
  • Feltöltés dátuma: 2026.03.02.
  •  
Családi ház

Eladó Ház, Komádi

Keresés azonosító alapján: HI-2543385
  • Komádi
  • Alapterület: 153 m²
  • Telekterület: 1 382 m²
  • Ár: 68 900 000 Ft (178 036 €)
  • Feltöltés dátuma: 2026.03.02.
  •  
Facebook
Blogger
Twitter
Tweets by hasznaltingatla
Flickr