Eladó Ház, Berettyóújfalu

Ingatlan azonosító: HI-2543341

Hajdú-Bihar megye - Berettyóújfalu, Családi ház


88 900 000 Ft (229 716 €)

  • Hirdetés feladója: Ingatlaniroda
  • Pontos cím: Berettyóújfalu
  • Típus: Eladó
  • Belső irodai azonosító: M314199-5075225
  • Alapterület: 112 m²
  • Telekterület: 536 m² ( 149 négyszögöl )
  • Építés éve: 1980
  • Egész szobák száma (12 m² felett): 3 db
  • Félszobák száma (6-12 m² között): 0 db
  • Ingatlan állapota: jó állapotú
  • Komfort: összkomfortos
  • Fűtés: gáz (cirko)
  • Pince: nincs
  • Akadálymentesített: nincs
  • Napelem van?: nincs
  • Légkondicionáló: nincs

Leírás

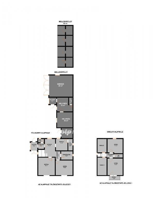
Eladó egy felújított, bútorozott 3 szintes családi ház Berettyóújfaluban! Főbb jellemzők: - Hasznos alapterület: kb. 112 m2 + pince + garázs + wellness rész - Telek: gondozott, díszkerttel és térkövezett udvarral - Állapot: azonnal költözhető, igényesen felújított, bútorozott (gépek nélkül) - Műszaki és szerkezeti adatok: - Stabil beton alap, beton blokk falazat, 10 cm külső szigetelés, nemesvakolat, tetőszigetelés - Kondenzációs gázkazán - Új víz-, villany- és csatornarendszer - Új fűtésrendszer, radiátorok, burkolatok, gipszkartonozás, LED világítás - Műanyag, hőszigetelt nyílászárók, biztonsági bejárati ajtó - Klíma az emeleti szinten - Kamera és riasztórendszer (4 kamerás) Helyiségek elrendezése: Emelet: - Szoba (23 m2) - Szoba (12 m2) - Szoba (11 m2) - Közlekedő (5 m2) - Zuhanyzó (3 m2) - Loggia (5 m2) Földszint: - Konyha + étkező (24 m2) - Nappali (7 m2) - Fürdőszoba (9 m2) - WC (1 m2) - Előszoba (4 m2) - Közlekedő (7 m2) - Lépcső (3 m2) - Fedett, téliesíthető terasz (25 m2) - bútorozott, modern sparhelttel és hűtővel Pince szint: - 2 helyiség (összesen 31 m2) Wellness & Melléképület (2019): - Garázs (15 m2) - elektromos kapuval - Fedett terasz (32 m2) - Tároló (12 m2) - 5 személyes Wellis jakuzzi - 3 személyes Wellis infraszauna - Modern LED világítás, új elektromos hálózat, minőségi burkolatok Külső jellemzők: - Térkövezett és betonozott udvar - Díszkert és kerti főzőrész - Új kerítés és elektromos kapu (elöl és a garázsnál) - Elöl és hátul fedett terasz - hátul wellness résszel További előnyök: - Teljes bútorzat az árban (gépek nélkül) - Modern, energiatakarékos megoldások - Csendes, rendezett környezet - Azonnal költözhető állapot - Tökéletes választás családoknak, akik kényelmes, modern otthont keresnek, vagy pihenésre, feltöltődésre vágyóknak - saját wellness részleggel! További információért hívjon bizalommal akár hétvégén is. Megtekintésre telefonos egyeztetés alapján van lehetőség. Kedvezményes kamatozású lakásvásárlási, felújítási hitelek, OTTHON START valamint CSOK és Babaváró ügyintézés az OTP hátterével irodánkban.

E-mail küldése a hirdetőnek

Hibás hirdetés bejelentése

Sikeres elküldtük a hiba bejelentést.

Hirdető adatai

Mester Tibor
E-mail cím: tibor.mester@otpip.hu
Telefonszám: +36-20-806-7007
OTPip
Hirdetés feladója: Ingatlaniroda
Ingatlaniroda: OTPip
E-mail cím: debrecenkurtos@otpip.hu
Telefonszám: +36-20-528-8700

Képek



Térkép


Ajánlott ingatlanok

Családi ház

Eladó Ház, Báránd

Keresés azonosító alapján: HI-2543351
  • Báránd
  • Alapterület: 71 m²
  • Telekterület: 1 125 m²
  • Ár: 14 990 000 Ft (38 734 €)
  • Feltöltés dátuma: 2026.03.02.
  •  
Családi ház

Eladó Ház, Bihartorda

Keresés azonosító alapján: HI-2543367
  • Bihartorda
  • Alapterület: 108 m²
  • Telekterület: 2 865 m²
  • Ár: 19 900 000 Ft (51 421 €)
  • Feltöltés dátuma: 2026.03.02.
  •  
Családi ház

Eladó Ház, Csökmő

Keresés azonosító alapján: HI-2543348
  • Csökmő
  • Alapterület: 106 m²
  • Telekterület: 1 854 m²
  • Ár: 34 900 000 Ft (90 181 €)
  • Feltöltés dátuma: 2026.03.02.
  •  
Családi ház

Eladó Ház, Komádi

Keresés azonosító alapján: HI-2543391
  • Komádi
  • Alapterület: 72 m²
  • Telekterület: 1 447 m²
  • Ár: 19 900 000 Ft (51 421 €)
  • Feltöltés dátuma: 2026.03.02.
  •  
Facebook
Blogger
Twitter
Tweets by hasznaltingatla
Flickr