Eladó Ház, Besnyő

Ingatlan azonosító: HI-2518025

Fejér megye - Besnyő, Ikerház


79 000 000 Ft (207 349 €)

  • Hirdetés feladója: Ingatlaniroda
  • Pontos cím: Besnyő
  • Típus: Eladó
  • Belső irodai azonosító: M311672-5053638
  • Alapterület: 117 m²
  • Telekterület: 450 m² ( 125 négyszögöl )
  • Építés éve: 2025
  • Egész szobák száma (12 m² felett): 3 db
  • Félszobák száma (6-12 m² között): 2 db
  • Ingatlan állapota: új építésű
  • Komfort: összkomfortos
  • Fűtés: egyéb
  • Pince: nincs
  • Akadálymentesített: nincs
  • Energiatanúsítvány: A+
  • Napelem van?: nincs
  • Légkondicionáló: nincs

Leírás

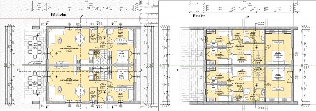
Fejér vármegye, Besnyő településen , 450 nm-es telken, épül meg ez a 117 nm-es, kétszintes ikerház, amely a modern élet minden kényelmét biztosítani fogja leendő tulajdonosának. A kivitelezés során kiemelt figyelmet kap az energiatakarékosság és a fenntarthatóság. Az ingatlan 10 kW-os napelemrendszerrel és léghőszivattyús fűtéssel készül, a hőleadást padlófűtés biztosítja, a melegvízellátást pedig villanybojler. A 117 nm-es otthon földszintjén egy tágas, 30 nm-es amerikai konyhás nappali kap helyet, amely közvetlen kijárattal rendelkezik majd a fedett teraszra és az oldalkertre. Az előtérből nyílik a külön WC, a 7 nm-es fürdőszoba, valamint a 11 nm-es hálószoba, amely az előkertre néz. A földszintről lépcső vezet fel a tetőtérbe, ahol három hálószoba található - egy nagyobb, 19 nm-es ÉK-i, valamint két 9 nm-es DNY-i tájolású szoba. Itt kap helyet a tetőtéri fürdőszoba, a gépészeti helyiség, a gardrób, valamint egy közlekedő. Az épület tégla falazattal, nyeregtetős kialakítással és cserép tetőfedéssel készül, alumínium ereszcsatornával és 3 rétegű hőszigetelt nyílászárókkal felszerelve, hogy hosszú távon is időtálló és energiatakarékos otthont nyújtson. A környék nyugodt és biztonságos, a közlekedés kiváló az M6-os autópályának köszönhetően. Ideális választás mind családalapítás előtt állóknak, mind kisgyermekes családoknak. Ügyfeleink részére mind az adásvétel, mind a hitelügyintézésben díjmentes támogatást biztosítunk, piaci hitel esetén pedig egyedi kamatot ajánlunk! Az építtető egy megbízható cég. Paragi Anikó +36 30 768 0145 / aniko.paragi@otpip.hu Referencia szám: M311672

E-mail küldése a hirdetőnek

Hibás hirdetés bejelentése

Sikeres elküldtük a hiba bejelentést.

Hirdető adatai

Paragi Anikó
E-mail cím: aniko.paragi@otpip.hu
Telefonszám: +36-30-768-0145
OTPip
Hirdetés feladója: Ingatlaniroda
Ingatlaniroda: OTPip
E-mail cím: velence@otpip.hu
Telefonszám: +36-70-457-6920

Képek



Térkép


Ajánlott ingatlanok

Ikerház

Eladó Ház, Besnyő

Keresés azonosító alapján: HI-2518036
  • Besnyő
  • Alapterület: 117 m²
  • Telekterület: 450 m²
  • Ár: 79 000 000 Ft (207 349 €)
  • Feltöltés dátuma: 2026.01.06.
  •  
Ikerház

Eladó Ház, Kápolnásnyék

Keresés azonosító alapján: HI-2518015
  • Kápolnásnyék
  • Alapterület: 122 m²
  • Telekterület: 350 m²
  • Ár: 118 600 000 Ft (311 286 €)
  • Feltöltés dátuma: 2026.01.06.
  •  
Ikerház

Eladó Ház, Besnyő

Keresés azonosító alapján: HI-2518012
  • Besnyő
  • Alapterület: 117 m²
  • Telekterület: 450 m²
  • Ár: 79 000 000 Ft (207 349 €)
  • Feltöltés dátuma: 2026.01.06.
  •  
Ikerház

Eladó Ház, Besnyő

Keresés azonosító alapján: HI-2518035
  • Besnyő
  • Alapterület: 117 m²
  • Telekterület: 450 m²
  • Ár: 79 000 000 Ft (207 349 €)
  • Feltöltés dátuma: 2026.01.06.
  •  
Facebook
Blogger
Twitter
Tweets by hasznaltingatla
Flickr