Eladó ház, Biatorbágy

Ingatlan azonosító: HI-2351458

Pest megye - Biatorbágy, Családi ház


150 000 000 Ft (417 827 €)

  • Hirdetés feladója: Ingatlaniroda
  • Pontos cím: Biatorbágy
  • Típus: Eladó
  • Belső irodai azonosító: HZ097188-4748537
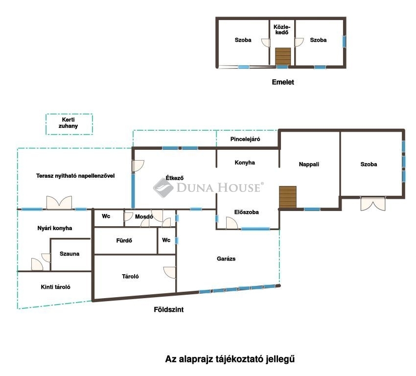
  • Alapterület: 90 m²
  • Telekterület: 5 999 m² ( 1 668 négyszögöl )
  • Építés éve: 1940
  • Egész szobák száma (12 m² felett): 3 db
  • Félszobák száma (6-12 m² között): 0 db
  • Fürdőszobák száma: 1 db
  • Ingatlan állapota: közepes állapotú
  • Fűtés: egyéb
  • Pince: nincs
  • Akadálymentesített: nincs
  • Napelem van?: nincs
  • Légkondicionáló: nincs

Leírás

Budapesthez közel, 6.000 nm-es tanya erdővel, erdészházzal eladó! Biatorbágyon eladóvá vált a régi erdészház, egy 6000 nm-es, erdő ölelte birtokon. A zártkerti ingatlan aszfaltozott útról nagyon jól megközelíthető, a földhivatali nyilvántartás szerint kivett lakóház, udvar, gazdasági épület. A teljesen körbekerített, ősfás telken 3 épület áll. 1. A 90 nm-es, földszintes, félkomfortos főépület felújítható vagy átépíthető. 2. A fák között megbúvó, tetőtér beépítéses, téliesített faház hasznos alapterülete 70 nm. Erdőre néző teraszával ideális elvonulóhely lehet kisebb felújítás után. 3. A régi, földszintes gazdasági épület és garázs 100 nm-es épülettömbje átépítésre szorul. Mellette nyílik egy 16 nm-es, agyagba vájt pince. Az ingatlanban 3x16A és bővizű fúrt kút biztosítja a gazdálkodáshoz szükséges feltételeket. A birtokot kiváló elhelyezkedése, a körülötte elterülő összefüggő erdő, a csend és friss levegő ideális helyszínné teszik kényelmes, exkluzív otthon(ok) megteremtésére is, de befektetésként, egészségügyi szolgáltatás, szálláshely, rekreációs és szabadidős tevékenységek helyszíneként, lovarda, kutyamenhely stb. kialakítására is remek választás. További információkkal készséggel állok rendelkezésére, várom hívását. A Duna House teljes kínálatával kapcsolatban fordulhat hozzám bizalommal. Eladás és vétel teljes körű ügyintézése kulcsátadásig, 12 pénzintézettől a legkedvezőbb, személyre szabott hitelkonstrukció, megbízható ügyvédi háttér biztosítása stb. Vevőink számára minden szolgáltatásunk díjmentes. Az energetikai tanúsítvány készítése folyamatban van, amint rendelkezésre áll, úgy azzal a hirdetés frissítésre kerül. Érd: Gosztola Erika: +36/706382918 email: gosztola.erika@dh.hu https://ingatlanosod.dh.hu/ Referencia szám: HZ097188

E-mail küldése a hirdetőnek

Hibás hirdetés bejelentése

Sikeres elküldtük a hiba bejelentést.

Hirdető adatai

Gosztola Erika
E-mail cím: gosztola.erika@dh.hu
Telefonszám: +36706382918
Duna House
Hirdetés feladója: Ingatlaniroda
Ingatlaniroda: Duna House
E-mail cím: dunaharaszti@dh.hu
Telefonszám: +3624958661

Képek



Térkép


Ajánlott ingatlanok

Családi ház

Eladó ház, Kiskunlacháza

Keresés azonosító alapján: HI-2556151
  • Kiskunlacháza
  • Alapterület: 50 m²
  • Telekterület: 542 m²
  • Ár: 29 999 999 Ft (83 565 €)
  • Feltöltés dátuma: 2026.03.30.
  • klímás
Családi ház

Eladó ház, Kiskunlacháza

Keresés azonosító alapján: HI-2556154
  • Kiskunlacháza
  • Alapterület: 99 m²
  • Telekterület: 819 m²
  • Ár: 94 900 000 Ft (264 345 €)
  • Feltöltés dátuma: 2026.03.30.
  •  
Családi ház

Eladó ház, Halásztelek

Keresés azonosító alapján: HI-2489787
  • Halásztelek
  • Alapterület: 190 m²
  • Telekterület: 640 m²
  • Ár: 119 999 999 Ft (334 262 €)
  • Feltöltés dátuma: 2025.10.15.
  • klímás
Családi ház

Eladó ház, Szigetszentmiklós

Keresés azonosító alapján: HI-2556138
  • Szigetszentmiklós
  • Alapterület: 142 m²
  • Telekterület: 499 m²
  • Ár: 135 900 000 Ft (378 552 €)
  • Feltöltés dátuma: 2026.03.30.
  • klímás
Facebook
Blogger
Twitter
Tweets by hasznaltingatla
Flickr