Eladó Ház, Bihartorda

Ingatlan azonosító: HI-2543367

Hajdú-Bihar megye - Bihartorda, Családi ház


19 900 000 Ft (54 372 €)

  • Hirdetés feladója: Ingatlaniroda
  • Pontos cím: Bihartorda
  • Típus: Eladó
  • Belső irodai azonosító: M316996-5093211
  • Alapterület: 108 m²
  • Telekterület: 2 865 m² ( 797 négyszögöl )
  • Építés éve: 1979
  • Egész szobák száma (12 m² felett): 5 db
  • Félszobák száma (6-12 m² között): 0 db
  • Ingatlan állapota: felújítandó
  • Komfort: összkomfortos
  • Fűtés: gáz (cirko)
  • Pince: nincs
  • Akadálymentesített: nincs
  • Napelem van?: nincs
  • Légkondicionáló: nincs

Leírás

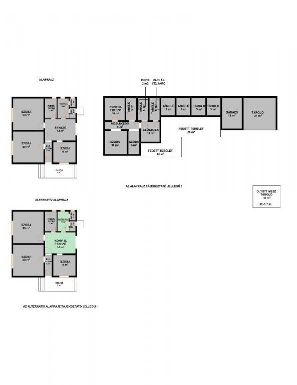
ELADÓ INGATLAN - HÁROM UTCÁRA NYÍLÓ NAGY TELEKKEL BIHARTORDÁN! Több generációs együttéléshez, vállalkozáshoz vagy telekmegosztáshoz is ideális lehetőség! Bihartorda aszfaltozott utcás részén, rendezett lakókörnyezetben, jól megközelíthető minden irányból. Főbb paraméterek: - Telek mérete: 2 865 m2 - Akár 3 különálló telekrészre osztható ( 955 m2 / telek) - Hasznos lakóterület összesen: kb. 124 m2 - Tárolók, műhelyek, garázs: összesen kb. 44 m2 - Fedett terület / beálló: több mint 40 m2 - 3 utcára néző, körben aszfaltozott megközelítés - Összközműves (víz, gáz, villany, csatorna mindkét épületben) Épületek és elrendezés: 1. Családi ház (kb. 77 m2) - Beton alapon, szilikát falazattal - Konyha - Étkező - 3 szoba - Előszoba - Fürdőszoba + WC - Fedett terasz - Fűtés: gázcirkó + vegyestüzelésű kazán 2. Családi ház / Vendégház (kb. 47m2) -Beton alapon, beton blokk falazat -Több helyiség kialakítható lakótérnek / iroda / műhely / apartman célra - Melléképület es garázs (kb. 44m2) - Kisebb pince is tartozik hozzá Tágas, fedett területek - kb. 40 m2 felett - Autó beállónak - Fa, szerszám tárolásra, - Teraszos pihenőrésznek is alkalmas Telek lehetőségek: - Egyben nagy parkosítható kert - Kiváló többgenerációs családoknak - Vállalkozóknak vagy gazdálkodásra, de akár telephelynek is - 3 külön telekre való megosztás - befektetőknek is ideális Az épületek felújítást igényelnek, de stabil-szerkezetűek. Könnyen átalakíthatók, igény szerint modernizálhatók. Ez az ingatlan ritka lehetőség azok számára, akik: - Nagy telket keresnek sok lehetőséggel - Több generációt szeretnének egy helyen, de külön terekben - Befektetésben gondolkodnak - Otthont + vállalkozást szeretnének egy helyen működtetni A hirdetésben tervezett látványképek is meg vannak jelenítve, hogy segítsenek a végleges megjelenés pontosabb elképzelésében! További információért hívjon bizalommal akár hétvégén is. Megtekintésre telefonos egyeztetés alapján van lehetőség. Kedvezményes kamatozású lakásvásárlási, felújítási hitelek, OTTHON START valamint CSOK és Babaváró ügyintézés az OTP hátterével irodánkban.

E-mail küldése a hirdetőnek

Hibás hirdetés bejelentése

Sikeres elküldtük a hiba bejelentést.

Hirdető adatai

Mester Tibor
E-mail cím: tibor.mester@otpip.hu
Telefonszám: +36-20-806-7007
OTPip
Hirdetés feladója: Ingatlaniroda
Ingatlaniroda: OTPip
E-mail cím: debrecenkurtos@otpip.hu
Telefonszám: +36-20-528-8700

Képek



Térkép


Ajánlott ingatlanok

Családi ház

Eladó Ház, Berettyóújfalu

Keresés azonosító alapján: HI-2551420
  • Berettyóújfalu
  • Alapterület: 60 m²
  • Telekterület: 999 m²
  • Ár: 24 900 000 Ft (68 033 €)
  • Feltöltés dátuma: 2026.03.17.
  •  
Családi ház

Eladó Ház, Berettyóújfalu

Keresés azonosító alapján: HI-2549542
  • Berettyóújfalu
  • Alapterület: 99 m²
  • Telekterület: 426 m²
  • Ár: 57 700 000 Ft (157 650 €)
  • Feltöltés dátuma: 2026.03.12.
  •  
Családi ház

Eladó Ház, Berettyóújfalu

Keresés azonosító alapján: HI-2566430
  • Berettyóújfalu
  • Alapterület: 72 m²
  • Telekterület: 1 730 m²
  • Ár: 69 500 000 Ft (189 891 €)
  • Feltöltés dátuma: 2026.04.30.
  • klímás
Családi ház

Eladó Ház, Komádi

Keresés azonosító alapján: HI-2543385
  • Komádi
  • Alapterület: 153 m²
  • Telekterület: 1 382 m²
  • Ár: 68 900 000 Ft (188 251 €)
  • Feltöltés dátuma: 2026.03.02.
  •  
Facebook
Blogger
Twitter
Tweets by hasznaltingatla
Flickr