Eladó Ház, Biharugra

Ingatlan azonosító: HI-2543379

Békés megye - Biharugra, Családi ház


14 990 000 Ft (41 755 €)

  • Hirdetés feladója: Ingatlaniroda
  • Pontos cím: Biharugra
  • Típus: Eladó
  • Belső irodai azonosító: M318480-5115047
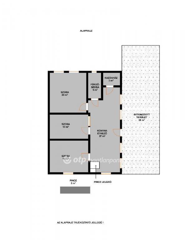
  • Alapterület: 94 m²
  • Telekterület: 1 078 m² ( 300 négyszögöl )
  • Építés éve: 1960
  • Egész szobák száma (12 m² felett): 3 db
  • Félszobák száma (6-12 m² között): 0 db
  • Ingatlan állapota: felújítandó
  • Komfort: komfort nélküli
  • Fűtés: egyéb
  • Pince: nincs
  • Akadálymentesített: nincs
  • Napelem van?: nincs
  • Légkondicionáló: nincs

Leírás

Eladásra kínálunk egy 94 m2-es, 3 szobás családi házat Biharugrán! A családi ház egy csendes és rendezett utcában található egy 1078 m2-es telken. A vegyes falazatú ház felújítása folyamatban van, de már számos fontos korszerűsítés elkészült: kicserélt nyílászárók, új vízvezetékek és villamos hálózat, felújított tetőszerkezet. Elkészültek a belső falak vakolásai, új álmennyezet, új aljzatbeton, a külső homlokzati szigetelés amin rajta a nemesvakolat. A födém összesen kb. 40 cm vastagságban szigetelt, a belső terek befejezése az új tulajdonos igényeire vár. A 66 m2 betonozott terület a ház előtt, alkalmas lehet terasznak, parkolónak vagy egyéb, más célokra is. Helyiségek: - Nappali+konyha+étkező: 37 m2 - Szoba: 20 m2 - Szoba: 16 m2 - Szoba: 13 m2 - Fürdőszoba: 5 m2 - Kazánház: 3 m2 - Pince: 3 m2 A hirdetésben tervezett látványképek is meg vannak jelenítve, hogy segítsenek a végleges megjelenés pontosabb elképzelésében! Az ingatlan jelenleg nem rendelkezik energetikai tanúsítvánnyal, annak elkészítése folyamatban van. További információért hívjon bizalommal akár hétvégén is. Megtekintésre telefonos egyeztetés alapján van lehetőség. Kedvezményes kamatozású lakásvásárlási, felújítási hitelek, OTTHON START valamint CSOK és Babaváró ügyintézés az OTP hátterével irodánkban. Az energetikai tanúsítvány készítése folyamatban van, amint rendelkezésre áll, úgy azzal a hirdetés frissítésre kerül.

E-mail küldése a hirdetőnek

Hibás hirdetés bejelentése

Sikeres elküldtük a hiba bejelentést.

Hirdető adatai

Mester Tibor
E-mail cím: tibor.mester@otpip.hu
Telefonszám: +36-20-806-7007
OTPip
Hirdetés feladója: Ingatlaniroda
Ingatlaniroda: OTPip
E-mail cím: debrecenkurtos@otpip.hu
Telefonszám: +36-20-528-8700

Képek



Térkép


Ajánlott ingatlanok

Családi ház

Eladó Ház, Berettyóújfalu

Keresés azonosító alapján: HI-2560173
  • Berettyóújfalu
  • Alapterület: 59 m²
  • Telekterület: 328 m²
  • Ár: 20 300 000 Ft (56 546 €)
  • Feltöltés dátuma: 2026.04.11.
  •  
Családi ház

Eladó Ház, Komádi

Keresés azonosító alapján: HI-2543363
  • Komádi
  • Alapterület: 54 m²
  • Telekterület: 361 m²
  • Ár: 11 900 000 Ft (33 148 €)
  • Feltöltés dátuma: 2026.03.02.
  •  
Családi ház

Eladó Ház, Körösszakál

Keresés azonosító alapján: HI-2568664
  • Körösszakál
  • Alapterület: 82 m²
  • Telekterület: 1 442 m²
  • Ár: 19 000 000 Ft (52 925 €)
  • Feltöltés dátuma: 2026.05.07.
  •  
Családi ház

Eladó ház, Berettyóújfalu

Keresés azonosító alapján: HI-2543388
  • Berettyóújfalu
  • Alapterület: 80 m²
  • Telekterület: 1 603 m²
  • Ár: 37 900 000 Ft (105 571 €)
  • Feltöltés dátuma: 2026.03.02.
  •  
Facebook
Blogger
Twitter
Tweets by hasznaltingatla
Flickr