Eladó Ház, Bogács

Ingatlan azonosító: HI-2523293

Borsod-Abaúj-Zemplén megye - Bogács, Családi ház


34 900 000 Ft (91 601 €)

  • Hirdetés feladója: Ingatlaniroda
  • Pontos cím: Bogács
  • Típus: Eladó
  • Belső irodai azonosító: M319825-5124909
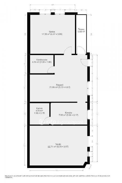
  • Alapterület: 62 m²
  • Telekterület: 870 m² ( 242 négyszögöl )
  • Építés éve: 1950
  • Egész szobák száma (12 m² felett): 1 db
  • Félszobák száma (6-12 m² között): 0 db
  • Ingatlan állapota: jó állapotú
  • Komfort: komfortos
  • Fűtés: egyéb
  • Pince: nincs
  • Akadálymentesített: nincs
  • Napelem van?: nincs
  • Légkondicionáló: nincs

Leírás

Eladó 62 m2-es, 1 szobás családi ház Bogácson, 870 m2-es telken Bogács csendes részén eladásra kínálok egy 62 m2 alapterületű, 1 szobás családi házat, 870 m2-es telken. Az ingatlan jelenlegi fűtését fatüzelésű kályha biztosítja. Az elektromos és a vízhálózat felújításon esett át, így ezek korszerű állapotban vannak. A házhoz kapcsolódik egy 22 m2-es tárolóhelyiség, amely átalakítással könnyen további 1?2 szobává alakítható, így az ingatlan bővíthető az új tulajdonos igényei szerint. A telek végében természetes tufa fal található, amelyben egy kisebb pince került kialakításra. A pince felett egy panorámás kis terasz helyezkedik el, amely kiválóan alkalmas bográcsozásra, pihenésre. Az ingatlan ideális választás: - Állandó lakhatásra. - Nyaralónak vagy hétvégi háznak Bővíthető, továbbfejleszthető ingatlant keresőknek. Természetközeli környezetet kedvelőknek. További információért vagy megtekintés egyeztetéséhez várom megkeresését. OTP Banki hátterünknek köszönhetően finanszírozási igényekben (pl. Otthon Start Program, Babaváró, Falusi CSOK, CSOK Plusz, Lakáshitel, Személyi kölcsön stb.), illetve biztosítások tekintetében is díjmentesen, soron kívüli ügyintézéssel segítem ügyfeleim! Referenciaszám: M319825

E-mail küldése a hirdetőnek

Hibás hirdetés bejelentése

Sikeres elküldtük a hiba bejelentést.

Hirdető adatai

Klubert Gergő
E-mail cím: gergo.klubert@otpip.hu
Telefonszám: +36-70-907-0598
OTPip
Hirdetés feladója: Ingatlaniroda
Ingatlaniroda: OTPip
E-mail cím: miskolc.szemere@otpip.hu
Telefonszám: +36-70-606-0062

Képek



Térkép


Ajánlott ingatlanok

Családi ház

Eladó Ház, Ostoros

Keresés azonosító alapján: HI-2523264
  • Ostoros
  • Alapterület: 77 m²
  • Telekterület: 121 m²
  • Ár: 25 000 000 Ft (65 617 €)
  • Feltöltés dátuma: 2026.01.16.
  • klímás
Családi ház

Eladó Ház, Miskolc

Keresés azonosító alapján: HI-2471421
  • Miskolc
  • Alapterület: 80 m²
  • Telekterület: 1 937 m²
  • Ár: 37 900 000 Ft (99 475 €)
  • Feltöltés dátuma: 2025.09.06.
  •  
Családi ház

Eladó Ház, Szikszó

Keresés azonosító alapján: HI-2523277
  • Szikszó
  • Alapterület: 90 m²
  • Telekterület: 865 m²
  • Ár: 43 000 000 Ft (112 861 €)
  • Feltöltés dátuma: 2026.01.16.
  • klímás
Családi ház

Eladó Ház, Kazincbarcika

Keresés azonosító alapján: HI-2470591
  • Kazincbarcika
  • Alapterület: 150 m²
  • Telekterület: 424 m²
  • Ár: 85 000 000 Ft (223 097 €)
  • Feltöltés dátuma: 2025.09.04.
  •  
Facebook
Blogger
Twitter
Tweets by hasznaltingatla
Flickr