Eladó ház, Budapest 10. ker.

Ingatlan azonosító: HI-2508298

Budapest - Budapest X., Családi ház


149 900 000 Ft (387 339 €)

  • Hirdetés feladója: Ingatlaniroda
  • Pontos cím: Budapest X.
  • Típus: Eladó
  • Belső irodai azonosító: HZ079981-5086825
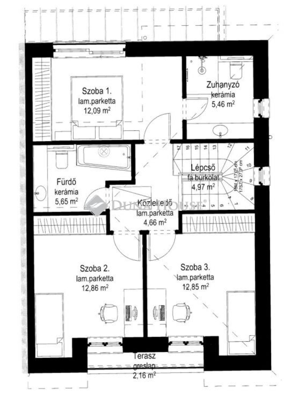
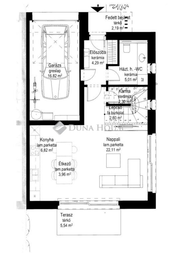
  • Alapterület: 122 m²
  • Telekterület: 231 m² ( 64 négyszögöl )
  • Építés éve: 2026
  • Egész szobák száma (12 m² felett): 4 db
  • Félszobák száma (6-12 m² között): 0 db
  • Fürdőszobák száma: 2 db
  • Ingatlan állapota: új építésű
  • Fűtés: egyéb
  • Pince: nincs
  • Akadálymentesített: nincs
  • Napelem van?: nincs
  • Légkondicionáló: nincs

Leírás

Modern, kétszintes újépítésű ikerház! Budapest X. kerület egyik legnyugodtabb területén, egy csendes mellékutcában, gyönyörű és minőségi családi otthon épül!Az ingatlan a mai kor műszaki elvárásai szerint kerül felépítésre. Prémium minőségű gépészet és kiváló minőségű anyagok felhasználásával. A telek adta lehetőségek a leg optimálisabban került kihasználásra, az ikerház felépítésére. Belső terei megtervezésekor első számú szempont volt a XXI. századi modern kialakítás, a kényelmes és egyben praktikus tér elrendezés.Az ingatlanhoz tartozik egy 231 m2-es kert, amely tökéletes egy nagyobb család számára is. A kert privát és nem látni be rá, megfelelő intimitást nyújt.A csendes elhelyezkedés egyben egy remek infrastruktúrát jelent. A környéken minden megtalálható amire az embernek szüksége lehet, illetve a belváros is rendkívül gyorsan megközelíthető, autóval, és tömegközlekedéssel is.A ház helységei két szinten oszlanak meg, a hasznos alapterület 122 m2.Az otthon szíve a, közel 33 m2-es amerikai konyhás nappali, ami terasz kapcsolatos, ezen a szinten még zuhanyzó+wc, háztartási helyiség kerül kialakításra.Tartozik az ingatlanhoz egy fedett garázs is, ahova bőven be lehet parkolni egy nagyméretű autóval is, illetve a holmik tárolására is tökéletes.A felső szinten további 3 db teljes értékű szoba várja új tulajdonosait, a lakók kényelmét még két db fürdőszoba szolgálja.A vételár tartalmazza:- beépített gépesített konyabútort,- a teljes kertépítést,- a beépített gardróbszekrényeket.MŰSZAKI TARTALOM:- Főfalak: 30 cm POROTHERM 30 N+F vázkerámia falazóblokk falazat ragasztva,- Válaszfalak: 10 cm vtg. kerámia válaszfallapból, speciális ragasztóval, - Koszorúk: monolit vasbeton szerkezet, külső oldalán 5 cm plusz kiegészítő hőszigeteléssel,- Födém: monolit vasbeton födém készül, statikai méretezés szerint, emelet felett fa fedélszék ,- Tető: hagyományos ácsszerkezetű magastető készül 25 fokos hajlásszöggel, dobozolt eresz kialakítással, Terrán Zenit Max Carbon szürke színben cserépfedéssel.- Műanyag nyílászárók fenyő színben, 3 rétegű hőszigetelő üvegezéssel és több pontonzáródó biztonsági bejárati ajtóval.- Burkolatok: hálószobákban laminált parketta melegburkolat, vizes helyiségeben kerámia-, és csempeburkolat készül. Kültéren a gépkocsi behajtó és járdák térkő burkolatúak.- Homlokzati hőszigetelés expandált polisztirol hőszigetelő lemez 15 cm vtg-ban- Lábazati hőszigetelés extrudált polisztirol hőszigetelő lemez 12 cm vtg-ban- Koszorú külső hőszigetelés expandált polisztirol hőszigetelő lemez 5 cm vtg-ban- Hőszigetelés padlóban expandált polisztirol hőszigetelő lemez 10 cm vtg-ban- Födém feletti hőszigetelés EPS hőszigetelés, 20 cm vtg-ban,- hőszivattyús fűtés, mennyezeti fűtés, hútés.EXTRÁK:- OKOS RENDSZER,- elektromos redőnyök,- kamera és riasztó rendszer kiépítés,- videó kaputelefon,- elektromos kapu,- öntöző rendszer,- elektromos autótöltő kiépítés,- Wpc kerítés,- 3 rétegű üvegek,- rejtett világítások,- udvar világítások,- légtechnika.Teljes átláthatóság az építkezés során digitálisan, kényelmesen, biztonságosan!Az építkezés nálunk nem csak szakmai precizitásról szól, hanem valódi átláthatóságról is. A PlanRadar digitális projektkövető rendszerének köszönhetően Ön, mint leendő tulajdonos: Valós időben nyomon követheti az építkezés minden lépését akár mobilról is. Kéthetente részletes jelentést kap az aktuális állapotról, fotókkal, dokumentumokkal. A projekt végén digitálisan megkapja az összes hivatalos dokumentumot, beleértve a garanciákat, tervrajzokat, átadási jegyzőkönyveket mindezt egyetlen, biztonságos platformon.FINANSZÍROZÁS: Hitelre megvásárolható, vevőink részére díjmentes hitel közvetítés, minden magyarországi bankból. Állami támogatások felvehetőek rá!Átadás: 2026. III. NEGYEDÉVNe hagyja ki ezt a páratlan lehetőséget! Egy ilyen prémium ingatlan ritkán kerül piacra, és most Ön előtt áll a lehetőség, hogy a város egyik legvonzóbb helyén éljen. Tökéletes választás a modern, kényelmes és biztonságos életstílust keresők számára!Várom megtisztelő hívását a hét minden napján! Referencia szám: HZ079981-HI

E-mail küldése a hirdetőnek

Hibás hirdetés bejelentése

Sikeres elküldtük a hiba bejelentést.

Hirdető adatai

Zámbó Beatrix
E-mail cím: zambo.beatrix@dh.hu
Telefonszám: +36704215921
Duna House
Hirdetés feladója: Ingatlaniroda
Ingatlaniroda: Duna House
E-mail cím: kertvaros18@dh.hu
Telefonszám: +3617086081

Képek



Térkép


Ajánlott ingatlanok

Családi ház

Eladó ház, Budapest 18. ker.

Keresés azonosító alapján: HI-2508237
  • Budapest XVIII.
  • Alapterület: 80 m²
  • Telekterület: 676 m²
  • Ár: 104 900 000 Ft (271 059 €)
  • Feltöltés dátuma: 2025.12.02.
  •  
Családi ház

Eladó ház, Budapest 17. ker.

Keresés azonosító alapján: HI-2508193
  • Budapest XVII.
  • Alapterület: 86 m²
  • Telekterület: 590 m²
  • Ár: 95 900 000 Ft (247 804 €)
  • Feltöltés dátuma: 2025.12.02.
  •  
Családi ház

Eladó ház, Gyál

Keresés azonosító alapján: HI-2508269
  • Gyál
  • Alapterület: 195 m²
  • Telekterület: 578 m²
  • Ár: 129 990 000 Ft (335 891 €)
  • Feltöltés dátuma: 2025.12.02.
  •  
Családi ház

Eladó ház, Budapest 17. ker.

Keresés azonosító alapján: HI-2508180
  • Budapest XVII.
  • Alapterület: 155 m²
  • Telekterület: 365 m²
  • Ár: 98 000 000 Ft (253 230 €)
  • Feltöltés dátuma: 2025.12.02.
  •  
Facebook
Blogger
Twitter
Tweets by hasznaltingatla
Flickr