Eladó Ház, Budapest 10. ker.

Ingatlan azonosító: HI-2556979

Budapest - Budapest X., Családi ház


195 000 000 Ft (509 138 €)

  • Hirdetés feladója: Ingatlaniroda
  • Pontos cím: Budapest X.
  • Típus: Eladó
  • Belső irodai azonosító: M325481-5188786
  • Alapterület: 167 m²
  • Telekterület: 409 m² ( 114 négyszögöl )
  • Építés éve: 2026
  • Egész szobák száma (12 m² felett): 3 db
  • Félszobák száma (6-12 m² között): 1 db
  • Ingatlan állapota: új építésű
  • Komfort: összkomfortos
  • Fűtés: egyéb
  • Pince: nincs
  • Akadálymentesített: nincs
  • Energiatanúsítvány: A+
  • Napelem van?: nincs
  • Légkondicionáló: nincs

Leírás

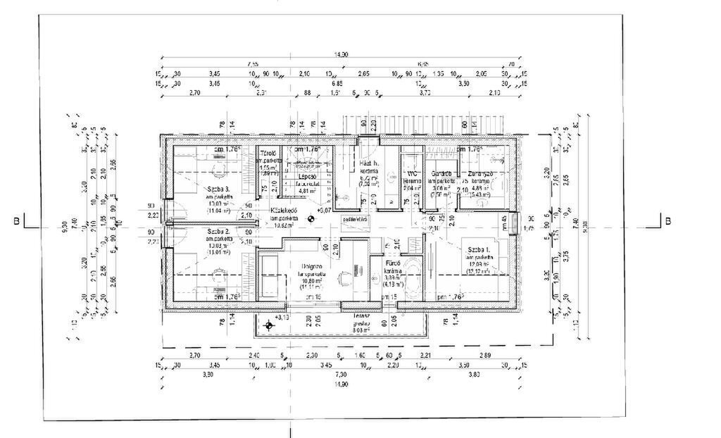
Eladó Kőbányán a 10. kerületben, új építésű , 167 nm alapterületű családi ház. A ház megfelel a családbarát kedvezményeknek és a kedvező hitel lehetőségeknek. A házhoz garázs is készül, kertkapcsolattal és terasszal. A ház teljes mértékben családbarát kialakítású, ahogy az alaprajzokból is kitűnik. Az alsó szinten amerikai konyhás, tágas terű nappalival és étkezővel a család komfort érzetének megfelelően. A felső szinten 2 gyerekszoba és külön hálószoba a családi nyugalom érdekében. Az ingatlan az egyik legmodernebb hőszivattyús rendszerrel épül a gazdaságos energia ellátás céljából. A házban a beépített bútor külön megbeszélés kérdése. A nappaliban lesz fan-coil és az emeleten mennyezet hűtés-fűtés kerül kialakításra. Padlófűtés az egész házban lesz mindenhol. A garázs temperált fűtést kap, de a belső falon lesz 5 cm szigetelés. Szellőztető rendszer csak a garázs és az előszobában kerül kiépítésre, nem kap az ingatlan külön légtechnikát. A kivitelező 2026. év végére tervezi befejezni az egész ingatlan átadását. A családi ház a valóságban úgy fog kinézni, mint a látványterveken. A részletes műszaki és egyéb feltételeket a kivitelező a helyszíni megtekintés során részletesen elmondja. Jöjjön el és szeressen bele ebbe a családbarát ingatlanba! Az OTP Ingatlanpont teljes körű ügyintézéssel áll az eladók és a vevők rendelkezésére. A kínálatunkból választott ingatlan finanszírozásához kedvezményes hitelkonstrukciókat kínálunk. További információkért keressen bizalommal! Referencia szám: M325481

E-mail küldése a hirdetőnek

Hibás hirdetés bejelentése

Sikeres elküldtük a hiba bejelentést.

Hirdető adatai

Lengyel József
E-mail cím: jozsef.lengyel@otpip.hu
Telefonszám: +36-30-428-4623
OTPip
Hirdetés feladója: Ingatlaniroda
Ingatlaniroda: OTPip
E-mail cím: ganz@otpip.hu
Telefonszám: +36-70-451-3893

Képek



Térkép


Ajánlott ingatlanok

Családi ház

Eladó Ház, Vecsés

Keresés azonosító alapján: HI-2556981
  • Vecsés
  • Alapterület: 87 m²
  • Telekterület: 893 m²
  • Ár: 77 000 000 Ft (201 044 €)
  • Feltöltés dátuma: 2026.03.31.
  • klímás
Családi ház

Eladó Ház, Isaszeg

Keresés azonosító alapján: HI-2549580
  • Isaszeg
  • Alapterület: 85 m²
  • Telekterület: 1 083 m²
  • Ár: 68 000 000 Ft (177 546 €)
  • Feltöltés dátuma: 2026.03.12.
  • klímás
Családi ház

Eladó Ház, Diósd

Keresés azonosító alapján: HI-2549595
  • Diósd
  • Alapterület: 388 m²
  • Telekterület: 939 m²
  • Ár: 350 000 000 Ft (913 838 €)
  • Feltöltés dátuma: 2026.03.12.
  •  
Családi ház

Eladó Ház, Budapest 16. ker.

Keresés azonosító alapján: HI-2549596
  • Budapest XVI.
  • Alapterület: 269 m²
  • Telekterület: 1 995 m²
  • Ár: 165 000 000 Ft (430 809 €)
  • Feltöltés dátuma: 2026.03.12.
  •  
Facebook
Blogger
Twitter
Tweets by hasznaltingatla
Flickr