Eladó ház Budapest 11. ker., Sasad

Ingatlan azonosító: HI-2496415

Budapest - Budapest XI., Családi ház


459 900 000 Ft (1 210 263 €)

  • Hirdetés feladója: Ingatlaniroda
  • Pontos cím: Budapest XI.
  • Típus: Eladó
  • Belső irodai azonosító: H507706-5074371
  • Alapterület: 400 m²
  • Telekterület: 1 321 m² ( 367 négyszögöl )
  • Építés éve: 2001
  • Egész szobák száma (12 m² felett): 5 db
  • Félszobák száma (6-12 m² között): 0 db
  • Fürdőszobák száma: 3 db
  • Ingatlan állapota: felújított
  • Fűtés: egyéb
  • Pince: nincs
  • Akadálymentesített: nincs
  • Energiatanúsítvány: A+
  • Napelem van?: nincs
  • Légkondicionáló: nincs

Leírás

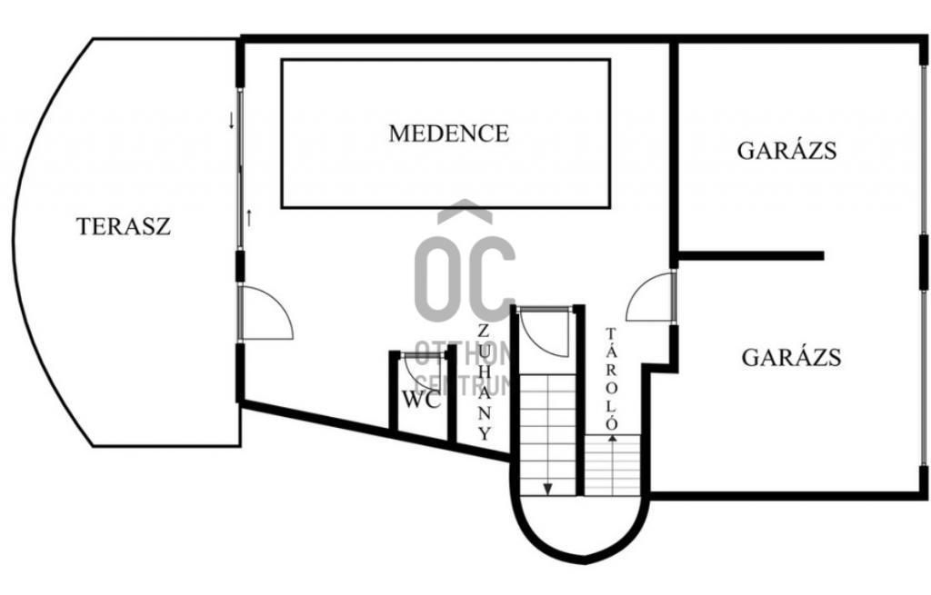
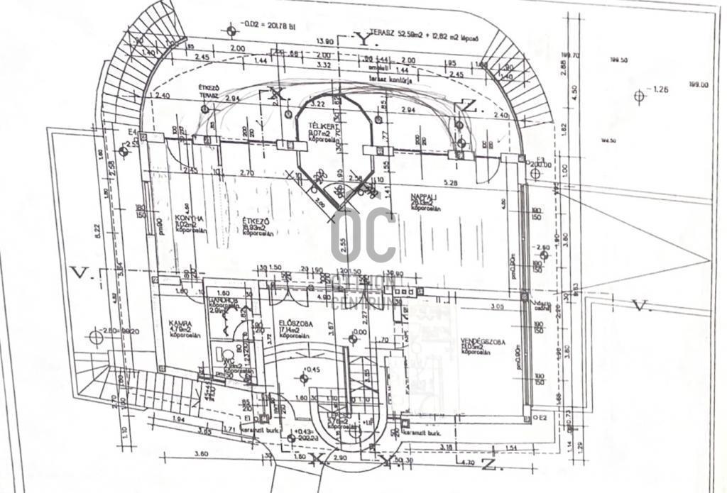
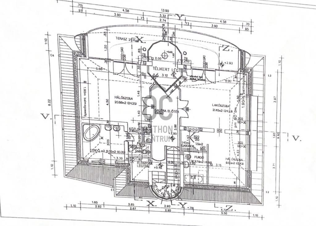
Exkluzív, panorámás családi villa – minimális rezsivel! 1300 m²-es, intim, örökpanorámás telken: 3 szint, 3 szoba, 5 fürdőszoba, márványburkolatok, télikert és tágas, napfényes terek. 400 m²-es villa prémium anyagokból épült: márvány lépcsők és burkolatok, kovácsoltvas korlátok, trópusi fa nyílászárók, padlófűtés és egyedi belső dekorelemek, hangulatos kandalló, tágas teraszok és 1.300 m2 intim kert gondoskodnak a pihenésről, garantálják a luxusérzetet. A ház teljes energetikai korszerűsítésen esett át: hőszivattyú, napelemek, kandalló és hybrid fan-coil valamint okos vezérlőrendszer biztosítja, gondoskodik a rendkívül alacsony fenntartási költségekről. Elrendezés nappali szint – amerikai konyhás nappali, dolgozószoba, gardrób, fürdő felső szint – 3 hálószoba, 2 fürdő, erkélyek, kertszint – garázs, tárolók, wellnessrészleg. Wellnessrészleg feszített víztükrös medencével és szauna-előkészítéssel. 3 autóbeálló garázs, fűthető felhajtó, gyönyörű kert, hatalmas teraszok és csodás panoráma – minden adott a luxus és a kényelem tökéletes harmóniájához. Biztonság: nyitás-, törés- és mozgásérzékelő rádiós riasztórendszer, automata öntözőrendszer. Kiváló lokáció: bevásárlás, gyógyszertár, posta sétatávolságra, M1/M7 gyorsan elérhető. Akiknek ajánlom... 1. Környezettudatos, prémium vásárlók – Akik luxusotthont szeretnének, de fontos számukra a fenntarthatóság és az alacsony rezsi. – Magas jövedelmű családok, akik értékelik a modern technológiát és a zöld megoldásokat. 2. Diplomáciai képviseletek, nagykövetségek – A ház mérete, reprezentatív megjelenése, nagy terei és a csendes, biztonságos környék miatt kiválóan alkalmas rezidenciának vagy nagykövetségi irodának. 3. Vállalkozók, üzletemberek – Akik reprezentatív otthont szeretnének, ahol akár vendégeket, üzleti partnereket is fogadhatnak. – A wellnessrészleg és a panoráma exkluzív környezetet ad, ami státuszszimbólum is. 4. Nagycsaládosok – Az 5 szoba, 4 fürdőszoba, nagy nappali és a kert lehetővé teszi, hogy kényelmesen éljen együtt több generáció. 5. Befektetők / bérbeadók – A nagykövetségi vagy expat bérlők számára magas hozammal, hosszú távon kiadható. Ez a ház ideális választás családnak, nagykövetségnek vagy rezidenciának – igazi ritkaság a piacon! A házról és a környékről minden további részletet valamint a felmerülő kérdésekre a megtekintés alatt tudok választ adni.

E-mail küldése a hirdetőnek

Hibás hirdetés bejelentése

Sikeres elküldtük a hiba bejelentést.

Hirdető adatai

Medgyesi Annamária
E-mail cím: medgyesi.annamaria@oc.hu
Telefonszám: +36 70 412 3676
Otthon Centrum
Hirdetés feladója: Ingatlaniroda
Ingatlaniroda: Otthon Centrum
E-mail cím: kissjanos@oc.hu
Telefonszám: +36 1 815 6583

Képek



Térkép


Ajánlott ingatlanok

Családi ház

Eladó ház Érd, Postástelep

Keresés azonosító alapján: HI-2501567
  • Érd
  • Alapterület: 165 m²
  • Telekterület: 716 m²
  • Ár: 149 900 000 Ft (394 474 €)
  • Feltöltés dátuma: 2025.11.13.
  •  
Családi ház

Eladó ház Budapest 22. ker., Nagytétény - Óhegy

Keresés azonosító alapján: HI-2500880
  • Budapest XXII.
  • Alapterület: 270 m²
  • Telekterület: 731 m²
  • Ár: 199 900 000 Ft (526 053 €)
  • Feltöltés dátuma: 2025.11.12.
  •  
Családi ház

Eladó ház Érd, Fenyves-Parkváros

Keresés azonosító alapján: HI-2501569
  • Érd
  • Alapterület: 144 m²
  • Telekterület: 595 m²
  • Ár: 178 000 000 Ft (468 421 €)
  • Feltöltés dátuma: 2025.11.13.
  •  
Családi ház

Eladó ház Budapest 12. ker., Farkasvölgy

Keresés azonosító alapján: HI-2496423
  • Budapest XII.
  • Alapterület: 282 m²
  • Telekterület: 999 m²
  • Ár: 469 000 000 Ft (1 234 211 €)
  • Feltöltés dátuma: 2025.10.31.
  •  
Facebook
Blogger
Twitter
Tweets by hasznaltingatla
Flickr