Eladó Ház, Budapest 12. ker.

Ingatlan azonosító: HI-2455405

Budapest - Budapest XII., Ikerház


824 712 000 Ft (2 120 082 €)

  • Hirdetés feladója: Ingatlaniroda
  • Pontos cím: Budapest XII.
  • Típus: Eladó
  • Belső irodai azonosító: M292994-4822103
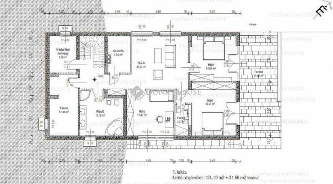
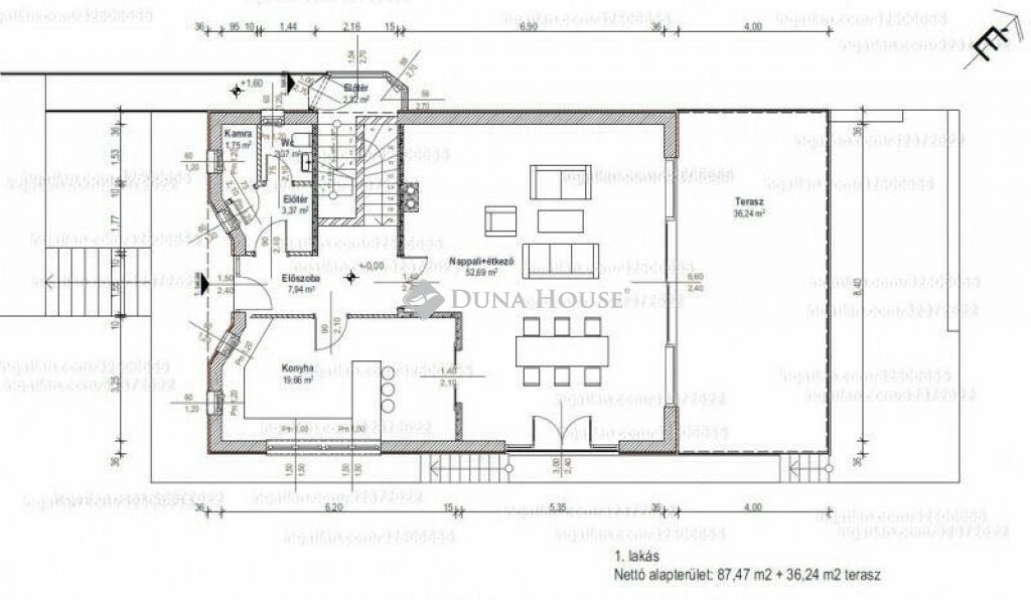
  • Alapterület: 125 m²
  • Telekterület: 779 m² ( 217 négyszögöl )
  • Egész szobák száma (12 m² felett): 5 db
  • Félszobák száma (6-12 m² között): 0 db
  • Ingatlan állapota: újszerű
  • Komfort: luxus
  • Fűtés: egyéb
  • Pince: nincs
  • Akadálymentesített: nincs
  • Napelem van?: nincs
  • Légkondicionáló: nincs

Leírás

Eladó egy különleges hangulatú (222 nm alapterületű) ikerház ősfás környezetben, a tájvédelmi körzet közvetlen közelében, egy csendes utcában. A háromszintes ház fő szintjén egy hatalmas, egybefüggő tér található, amely magában foglalja a nappalit, az étkezőt és a konyhát. A helyiség központi eleme egy egyedi tervezésű cserépkályha, amely nemcsak a melegről gondoskodik, hanem a tér dísze is. A nappaliból pedig gyönyörű panoráma nyílik a budai hegyekre. A lenti szinten három hálószoba és egy dolgozószoba kapott helyet. A szülői hálószoba saját fürdőszobával és egy másik cserépkályhával biztosítja a kényelmet. A két gyerekszobához szintén külön fürdőszoba tartozik, hogy minden családtag számára privát tér álljon rendelkezésre. Az ingatlanhoz tartozik egy tágas garázs, valamint egy saját parkolóhely. Ezen kívül rendelkezésre áll egy nyári konyha, napozóterasz, szauna, kültéri zuhanyzó és egy fatüzelésű dézsa is. A gondosan ápolt kert több száz növényfajból álló botanikus gyűjtemény, amelyet homokozó, trambulin és málnabokrok tesznek még különlegesebbé a gyermekek számára. A ház félig a hegyoldalba épült, kellemes klímát biztosítva télen-nyáron. A nagy üvegfelületek világossá teszik a belső tereket, miközben a természet közelsége kellemes hangulatot teremt. A műszaki tartalom főbb elemei: - Az épület szerkezet monolit vasbeton, 25 cm-es külső szigeteléssel - Belső ytong válaszfalak - A vizes helyiségek és az előszoba kivételével 9 rétegű ragasztott (padlófűtés kompatibilis) kőris parketta - Hőszivattyú, mennyezet hűtés-fűtés, padló fűtés, helyiségenkénti hőmérséklet szabályozással (Rehau, távoli eléréssel) - Két körös vízellátás, fizikai és kémiailag tisztított ivóvíz és lágyított használati hideg és melegvíz - Szintenként 1-1 egyedi tervezésű, fa tüzelésű cserépkályha - A teljes villamos rendszer megtáplálható generátorról - Gira konnektorok és kapcsolók - Bosch főzőlap, sütő, mosogatógép, Electrolux borhűtő, Bosch hűtőszekrény - Külmotoros szagelszívó - Háromfázisú elektromos autó töltési lehetőség (kb. 25A) - Kiegészítő hűtés-fűtésre split klíma (távoli eléréssel) - Háromrétegű üveggel ellátott, tölgy nyílászárók, kívülről alumínium borítással. A nappali szinten a nagy üvegfelületek belső üvegei biztonsági üveggel ellátottak. - Hansgröhe csaptelepek - Laufen wc-k és mosdók - Központi, időkapcsolós külmotoros szellőztető - Motoros Schlotterer redőnyök - Schlotterer szúnyogháló minden nyílászárón - 6 éjjellátó kültéri kamera - Távfelügyeletre bekötve - Infracsapdák a nyílászárókon, mozgásérzékelők szintenként A kocsibejáró közös. A telket szolgalmi jog terheli (földalatti víz, gáz, villany átvezetés miatt). Referencia szám: M292994-HI

E-mail küldése a hirdetőnek

Hibás hirdetés bejelentése

Sikeres elküldtük a hiba bejelentést.

Hirdető adatai

Pócsik Attila
E-mail cím: attila.pocsik@otpip.hu
Telefonszám: +36204054500
OTPip
Hirdetés feladója: Ingatlaniroda
Ingatlaniroda: OTPip
E-mail cím: cegled@otpip.hu
Telefonszám: +36704550993

Képek



Térkép


Ajánlott ingatlanok

Ikerház

Eladó Ház, Orosháza

Keresés azonosító alapján: HI-2483493
  • Orosháza
  • Alapterület: 142 m²
  • Telekterület: 1 059 m²
  • Ár: 38 000 000 Ft (97 686 €)
  • Feltöltés dátuma: 2025.10.01.
  •  
Családi ház

Eladó Ház, Tápiószőlős

Keresés azonosító alapján: HI-2467911
  • Tápiószőlős
  • Alapterület: 54 m²
  • Telekterület: 700 m²
  • Ár: 12 990 000 Ft (33 393 €)
  • Feltöltés dátuma: 2025.08.31.
  •  
Tégla lakás

Eladó Lakás, Mezőhegyes

Keresés azonosító alapján: HI-2483482
  • Mezőhegyes
  • Alapterület: 75 m²
  • Ár: 9 990 000 Ft (25 681 €)
  • Feltöltés dátuma: 2025.10.01.
  •  
Tégla lakás

Eladó Lakás, Budapest 9. ker.

Keresés azonosító alapján: HI-2467900
  • Budapest IX.
  • Alapterület: 38 m²
  • Ár: 64 000 000 Ft (164 524 €)
  • Feltöltés dátuma: 2025.08.31.
  • klímás
Facebook
Blogger
Twitter
Tweets by hasznaltingatla
Flickr