Eladó ház, Budapest 18. ker.

Ingatlan azonosító: HI-2549504

Budapest - Budapest XVIII., Családi ház


247 786 000 Ft (690 212 €)

  • Hirdetés feladója: Ingatlaniroda
  • Pontos cím: Budapest XVIII.
  • Típus: Eladó
  • Belső irodai azonosító: HZ057626-5154458
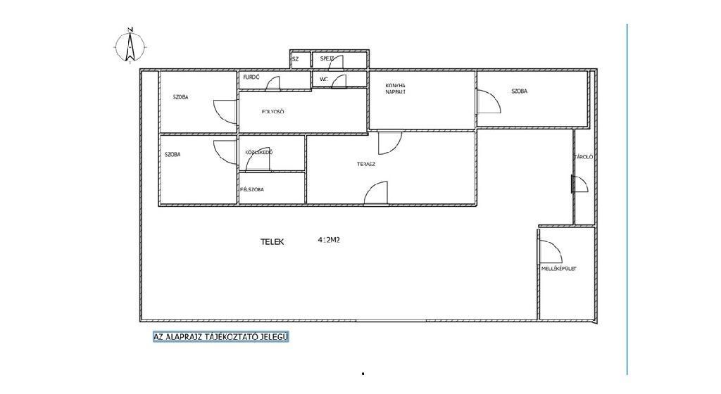
  • Alapterület: 220 m²
  • Telekterület: 1 431 m² ( 398 négyszögöl )
  • Építés éve: 1995
  • Egész szobák száma (12 m² felett): 6 db
  • Félszobák száma (6-12 m² között): 0 db
  • Fürdőszobák száma: 2 db
  • Ingatlan állapota: jó állapotú
  • Fűtés: gázkazán
  • Pince: nincs
  • Akadálymentesített: nincs
  • Napelem van?: nincs
  • Légkondicionáló: nincs

Leírás

**Eladó kétgenerációs, napelemmel ellátott családi ház melléképülettel és hatalmas kerttel, Budapest 18.kerület** Fedezze fel ezt a különleges elhelyezkedésű, igényes családi házat, mely tökéletes választás lehet több generációs családok számára vagy akár vállalkozás céljára is használható, mindössze 5 percre a Liszt Ferenc repülőtértől. A Ganzkertváros csendes utcájában található ingatlan 1 300 m^2-es telken helyezkedik el, melyet 90%-ban beton kerítés vesz körül. Az 220 m^2-es, napelemmel felszerelt ház két szinten kínál tágas, napfényes lakótereket, míg a kb. 100 m^2-es melléképület, amely további lakásnak vagy irodának is kialakítható, rengeteg lehetőséget rejt magában. A ház családoknak és munkához is ideális kialakítást és felszereltséget nyújt. Található benne egy lélegzetelállító nappali épített kandallóval, könyvtár vagy dolgozósarokkal, az étkezőből nyíló padlófűtéses, modern Miele gépekkel felszerelt konyha, valamint két lakószinten elosztva összesen négy hálószoba, amelyek mindegyike klímával rendelkezik a kényelmes pihenés érdekében. A gondosan megtervezett fürdőszobák modern kényelmet nyújtanak, míg a többi helyiség, mint a gardróbszoba, a fedett erkély és a télikert, tovább növelik az otthon kényelmét és funkcionalitását. A melléképület dupla garázzsal, hobbyszobákkal, valamint egy külső bárral büszkélkedhet, a tetőtér pedig további lakó- vagy munkahelyiségekké alakítható. A hatalmas kertben található pavilon és tűzrakó teret ad a szabadidős tevékenységekhez, miközben a teljes áramellátást a napelem park biztosítja. **Kertvárosi élet a fővárosban, csend és zöld környezet, mégis közel a város szívéhez és a repülőtérhez.** Az ingatlan környékének infrastruktúrája kiváló, a közlekedési kapcsolatoknak köszönhetően a belváros gyorsan elérhető, az M0, M4 és M5 autópályák pedig rövid távolságra találhatóak. Budapest 18. kerülete ideális választás azok számára, akik a városi élet kényelmét keresik, de nem szeretnének lemondani a természet közelségéről és a nyugodt, családias környezetről. Engedje, hogy ez a csodálatos ingatlan legyen az Ön új otthona, ahol a modern kényelmi feltételek és a természetes környezet harmonikus egységben ötvöződik. Tegyen egy lépést az álomotthon felé ebben a dinamikusan fejlődő, mégis békés kerületben. Az energetikai tanúsítvány készítése folyamatban van, amint rendelkezésre áll, úgy azzal a hirdetés frissítésre kerül. Referencia szám: HZ057626

E-mail küldése a hirdetőnek

Hibás hirdetés bejelentése

Sikeres elküldtük a hiba bejelentést.

Hirdető adatai

Fekete Zsófia Anna
E-mail cím: fekete.zsofia@dh.hu
Telefonszám: +36301483879
Duna House
Hirdetés feladója: Ingatlaniroda
Ingatlaniroda: Duna House
E-mail cím: maglod@dh.hu
Telefonszám: +36303911743

Képek



Térkép


Ajánlott ingatlanok

Családi ház

Eladó ház, Budapest 17. ker.

Keresés azonosító alapján: HI-2466652
  • Budapest XVII.
  • Alapterület: 108 m²
  • Telekterület: 320 m²
  • Ár: 173 400 000 Ft (483 008 €)
  • Feltöltés dátuma: 2025.08.27.
  •  
Családi ház

Eladó ház, Ócsa

Keresés azonosító alapján: HI-2546392
  • Ócsa
  • Alapterület: 204 m²
  • Telekterület: 864 m²
  • Ár: 89 500 000 Ft (249 304 €)
  • Feltöltés dátuma: 2026.03.04.
  •  
Családi ház

Eladó ház, Gomba

Keresés azonosító alapján: HI-2550807
  • Gomba
  • Alapterület: 137 m²
  • Telekterület: 1 013 m²
  • Ár: 127 000 000 Ft (353 760 €)
  • Feltöltés dátuma: 2026.03.15.
  •  
Családi ház

Eladó ház, Vecsés

Keresés azonosító alapján: HI-2535979
  • Vecsés
  • Alapterület: 143 m²
  • Telekterület: 370 m²
  • Ár: 129 900 000 Ft (361 838 €)
  • Feltöltés dátuma: 2026.02.12.
  •  
Facebook
Blogger
Twitter
Tweets by hasznaltingatla
Flickr