Eladó Ház, Budapest 18. ker.

Ingatlan azonosító: HI-2534608

Budapest - Budapest XVIII., Családi ház


249 000 000 Ft (631 980 €)

  • Hirdetés feladója: Ingatlaniroda
  • Pontos cím: Budapest XVIII.
  • Típus: Eladó
  • Belső irodai azonosító: M321213-5144732
  • Alapterület: 290 m²
  • Telekterület: 882 m² ( 245 négyszögöl )
  • Építés éve: 2003
  • Egész szobák száma (12 m² felett): 5 db
  • Félszobák száma (6-12 m² között): 1 db
  • Ingatlan állapota: jó állapotú
  • Komfort: duplakomfortos
  • Fűtés: gáz (cirko)
  • Pince: nincs
  • Akadálymentesített: nincs
  • Napelem van?: nincs
  • Légkondicionáló: van

Leírás

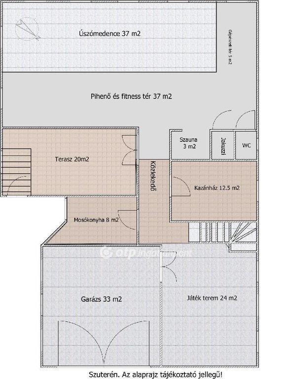
Exkluzív családi ház eladó a XVIII. kerület kedvelt részén, Lónyay telepen Budapest XVIII. kerületének egyik legkeresettebb részén, a Lónyay telepen eladó egy 882 nm-es telken álló, 2003-ban kiváló minőségben épült, 2 szintes, összesen 290 nm-es családi ház. A földszinten (150 nm) egy tágas, 4 + 1 félszobás lakótér, valamint egy hangulatos télikert kapott helyet. A 140 nm-es szuterén szinten került kialakításra a beltéri uszoda wellness résszel, továbbá dupla állásos, rámpafűtéses garázs, gépészeti helyiség, pingpong szoba és mosókonyha. A ház minden igényt kielégítő műszaki tartalommal rendelkezik: – fűtés és hűtés gázkazánnal és hűtő-fűtő klímával – kiépített kamerarendszer – rendezett, gondozott kert – telken belül több autó parkolása megoldott – kerti fa tároló A környék infrastruktúrája kiváló: üzletek, szolgáltatások, tömegközlekedés és SZTK 2–5 percen belül elérhetők. Ideális választás nagycsaládosoknak vagy azoknak, akik egy tágas, minőségi, wellness funkciókkal rendelkező otthont keresnek. Megtekintésért keressen bizalommal! ⸻ Exclusive family house for sale in District XVIII, Lónyaytelep For sale in one of the most popular areas of Budapest’s 18th district, on the Lónyaytelep, a high-quality, two-level family house built in 2003, with a total size of 290 sqm, located on an 882 sqm plot. The ground floor (150 sqm) features a spacious 4 + 1 half-room living area and a bright winter garden. The 140 sqm basement level includes an indoor swimming pool with wellness area, a double garage with heated ramp, mechanical room, ping-pong room and laundry room. Key features: – gas boiler heating and heating/cooling air conditioning – built-in security camera system – landscaped garden – multiple parking spaces within the plot – wooden garden storage Excellent infrastructure: shops, public transport, medical services and amenities are within 2–5 minutes. An ideal home for families seeking space, comfort and premium quality living. Contact me for more details or a viewing. Referencia szám: M321213-HI

E-mail küldése a hirdetőnek

Hibás hirdetés bejelentése

Sikeres elküldtük a hiba bejelentést.

Hirdető adatai

Gregoryan Artur
E-mail cím: artur.gregoryan@otpip.hu
Telefonszám: +36706300162
OTPip
Hirdetés feladója: Ingatlaniroda
Ingatlaniroda: OTPip
E-mail cím: pannonia@otpip.hu
Telefonszám: +36707082439

Képek



Térkép


Ajánlott ingatlanok

Családi ház

Eladó Ház, Budapest 21. ker.

Keresés azonosító alapján: HI-2528095
  • Budapest XXI.
  • Alapterület: 543 m²
  • Telekterület: 543 m²
  • Ár: 165 000 000 Ft (418 782 €)
  • Feltöltés dátuma: 2026.01.31.
  • klímás
Családi ház

Eladó Ház, Budapest 3. ker.

Keresés azonosító alapján: HI-2528722
  • Budapest III.
  • Alapterület: 160 m²
  • Telekterület: 387 m²
  • Ár: 169 000 000 Ft (428 934 €)
  • Feltöltés dátuma: 2026.02.02.
  •  
Családi ház

Eladó Ház, Budapest 21. ker.

Keresés azonosító alapján: HI-2528091
  • Budapest XXI.
  • Alapterület: 94 m²
  • Telekterület: 550 m²
  • Ár: 115 000 000 Ft (291 878 €)
  • Feltöltés dátuma: 2026.01.31.
  •  
Családi ház

Eladó Ház, Budapest 21. ker.

Keresés azonosító alapján: HI-2553243
  • Budapest XXI.
  • Alapterület: 257 m²
  • Telekterület: 580 m²
  • Ár: 299 000 000 Ft (758 883 €)
  • Feltöltés dátuma: 2026.03.22.
  •  
Facebook
Blogger
Twitter
Tweets by hasznaltingatla
Flickr