Eladó ház, Budapest 18. ker.

Ingatlan azonosító: HI-2490950

Budapest - Budapest XVIII., Családi ház


165 000 000 Ft (426 357 €)

  • Hirdetés feladója: Ingatlaniroda
  • Pontos cím: Budapest XVIII.
  • Típus: Eladó
  • Belső irodai azonosító: HZ026669-5065788
  • Alapterület: 162 m²
  • Telekterület: 616 m² ( 171 négyszögöl )
  • Építés éve: 2025
  • Egész szobák száma (12 m² felett): 5 db
  • Félszobák száma (6-12 m² között): 0 db
  • Fürdőszobák száma: 1 db
  • Ingatlan állapota: új építésű
  • Fűtés: egyéb
  • Pince: nincs
  • Akadálymentesített: nincs
  • Napelem van?: nincs
  • Légkondicionáló: nincs

Leírás

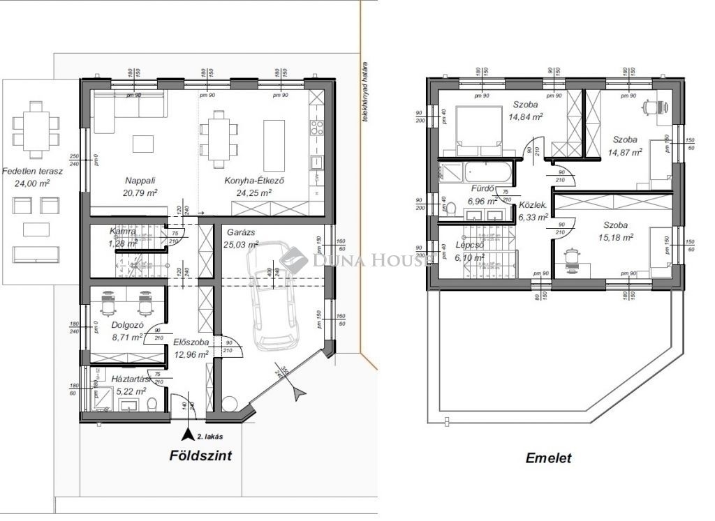
18. kerületben két szintes új építésű családi ház eladó!Budapest 18. kerület Kossuth Ferenc Telep városrészén, csendes mellékutcában, 162 nm-es új építésű családi ház hőszivattyús fűtéssel, 616 nm-es saját telken.A családi otthon magas műszaki tartalommal épül, várható befejezés: 2026. I. NEGYEDÉV.Megbízható építtető, a környéken is több referencia házzal rendelkezik.A földszinti szintre belépve tágas közlekedőből jutunk a 45 nm-es amerikai konyha nappaliba, mely a családi élet színtere lehet, ezenkívül, dolgozószoba, háztartási helyiség, tároló kerül kialakításra.A nappaliból nyílik majd egy 24 nm es fedett terasz.A földszinti szint 96 nm az emelti szint 64 nm-es.A garázs 25 nm-es alapterülettel fog rendelkezni.Az emeletre kényelmes lépcsőn jutunk fel, három teljes értékű szoba, fürdő szoba+wc várja új lakóit. A szobák méretei: 14,8 nm, 14,8 nm. 15,1 nm.Az építkezés olyan fázisban van, hogy még egyedi megoldások is kivitelezhetőek.Főbb műszaki tartalom:- 30 cm-es Porotherm főfalak és 10 cm-es Porotherm válaszfalak- 10 cm-es homlokzati szigetelés,- a padló 12 cm lépésálló hő és hangszigetelő anyagból és terv szerinti vastagságú aljzatbeton rétegből áll,- hőszivattyús fűtés, akár padlófűtéssel, akár radiátoros fűtéssel,- a hálószobában és a nappaliban klíma előkészítés készül,- a tető szigetelt lapostető, felár ellenében sátortető kérhető,- a leendő épület elektromos kiszolgálása, 3x16 A ellátással történik,- külső nyílászárók: 6 légkamrás ablakok, kívül belül fehér színű, műanyagból készülnek,- felár ellenében redőny ész szúnyogháló beépíthető.- beltéri ajtók 50.000 Ft / db árig- belső felületképzések: vakolat felületek kétszeri gletteléssel, és 2 réteg fehér falfestékkel kezelve kerülnek kialakításra, színes festés lehetséges,- hideg- és melegburkolatok 5.000 Ft / nm árig.Komoly érdeklődés esetén a MŰSZAKI TARTALOM MEGTEKINTHETŐ!Az infrastruktúra kivételes, séta távolságra bölcsőde, óvoda, általános iskola, játszótér, orvosi rendelő, posta, bevásárlási lehetőségek, pékségek.Közelben buszmegálló, gépkocsival az M0, M4, M5 pár perc alatt elérhető.A Duna House teljes kínálatával kapcsolatban forduljon hozzám bizalommal.Hitel ügyintézés garantáltan a legjobb feltételekkel és a leggyorsabban.Eladás és vétel teljes körű ügyintézése, ingyenes tanácsadás, értékbecslés, megbízható ügyvédi háttér biztosítása!Várom megtisztelő hívását a hét minden napján. Referencia szám: HZ026669-HI

E-mail küldése a hirdetőnek

Hibás hirdetés bejelentése

Sikeres elküldtük a hiba bejelentést.

Hirdető adatai

Zámbó Beatrix
E-mail cím: zambo.beatrix@dh.hu
Telefonszám: +36704215921
Duna House
Hirdetés feladója: Ingatlaniroda
Ingatlaniroda: Duna House
E-mail cím: kertvaros18@dh.hu
Telefonszám: +3617086081

Képek



Térkép


Ajánlott ingatlanok

Családi ház

Eladó ház, Gyál

Keresés azonosító alapján: HI-2498501
  • Gyál
  • Alapterület: 240 m²
  • Telekterület: 715 m²
  • Ár: 194 900 000 Ft (503 618 €)
  • Feltöltés dátuma: 2025.11.05.
  •  
Családi ház

Eladó ház, Budapest 21. ker.

Keresés azonosító alapján: HI-2489228
  • Budapest XXI.
  • Alapterület: 70 m²
  • Telekterület: 563 m²
  • Ár: 31 900 000 Ft (82 429 €)
  • Feltöltés dátuma: 2025.10.14.
  •  
Családi ház

Eladó ház, Monor

Keresés azonosító alapján: HI-2493131
  • Monor
  • Alapterület: 201 m²
  • Telekterület: 901 m²
  • Ár: 149 900 000 Ft (387 339 €)
  • Feltöltés dátuma: 2025.10.23.
  •  
Családi ház

Eladó ház, Gárdony

Keresés azonosító alapján: HI-2457840
  • Gárdony
  • Alapterület: 110 m²
  • Telekterület: 419 m²
  • Ár: 89 500 000 Ft (231 266 €)
  • Feltöltés dátuma: 2025.08.05.
  •  
Facebook
Blogger
Twitter
Tweets by hasznaltingatla
Flickr