Eladó ház, Budapest 18. ker.

Ingatlan azonosító: HI-2522360

Budapest - Budapest XVIII., Ikerház


129 900 000 Ft (331 378 €)

  • Hirdetés feladója: Ingatlaniroda
  • Pontos cím: Budapest XVIII. Ganz Ábrahám utca
  • Típus: Eladó
  • Belső irodai azonosító: HZ032761-5108819
  • Alapterület: 143 m²
  • Telekterület: 375 m² ( 104 négyszögöl )
  • Egész szobák száma (12 m² felett): 5 db
  • Félszobák száma (6-12 m² között): 0 db
  • Fürdőszobák száma: 1 db
  • Ingatlan állapota: új építésű
  • Fűtés: elektromos
  • Pince: nincs
  • Akadálymentesített: nincs
  • Napelem van?: nincs
  • Légkondicionáló: nincs

Leírás

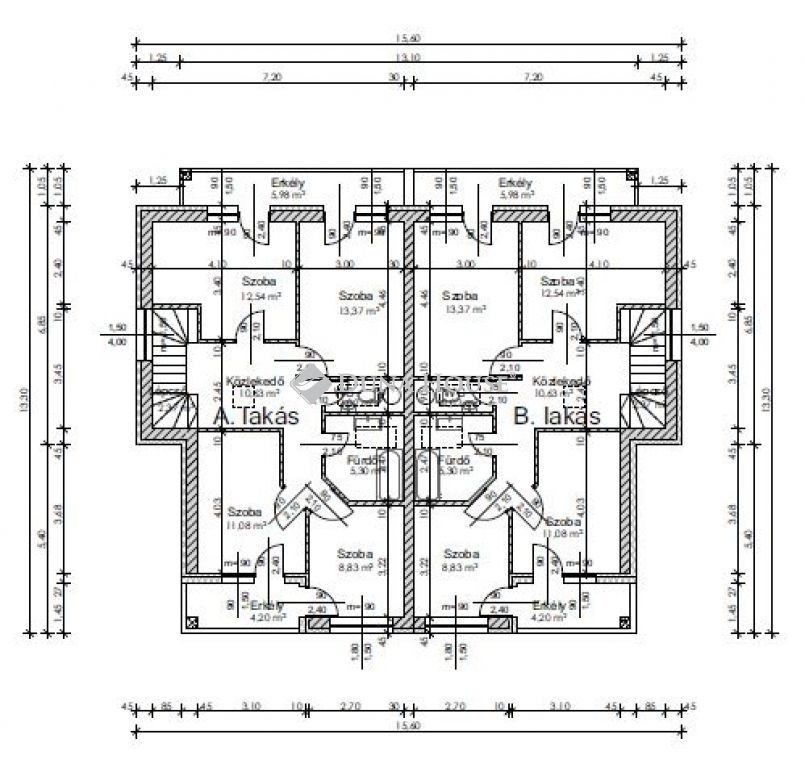
Új építésű, amerikai konyhás nappali + 4 szobás, napelemes, dupla erkélyes ikerházfél GanzkertvárosbanEladó Budapest 18.kerületében, Ganzkertváros csendes, új építésű részén egy 143 nm - es, amerikai konyhás nappali + 4 szobás ikerházfél 375 nm - es telekkel.Minden állami támogatás, CSOK PLUSZ, ILLETÉKMENTESSÉG igénybe vehető!!A lakás földszinti helyiségei: amerikai konyhás nappali, kamra, előszoba, mosdó, garázs, tároló, terasz.A lakás nettó földszinti alapterület: 77 nm.A lakás emeleti helyiségei: 4 db szoba (mindegyik erkélyes), közlekedő, WC, fürdő, 2 db erkély.A lakás nettó emeleti alapterület: 66 nmMűszaki leírás:- 30 - as phorotherm tégla- 10 cm szigetelés- hideg- és melegburkolatok 4.000 - 4.500 Ft / nm-ig- beton födém- műanyag nyílászárók- műanyag bejárati ajtó, garázskapu- infra film fűtés- napelemTeljes műszaki leírás, méretarányos tervrajz, teljes dokumentáció irodánkban megtekinthető.A Duna House teljes kínálatával kapcsolatban forduljon hozzám bizalommal. Hitel ügyintézés garantáltan a legjobb feltételekkel és a leggyorsabban. Eladás és vétel teljes körű ügyintézése, ingyenes tanácsadás, értékbecslés, megbízható ügyvédi háttér biztosítása.IGÉNY ESETÉN - ÉLŐ SKYPEVIDEO LAKÁSBEMUTATÁS, TELJES KÖRŰ ONLINE ÜGYINTÉZÉS!

E-mail küldése a hirdetőnek

Hibás hirdetés bejelentése

Sikeres elküldtük a hiba bejelentést.

Hirdető adatai

Gáspár Olivér
E-mail cím: gaspar.oliver@dh.hu
Telefonszám: +36706532920
Duna House
Hirdetés feladója: Ingatlaniroda
Ingatlaniroda: Duna House
E-mail cím: zaragoza@dh.hu
Telefonszám: +36305490065

Képek



Térkép


Ajánlott ingatlanok

Ikerház

Eladó ház, Halásztelek

Keresés azonosító alapján: HI-2513036
  • Halásztelek Zenthe Ferenc utca
  • Alapterület: 120 m²
  • Telekterület: 595 m²
  • Ár: 114 900 000 Ft (293 112 €)
  • Feltöltés dátuma: 2025.12.16.
  •  
Ikerház

Eladó ház, Budapest 20. ker.

Keresés azonosító alapján: HI-2551814
  • Budapest XX. Kakastó utca
  • Alapterület: 114 m²
  • Telekterület: 85 m²
  • Ár: 124 900 000 Ft (318 622 €)
  • Feltöltés dátuma: 2026.03.18.
  •  
Ikerház

Eladó ház, Budapest 18. ker.

Keresés azonosító alapján: HI-2551820
  • Budapest XVIII. Tarkő utca
  • Alapterület: 109 m²
  • Telekterület: 250 m²
  • Ár: 165 000 000 Ft (420 918 €)
  • Feltöltés dátuma: 2026.03.18.
  •  
Ikerház

Eladó ház, Budapest 18. ker.

Keresés azonosító alapján: HI-2551802
  • Budapest XVIII. Sepsiszentgyörgy utca
  • Alapterület: 109 m²
  • Telekterület: 250 m²
  • Ár: 155 000 000 Ft (395 408 €)
  • Feltöltés dátuma: 2026.03.18.
  •  
Facebook
Blogger
Twitter
Tweets by hasznaltingatla
Flickr