Eladó ház, Budapest 18. ker.

Ingatlan azonosító: HI-2493544

Budapest - Budapest XVIII., Családi ház


310 000 000 Ft (803 109 €)

  • Hirdetés feladója: Ingatlaniroda
  • Pontos cím: Budapest XVIII.
  • Típus: Eladó
  • Belső irodai azonosító: HZ085332-5069485
  • Alapterület: 386 m²
  • Telekterület: 745 m² ( 207 négyszögöl )
  • Építés éve: 2000
  • Egész szobák száma (12 m² felett): 9 db
  • Félszobák száma (6-12 m² között): 0 db
  • Fürdőszobák száma: 3 db
  • Ingatlan állapota: felújított
  • Fűtés: gáz (cirko)
  • Pince: nincs
  • Akadálymentesített: nincs
  • Napelem van?: nincs
  • Légkondicionáló: nincs

Leírás

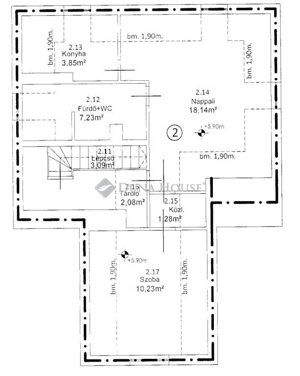
XVIII. KERÜLET BÓKAY-KERT SZÍVÉBEN!XVIII. kerület közkedvelt részén a Bókay kert szomszédságában eladó egy otthonos, hangulatos, nettó 386 nm-es, bruttó 456 nm-es, körbejárható, önálló családi ház.A családi otthon különlegessége, hogy jelen állapotában a három szinten, három teljeskörűen kialakított teljes értékű lakásból áll.Az épület nem utcafronti, körbejárható családi ház. Az ingatlan tájolását tekintve előnyös, mert ablakai mind a négy égtájra nyílnak, ezáltal világos és hangulatos az épület.Az ház teher-, per-, jog- és igénymentes, hitelezhető.A telek össz mérete 745 nm.Az ingatlanhoz séta közelben több üzlet (Lidl Spar, Aldi, DM, stb.) és általános iskola, óvoda és bölcsőde, illetve rendelőintézet valamint buszmegálló található. Bármely busszal az M3-as metróvonal 10 perc alatt elérhető. Az M0 autóút negyedórán belül elérhető.A családi otthonban kialakításra került egy földszinti, illetve egy első emeleti és a műszakilag hozzá tartozó tetőtéri részből álló önálló lakás. A ház szuterén részén egy 106 nm-es pince húzódik, mely külső és belső lépcsőtéren egyaránt megközelíthető. Vállalkozás, illetve garázs céljára egyaránt alkalmas a szuterén. Az ingatlan 2000-ben épült. A jelenleg is zajló felújítási munkák várhatóan 2025. évben illetve 2026. év első negyedévében érnek véget.A földszinti lakás hasznos alapterülete: 93 nm, a terasz: 42 nm, és a saját pince rész 33 nm.Az emeleti lakás hasznos alapterülete: 143 nm, a saját szuterén rész: 73,67 nm.A telek végében egy 44 nm-es épület található, mely választása szerint akár az Öné is lehet! Az ingatlan 1 szoba plusz amerikai konyhás nappaliból, kis előtérből és zuhanyzós fürdő WC helységből áll. A fűtést és a meleg vizet kondenzációs kazán biztosítja.Az egész épületre jellemző műszaki adatok:- az épület 15 cm szigeteléssel ellátott - a nyílászárók műanyag típusúak, redőnnyel és szúnyoghálóval ellátva- a földszinten a melegvíz ellátását villanybojler biztosítja, a fűtést 3 db klíma látja el, melyek nyáron hűtenek is- az első emeleten és a tetőtéren kondenzációs kazán biztosítja a fűtést és a meleg vizet, valamint egy napkollektor is üzemel- a villanyvezeték rézcsővel kiépített,- a vízvezetékek cseréje megtörtént,- minden helyiség felújított,- a tető zsindellyel borított,- a földszinti lakás belmagassága, 2,8 m az emeleti lakás belmagassága: 2,6 m,- a térburkolatok kövesek,- a lakásokban a szobák parkettásak, a közlekedő helyiségek és a vizesblokkok járólaposak- az utcafronton több autó parkolására van lehetőség.A konyhabútor kivitelezése mindhárom lakásban az új tulajdonos feladata!A földszint:A földszinti rész tágas közlekedőből, önállóan nyíló kettő darab keleti tájolású 15 nm-es és 12 nm-es szobából, illetve egy zuhanyzós fürdőszobából és külön WC helyiségből áll. A keleti tájolású konyhához, az egy légterű a 28 nm-es nappali tartozik, mely nyugati fekvésű. A nappali a 42 nm-es terasszal kapcsolatos. Első emelet, és tetőtér: Az első emeleten a nyugati tájolású 27 nm-es amerikai konyhás nappali mellett három szoba került kialakításra, melyből a 16 nm-es déli, a 15 nm-es és a 12 nm-es szoba déli tájolású. A zuhanyzós fürdőszoba WC-vel együtt nyugati fekvésű, illetve külön kialakításra került egy WC helyiség is. A közlekedő igen tágas, a szobák önállóan nyílnak (egyik sem zsákszoba!). Az emeleti részen két terasz is található, egyik keleti (kisebb és utcafronti), a másik nyugati tájolású (nagyobb és kertre néző), mindkettő kényelmes elrendezésű.A tetőtérben található két nagyobb és egy kisebb helyiség, melyben, konyha is kialakításra kerül.. A tetőtérben kialakításra került egy zuhanyzós fürdőszoba WC-vel együtt.Az ingatlan méretét tekintve, alkalmas több generáció összeköltözésére, vállalkozás üzemeltetésére. Amennyiben felkeltette érdeklődését, és úgy érzi, hogy a hirdetéssel rátalált ideális otthonára, további információért és megtekintéssel kapcsolatban keressen bizalommal!Jöjjön el és tekintse meg leendő otthonát, várom megtisztelő hívását! Referencia szám: HZ085332-HI

E-mail küldése a hirdetőnek

Hibás hirdetés bejelentése

Sikeres elküldtük a hiba bejelentést.

Hirdető adatai

Zámbó Beatrix
E-mail cím: zambo.beatrix@dh.hu
Telefonszám: +36704215921
Duna House
Hirdetés feladója: Ingatlaniroda
Ingatlaniroda: Duna House
E-mail cím: kertvaros18@dh.hu
Telefonszám: +3617086081

Képek



Térkép


Ajánlott ingatlanok

Családi ház

Eladó ház, Budapest 18. ker.

Keresés azonosító alapján: HI-2471492
  • Budapest XVIII.
  • Alapterület: 194 m²
  • Telekterület: 535 m²
  • Ár: 129 000 000 Ft (334 197 €)
  • Feltöltés dátuma: 2025.09.07.
  •  
Családi ház

Eladó ház, Üllő

Keresés azonosító alapján: HI-2496785
  • Üllő
  • Alapterület: 150 m²
  • Telekterület: 648 m²
  • Ár: 129 900 000 Ft (336 528 €)
  • Feltöltés dátuma: 2025.11.01.
  •  
Családi ház

Eladó ház, Vecsés

Keresés azonosító alapján: HI-2453315
  • Vecsés
  • Alapterület: 72 m²
  • Telekterület: 360 m²
  • Ár: 49 500 000 Ft (128 238 €)
  • Feltöltés dátuma: 2025.08.02.
  •  
Családi ház

Eladó ház, Budapest 18. ker.

Keresés azonosító alapján: HI-2468527
  • Budapest XVIII.
  • Alapterület: 152 m²
  • Telekterület: 400 m²
  • Ár: 159 900 000 Ft (414 249 €)
  • Feltöltés dátuma: 2025.09.02.
  •  
Facebook
Blogger
Twitter
Tweets by hasznaltingatla
Flickr