Eladó ház Budapest 18. ker., Bókaytelep

Ingatlan azonosító: HI-2523546

Budapest - Budapest XVIII., Családi ház


270 000 000 Ft (760 563 €)

  • Hirdetés feladója: Ingatlaniroda
  • Pontos cím: Budapest XVIII.
  • Típus: Eladó
  • Belső irodai azonosító: H512314-5124272
  • Alapterület: 290 m²
  • Telekterület: 745 m² ( 207 négyszögöl )
  • Építés éve: 2000
  • Egész szobák száma (12 m² felett): 9 db
  • Félszobák száma (6-12 m² között): 0 db
  • Fürdőszobák száma: 3 db
  • Ingatlan állapota: jó állapotú
  • Fűtés: gáz (cirko)
  • Pince: nincs
  • Akadálymentesített: nincs
  • Energiatanúsítvány: E
  • Napelem van?: nincs
  • Légkondicionáló: nincs

Leírás

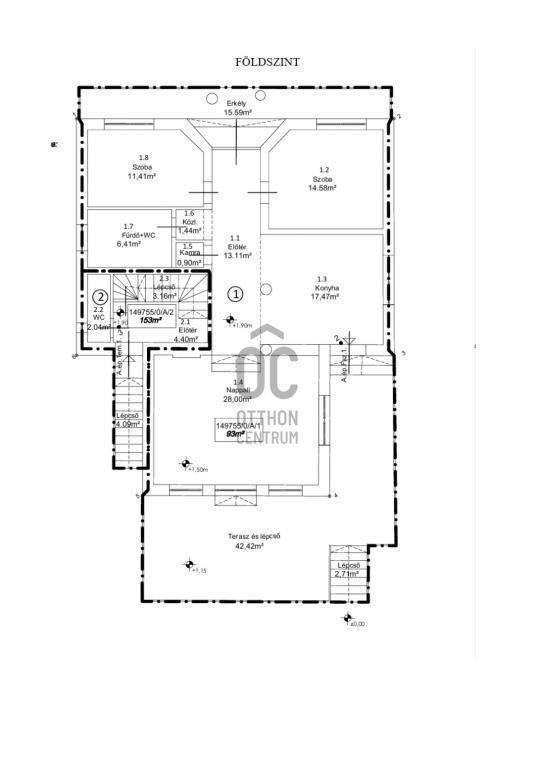
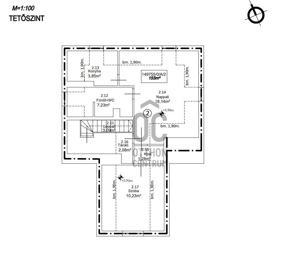
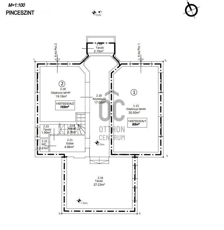
Fedezd fel ezt a különleges lehetőséget Budapest 18. kerületében! Ez a kiváló állapotban lévő ház tökéletes választás lehet számodra, ha tágas, kényelmes otthonra vágysz, vagy éppen befektetési céllal keresel ingatlant. A körbejárható ház egy 745 m2-es telken helyezkedik el, így a kertben bőven van hely a szabadidős tevékenységekre vagy a gyerekek játékára, grillezésre. Az ingatlan lakóterülete 246 m2, ami bőséges teret biztosít a családod számára, itt mindenki megtalálhatja a saját kis zugát. A 42 m2-es terasz csodás lehetőséget kínál a kültéri pihenésre, ahol élvezheted a napsütést vagy a friss levegőt. A főépületben 2 külön bejárattal, 2 generációnak van hely. Az egyik lakás a földszinten lett kialakítva, 2 hálószobával, nagy nappalival, konyha, fürdőszoba wc-vel és egy külön wc-vel. Ebben a lakásban 3 inverteres klíma adja a meleget/hideget. A második lakrész az első emeleten és a tetőtérben kapott helyet. 3 nagy hálószoba, nappali-konyha, közlekedő és egy fürdőszoba wc-vel, illetve egy külön wc is kialakításra került. A tetőtérben 2 nagy szoba, fürdő-wc és egy kis konyha található. A melegről kondenzációs kazán gondoskodik, a melegvizet egy 1000 literes tartályban napkollektor melegít. A harmadik generáció egy külön épületben, a kert hátuljában kapott helyet. Nappali-konyha, hálószoba és fürdőszoba-wc. Ez a lakrész 44 m2-es, gáz cirkó fűtéses. A pince alapterülete 106 m2, de ez is ketté lett osztva. Az ingatlan teljeskörű felújításon esett át, mely jelenleg is zajlik. Az ingatlan körüli zöldövezetek és parkok ideális helyszínt biztosítanak a családi programokhoz és a szabadidős tevékenységekhez. Ez a ház nem csupán egy ingatlan, hanem egy lehetőség, hogy egy igazán otthonos és barátságos környezetben éld az életed. Legyen szó saját otthonról vagy befektetési lehetőségről, ez az ingatlan minden igényedet kielégíti. Ne habozz, hiszen az ilyen lehetőségek gyorsan elkelnek! Ha kérdéseid lennének, vagy szeretnéd megtekinteni ezt a csodás ingatlant, bátran keress meg! Az energetikai tanúsítvány készítése folyamatban van, amint rendelkezésre áll, úgy azzal a hirdetés frissítésre kerül. Referenciaszám: H512314 Az energetikai tanúsítvány készítése folyamatban van, amint rendelkezésre áll, úgy azzal a hirdetés frissítésre kerül. Az energetikai tanúsítvány készítése folyamatban van, amint rendelkezésre áll, úgy azzal a hirdetés frissítésre kerül. Referencia szám: H512314-HI

E-mail küldése a hirdetőnek

Hibás hirdetés bejelentése

Sikeres elküldtük a hiba bejelentést.

Hirdető adatai

Bittera Viktória
E-mail cím: bittera.viktoria@oc.hu
Telefonszám: +36 70 388 5031
Otthon Centrum
Hirdetés feladója: Ingatlaniroda
Ingatlaniroda: Otthon Centrum
E-mail cím: 21.kerulet@oc.hu
Telefonszám: +36 1 618 4170

Képek



Térkép


Ajánlott ingatlanok

Családi ház

Eladó ház Budapest 18. ker., Erzsébettelep

Keresés azonosító alapján: HI-2405519
  • Budapest XVIII.
  • Alapterület: 310 m²
  • Telekterület: 728 m²
  • Ár: 179 000 000 Ft (504 225 €)
  • Feltöltés dátuma: 2025.04.23.
  •  
Családi ház

Eladó ház Budapest 23. ker., Soroksár

Keresés azonosító alapján: HI-2399809
  • Budapest XXIII.
  • Alapterület: 315 m²
  • Telekterület: 1 441 m²
  • Ár: 174 500 000 Ft (491 549 €)
  • Feltöltés dátuma: 2025.04.05.
  •  
Családi ház

Eladó ház Budapest 18. ker., Szemeretelep

Keresés azonosító alapján: HI-2269392
  • Budapest XVIII.
  • Alapterület: 200 m²
  • Telekterület: 535 m²
  • Ár: 159 000 000 Ft (447 887 €)
  • Feltöltés dátuma: 2024.07.31.
  •  
Családi ház

Eladó ház Budapest 19. ker., Kispest

Keresés azonosító alapján: HI-2445790
  • Budapest XIX.
  • Alapterület: 120 m²
  • Telekterület: 375 m²
  • Ár: 89 990 000 Ft (253 493 €)
  • Feltöltés dátuma: 2025.07.16.
  •  
Facebook
Blogger
Twitter
Tweets by hasznaltingatla
Flickr