Eladó ház Budapest 18. ker., Miklóstelep

Ingatlan azonosító: HI-2505719

Budapest - Budapest XVIII., Családi ház


165 000 000 Ft (427 461 €)

  • Hirdetés feladója: Ingatlaniroda
  • Pontos cím: Budapest XVIII.
  • Típus: Eladó
  • Belső irodai azonosító: H509799-5093105
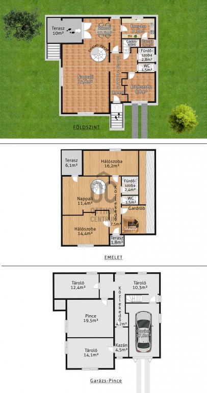
  • Alapterület: 170 m²
  • Telekterület: 659 m² ( 183 négyszögöl )
  • Építés éve: 1990
  • Egész szobák száma (12 m² felett): 5 db
  • Félszobák száma (6-12 m² között): 0 db
  • Fürdőszobák száma: 2 db
  • Ingatlan állapota: jó állapotú
  • Fűtés: gáz (cirko)
  • Pince: nincs
  • Akadálymentesített: nincs
  • Napelem van?: nincs
  • Légkondicionáló: nincs

Leírás

Megvételre kínálok a XVIII. ker. Miklóstelepi részen egy 1990-ben épült, 659 nm-es telken elhelyezkedő, összesen 242 nm-es, háromszintes, téglaépítésű, jó állapotú családi házat. Átmenő forgalomtól mentes saroktelken helyezkedik el körbejárható, kíváncsi szemektől védett kerttel. Az ingatlan minden igényt kielégít: 5 szoba, 2 fürdőszoba , külön wc, három erkély, szauna szoba, riasztóval védett. A belső terek rendkívül tudatos kialakítással, otthonos hangulattal rendelkeznek. Az alsó szinten tágas nappali, kényelmes konyha, egy szoba, fürdőszoba, külön wc és közlekedő található. Az emeletre elegáns csigalépcső vezet, ahol három szoba, egy fürdőszoba, külön wc, szauna szoba és tágas közlekedő biztosítja az otthon kényelmét. Már csak egy család hiányzik , hogy újra élettel teljen meg. Nem feltétlenül igényel teljes körű felújítást, de kisebb esztétikai vagy funkcionális beavatkozásokkal (festés, kisebb javítások, modernizálás) az állapota és az értéke tovább javítható, és igazán kellemes otthonná alakítható. Az ingatlan fűtését cirkó- és padlófűtés biztosítja, amit még kiegészít CASCADE split klíma is. A pince szinten garázs (elektromos kapuval), valamint két további helyiség található. A kertben akár két autó fedett beállása megoldott. Az épület 35 cm-es porotherm téglából épült, betonfödémes, cseréptetős és napelemmel felszerelt. Tömegközlekedés: 93, 93A, 198, 217, 217E, 200E buszok a közelben elérhetők. Várom megtisztelő hívását, akár hétvégén is!

E-mail küldése a hirdetőnek

Hibás hirdetés bejelentése

Sikeres elküldtük a hiba bejelentést.

Hirdető adatai

Kissné Nagy Tímea
E-mail cím: kissne.nagytimea@oc.hu
Telefonszám: +36 70 469 3156
Otthon Centrum
Hirdetés feladója: Ingatlaniroda
Ingatlaniroda: Otthon Centrum
E-mail cím: outca@oc.hu
Telefonszám: +36 70 518 6655

Képek



Térkép


Ajánlott ingatlanok

Családi ház

Eladó ház Törökbálint, Tükörhegy

Keresés azonosító alapján: HI-2515667
  • Törökbálint
  • Alapterület: 363 m²
  • Telekterület: 719 m²
  • Ár: 320 000 000 Ft (829 016 €)
  • Feltöltés dátuma: 2026.01.02.
  •  
Családi ház

Eladó ház Budapest 3. ker., Aranyhegy

Keresés azonosító alapján: HI-2341394
  • Budapest III.
  • Alapterület: 200 m²
  • Telekterület: 1 400 m²
  • Ár: 320 000 000 Ft (829 016 €)
  • Feltöltés dátuma: 2024.12.05.
  •  
Családi ház

Eladó ház Budapest 21. ker., Királyerdő

Keresés azonosító alapján: HI-2515670
  • Budapest XXI.
  • Alapterület: 66 m²
  • Telekterület: 668 m²
  • Ár: 89 900 000 Ft (232 902 €)
  • Feltöltés dátuma: 2026.01.02.
  •  
Családi ház

Eladó ház Budapest 17. ker., Rákoscsaba

Keresés azonosító alapján: HI-2470432
  • Budapest XVII.
  • Alapterület: 450 m²
  • Telekterület: 938 m²
  • Ár: 240 000 000 Ft (621 762 €)
  • Feltöltés dátuma: 2025.09.04.
  •  
Facebook
Blogger
Twitter
Tweets by hasznaltingatla
Flickr