Eladó ház, Budapest 2. ker.

Ingatlan azonosító: HI-2479429

Budapest - Budapest II., Kastély


480 000 000 Ft (1 233 933 €)

  • Hirdetés feladója: Ingatlaniroda
  • Pontos cím: Budapest II.
  • Típus: Eladó
  • Belső irodai azonosító: HZ027941-4851867
  • Alapterület: 625 m²
  • Telekterület: 661 m² ( 184 négyszögöl )
  • Építés éve: 2000
  • Egész szobák száma (12 m² felett): 1 db
  • Félszobák száma (6-12 m² között): 0 db
  • Ingatlan állapota: jó állapotú
  • Fűtés: gáz (cirko)
  • Pince: nincs
  • Akadálymentesített: nincs
  • Napelem van?: nincs
  • Légkondicionáló: nincs

Leírás

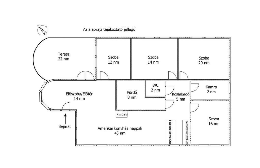
BUDALIGET KÖZKEDVELT RÉSZÉN, PANORÁMÁS, MEDENCÉS, HÁROM GENERÁCIÓS VILLA!!Budapest II kerület Budaliget városrészben, a Francia iskola közelében, a Remetehegy oldalában teraszosan beépített telken, az 1990-es években klasszikus stílusban épült, kitűnően karbantartott, a Pilisi hegyekre örök panorámás villaépület eladó.Az épület nettó 507 m2 , bruttó 650 nm alapterületű 4+2 (tetőtér, gépház) szintes, a hozzá tartozó telek 660 m2 (19mx 35m,). A villaépület tagozódása a következő:Az utca szinten levő előkertből nyíló földszinten található a bejárat, közlekedő,egy dolgozószoba, egy hálószoba, fürdőszoba és külön WC-mosdó, egyszalon és egy könyvtárszoba erkéllyel. Gyönyörű faragott fa lépcső köti össze a ház É-Ny-i sarkában a teljesen szeparálható emeleteket. A földszinttől egy szinttel lejjebb található az 5 állásos garázs, a kazánház, egy előszoba, egy nappali étkező, egy konyha, egy vendég hálószoba, fürdőszoba és külön WC/mosdó.Egy szinttel még lejjebb a kert szinten wellness részleg: fűtött vízforgatós, ellenáramoltatóval felszerelt 10mx4m medence (alatta gépház szint), öltöző, tároló és fürdőszoba, teljes szélességében eltolható üvegajtókkal megnyitva a hangulatos, napos, szépen gondozott, magas tujákkal körbevett kertre. A ház teraszosan a hegyoldalra simuló beton oldala, dupla szigetelést kapott.Az emeleten Miele gépekkel felszerelt konyha étkezővel, nappali panorámás erkéllyel, három hálószoba, egy Ravak sarokkádas fürdőszoba, külön WC-mosdó.A jelenleg nem használt, Velux tetőtéri ablakokkal, víz-, és elektromos kiállással ellátott kb. 90 m2 (1.5 m feletti terület) tetőtér beépíthető. A ház körbenapozott, elegáns állítható fa zsalugáter ajtók és reluxák védik a naptól. Az épületben egyedi tervezésű, rendkívül dekoratív finn vörösfenyő ablakok és nyílászárók kerültek beépítésre. Mindkét konyha beépített bútorokkal, tűzhellyel, elszívóval, mosogatógéppel és hűtővel felszerelt. A hálószobákban és egyéb helyiségekben beépített szekrénye segíti a tárolást.A ház nagy részében padlófűtés van, míg a hálószobákban radiátorok biztosítják a meleget. A helyiségek burkolata funkciójuknak megfelelően változatos, faparketta, szalagparketta, kő, csempe és szőnyegpadló egyaránt megtalálható. A teraszok kültéri járólappal burkoltak. A házban továbbá központi porszívó, kiépített vízlágyító rendszer, kiépített riasztó és wi-fi rendszer került beépítésre. A kert parkosított, öntözőrendszerrel ellátott. Az ingatlanban elektromos kapu és elektromos garázsajtó üzemel.Közlekedése kiváló, a Hűvösvölgyi villamos végállomás és P+R 5 perc alatt, SzéllKálmán tér 25 perc alatt elérhető. Buszmegálló 5 perc séta. HÜVI Bevásárlóközpont,LIDL, SPAR,,TECO-Express, posta, gyógyszertár, óvodák, bölcsődék, iskolák mind megtalálhatók a közelben. Csendes, nyugodt zöldövezet, távol a város zajától, de mégis közel mindenhez. Az ingatlan kitűnő elhelyezkedése végett kiváló befektetés, a szintek szeparálhatósága miatt pedig kiválóan alkalmas több generációnak és követségei rezidenciának is.In Budapest II district, Budaliget area, near the French school, on a terraced plot onthe side of Remete Hill, a well-maintained villa , built in classical style in the 1990s,with an eternal panoramic view of the Pilisi Mountains is for sale.The building has a net floor area of ​​507 m2 (without the attic and engine room), agross floor area of ​​650 m2, 4 + 2 (attic, engine room) floors, the plot is 660 m2 (19mx35m,). The division of the building is as follows: On the ground floor, which opens from the front garden on the street level, there isan entrance, a corridor, a study, a bedroom, a bathroom and a separate toilet, alounge and a library room with a balcony. A beautiful carved wooden staircaseconnects the fully separable floors in the north-west corner of the house. One level below the ground floor is the 5-car garage, the boiler room, an entrancehall, a living-dining room, a kitchen, a guest bedroom, a bathroom and a separatetoilet / sink.One level further down on the garden level wellness area: heated, circulating,counter-current equipped 10mx4m pool (with engine room a further level down),dressing room, storage and bathroom, opening with full width sliding glass doors ontothe cosy, sunny, well-kept garden surrounded by high thuja bushes for privacy. Theterraced house rolls down on the hillside built on a concrete base with doubleinsulation.Upstairs Miele kitchen with dining area, living room with panoramic balcony, threebedrooms, a bathroom with Ravak corner bath, separate toilet.The currently unused approx. 90m2 attic with fitted Velux attic-windows, water andelectric outlet, needs internal cladding.The house is very bright, surrounded by elegant adjustable wooden shutter doorsand blinds to protect from the sun. The building has uniquely designed, highlydecorative Finnish larch windows and doors.Both kitchens have built-in furniture, a stove, extractor, dishwasher and refrigerator.Built-in wardrobes in bedrooms and other rooms help with storage.Most of the house has underfloor heating, while the bedrooms have radiators. Thefloor covering of the rooms is varied according to their function, wood parquet, stripparquet, stone, tile and carpet floor can all be found. The terraces are covered withoutdoor tiles.The house also has a central vacuum cleaner, a built-in water softening system, analarm and a wi-fi system. The garden is landscaped and equipped with an irrigationsystem. The property has an electric gate and an electric garage door.Great transport: Hűvösvölgy tram terminal and P + R can be reached in 5 minutes,Széll Kálmán square in 25 minutes. Bus stop 5 minutes walk. HÜVI Shopping Center,LIDL, SPAR ,, TECO-Express, post office, pharmacy, kindergartens, nurseries,schools can all be found nearby. Quiet, calm suburban area.The property is goodinvestment due to its excellent location, and well separable floors, it is suitable forseveral generations , or as a residence for embassies. Hívjon bizalommal, hétvégén is - +3620 4066872 Referencia szám: HZ027941

E-mail küldése a hirdetőnek

Hibás hirdetés bejelentése

Sikeres elküldtük a hiba bejelentést.

Hirdető adatai

Szabó-Sári Boglárka
E-mail cím: sz.sari.boglarka@dh.hu
Telefonszám: +36204066872
Duna House
Hirdetés feladója: Ingatlaniroda
Ingatlaniroda: Duna House
E-mail cím: fot@dh.hu
Telefonszám: +36705774328

Képek



Térkép


Ajánlott ingatlanok

Kastély

Eladó ház, Zamárdi

Keresés azonosító alapján: HI-2478893
  • Zamárdi
  • Alapterület: 250 m²
  • Telekterület: 10 646 m²
  • Ár: 360 000 000 Ft (925 450 €)
  • Feltöltés dátuma: 2025.09.24.
  •  
Tégla lakás

Eladó lakás, Budapest 14. ker.

Keresés azonosító alapján: HI-2481712
  • Budapest XIV.
  • Alapterület: 114 m²
  • Ár: 99 000 000 Ft (254 499 €)
  • Feltöltés dátuma: 2025.09.30.
  •  
Családi ház

Eladó ház, Vác

Keresés azonosító alapján: HI-2479070
  • Vác
  • Alapterület: 160 m²
  • Telekterület: 1 495 m²
  • Ár: 159 900 000 Ft (411 054 €)
  • Feltöltés dátuma: 2025.09.24.
  •  
Tégla lakás

Eladó lakás, Budapest 8. ker.

Keresés azonosító alapján: HI-2479229
  • Budapest VIII.
  • Alapterület: 66 m²
  • Ár: 110 000 000 Ft (282 776 €)
  • Feltöltés dátuma: 2025.09.24.
  •  
Facebook
Blogger
Twitter
Tweets by hasznaltingatla
Flickr