Eladó ház Budapest 2. ker., Remetekertváros

Ingatlan azonosító: HI-2519632

Budapest - Budapest II., Ikerház


249 900 000 Ft (661 111 €)

  • Hirdetés feladója: Ingatlaniroda
  • Pontos cím: Budapest II.
  • Típus: Eladó
  • Belső irodai azonosító: H505923-5119681
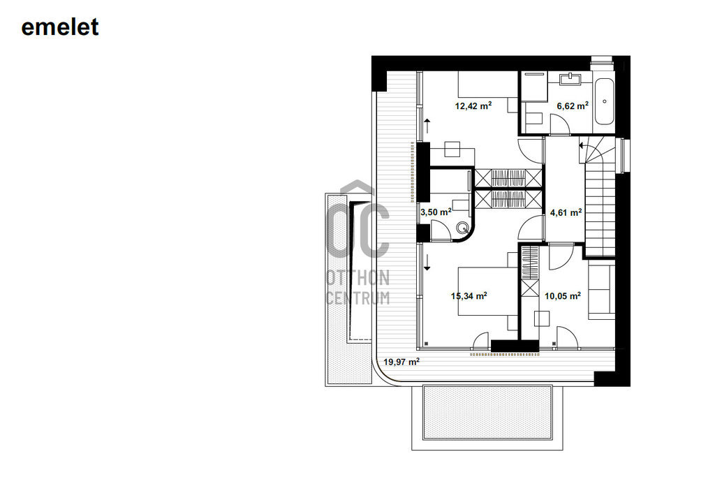
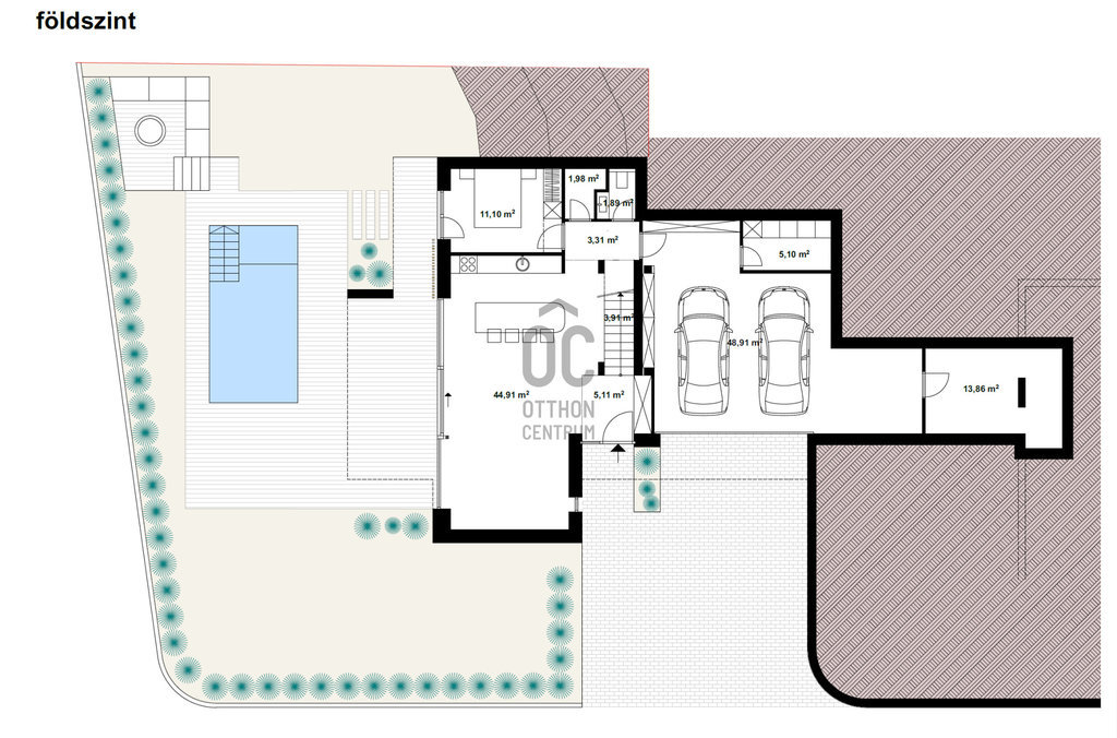
  • Alapterület: 217 m²
  • Telekterület: 535 m² ( 149 négyszögöl )
  • Építés éve: 2018
  • Egész szobák száma (12 m² felett): 5 db
  • Félszobák száma (6-12 m² között): 0 db
  • Fürdőszobák száma: 3 db
  • Ingatlan állapota: jó állapotú
  • Komfort: összkomfortos
  • Fűtés: gáz (cirko)
  • Pince: nincs
  • Akadálymentesített: nincs
  • Napelem van?: nincs
  • Légkondicionáló: nincs

Leírás

Engedje meg, hogy bemutassam Önnek ezt a páratlan lehetőséget: egy háromszintes, 217 m² nettó / 279 m² bruttó alapterületű, teljeskörűen felújított prémium ikerházat, amely tökéletes választás lehet nagycsaládosok számára, akik a tágas tereket és a természetközeli luxuskörnyezetet keresik. Az ingatlan a II. kerület egyik legnyugodtabb, legbiztonságosabb kertvárosi részén, Remetekertvárosban található, ahol a panoráma és a csend ideális harmóniát alkot. Miért érdemes megtekintenie ezt az ingatlant? 1.Tágas terek, 5 szoba + 3 fürdőszoba – minden családtag számára külön világ, ahol otthonosan érezheti magát. 2.50 m²-es nappali–étkező–konyha – egybenyitott, fényárban úszó tér, kétirányú teraszkapcsolattal. 3.Wellness és szauna tér – igény esetén medence vagy jakuzzi kialakítható, a szauna pedig edzőteremként is hasznosítható. 4.Minden szintről lenyűgöző panoráma – a budai hegyek látványa minden nap új élményt nyújt. 5.535 m²-es telek – saját kerttel, amely ideális pihenésre, családi összejövetelekre vagy reprezentatív környezet kialakítására. 6.Zsákutca végi elhelyezkedés – teljes nyugalom és biztonság, távol a forgalom zajától. 7.Kiváló parkolási lehetőség – garázs és további két nyitott beállóhely biztosítja a kényelmet. Műszaki és komfort extrák Hőszigetelt, 3 rétegű üvegezés – kiváló energetikai mutatók Napkollektoros melegvíz-ellátás Gépesített, prémium konyha a vételárban Szintenként vizes helyiség Átgondolt, családbarát alaprajz Lokáció és infrastruktúra Remetekertváros barátságos, családi házas környezetében található, ahol minden fontos szolgáltatás – iskola, óvoda, bevásárlási lehetőségek – rövid autóúttal elérhető. A nyugodt környék és a kiváló közlekedési kapcsolatok ideális kombinációt nyújtanak mindennapi élethez. Ne halassza el ezt a ritka lehetőséget! Tekintse meg személyesen, rugalmas időpontban – akár hétvégén is! Hívjon most, és biztosítsa magának ezt az értékes ingatlant! Hitelválasztás egyszerűen Hitelezési szakértőnk egyetlen lépésben összegzi és bemutatja Önnek a 8 piacvezető pénzintézet ajánlatát. Ezáltal Önnek nem kell hosszadalmas, felesleges banki körutakat tennie – minden releváns információt azonnal, egy helyen megkap. 1.Gyorsaság és hatékonyság – percek alatt átláthatja a legjobb lehetőségeket. 2.Biztonságos döntés – szakértői támogatással biztos lehet benne, hogy a választása valóban az Ön érdekeit szolgálja. 3.Kényelmes folyamat – elkerülheti a sorban állást, az időrabló egyeztetéseket és a felesleges stresszt. Az eredmény: Ön a legkedvezőbb ajánlatot választhatja ki, miközben időt és energiát takarít meg – mindezt szakértői háttérrel, teljes biztonságban. Ez az ingatlan a Hűség csomag megbízási portfólióhoz tartozik. Részletek az Otthon Centrum weboldalán.

E-mail küldése a hirdetőnek

Hibás hirdetés bejelentése

Sikeres elküldtük a hiba bejelentést.

Hirdető adatai

Baucsek Károly
E-mail cím: baucsek.karoly@oc.hu
Telefonszám: +36 70 716 8166
Otthon Centrum
Hirdetés feladója: Ingatlaniroda
Ingatlaniroda: Otthon Centrum
E-mail cím: benefitline@oc.hu
Telefonszám: +36 70 454 3830

Képek



Térkép


Ajánlott ingatlanok

Családi ház

Eladó ház Üllő

Keresés azonosító alapján: HI-2529742
  • Üllő
  • Alapterület: 164 m²
  • Telekterület: 558 m²
  • Ár: 177 000 000 Ft (468 254 €)
  • Feltöltés dátuma: 2026.02.03.
  •  
Családi ház

Eladó ház Üröm

Keresés azonosító alapján: HI-2519292
  • Üröm
  • Alapterület: 181 m²
  • Telekterület: 632 m²
  • Ár: 189 900 000 Ft (502 381 €)
  • Feltöltés dátuma: 2026.01.08.
  • klímás
Tégla lakás

Eladó lakás Budapest 2. ker., Pasarét

Keresés azonosító alapján: HI-2519635
  • Budapest II.
  • Alapterület: 53 m²
  • Ár: 119 000 000 Ft (314 815 €)
  • Feltöltés dátuma: 2026.01.09.
  •  
Panel lakás

Eladó lakás Budapest 3. ker., Békásmegyer

Keresés azonosító alapján: HI-2535078
  • Budapest III. Zsirai Miklós utca
  • Alapterület: 57 m²
  • Ár: 68 900 000 Ft (182 275 €)
  • Feltöltés dátuma: 2026.02.11.
  •  
Facebook
Blogger
Twitter
Tweets by hasznaltingatla
Flickr