Eladó ház, Budapest 22. ker.

Ingatlan azonosító: HI-2490089

Budapest - Budapest XXII., Ikerház


149 900 000 Ft (386 340 €)

  • Hirdetés feladója: Ingatlaniroda
  • Pontos cím: Budapest XXII. Dukát utca
  • Típus: Eladó
  • Belső irodai azonosító: HZ031701-5063481
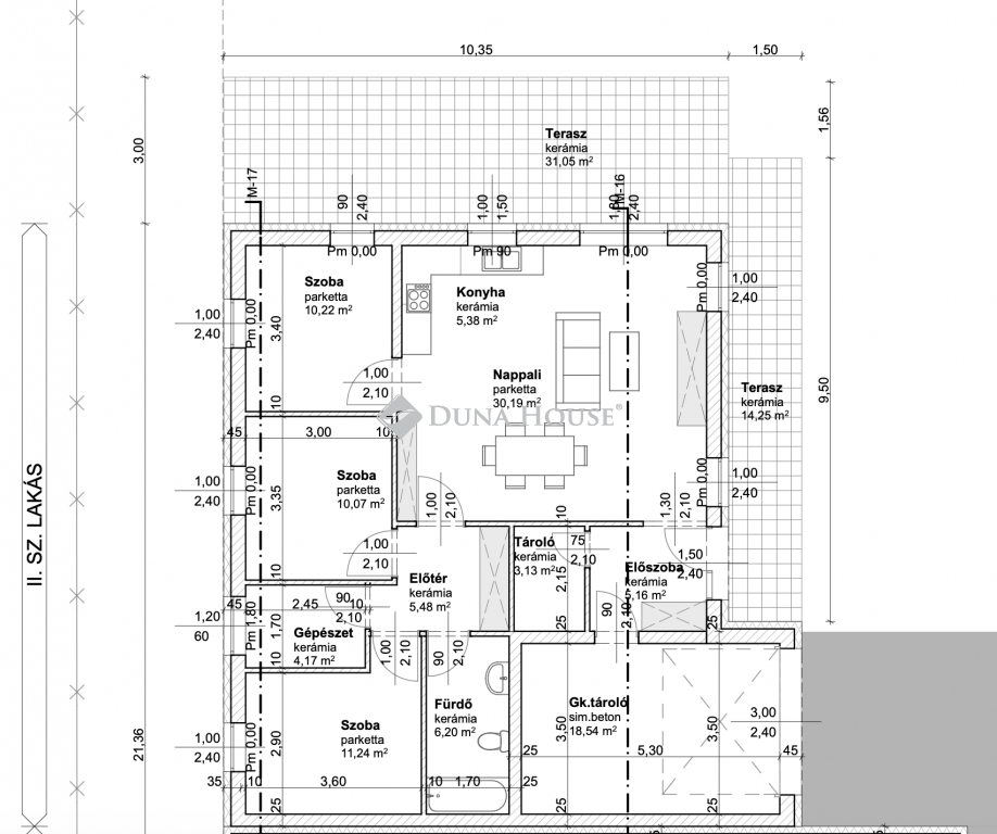
  • Alapterület: 132 m²
  • Telekterület: 705 m² ( 196 négyszögöl )
  • Építés éve: 2025
  • Egész szobák száma (12 m² felett): 4 db
  • Félszobák száma (6-12 m² között): 0 db
  • Fürdőszobák száma: 1 db
  • Ingatlan állapota: új építésű
  • Fűtés: egyéb
  • Pince: nincs
  • Akadálymentesített: nincs
  • Napelem van?: nincs
  • Légkondicionáló: nincs

Leírás

PRÉMIUM MINIMAL IKERHÁZ ELADÓ A 22.KERÜLETBEN! 3 MÉTERES BELMAGASSÁGGAL ! Budapest 22.kerületének Óhegy keresett részen prémium minőségű ikerház épül. Az épületek dupla fallal és légréssel elválasztva, így semmilyen hang nem zavarhatja a nyugalmát. Szolgalmi úttal Az ingatlant a 2025-ös év kedvezményes feltételeivel tudja megvásárolni, az építkezés céges.CSOK Plusz igényelhető és Illeték kedvezmény egyaránt. Foglalja le már most leendő otthonát 10%-al. Az építkezés hamarosan kezdetét veszi. A környéken rengeteg referencia ház, amit közösen megtekinthetünk, ami segíti a döntést.Az ingatlan nettó hasznos lakótér 91,24 m2 + 18,54 m2-es 1 állásos garázs + 45,30 m2 terasz és saját 705 m2 kertkapcsolattal. A helyiségek napfényesek, köszönhetően a jó tájolásnak és a jó méretű egyedi nyílászáróknak. Elosztását tekintve:- Előszoba- 3 jó méretű hálószoba- Tágas amerikai konyhás nappali- Fürdőszoba- Külön mellékhelyiség- Háztartási helyiség- 45,30 m2 Terasz- 705 m2-es saját kertEXTRÁK:- Mennyezet hűtés-fűtésMűszaki adatok:- 30-as Porotherm tégla, 10 cm Ytong válaszfalak- 15 cm grafitos homlokzati szigetelés- Panasonic hőszivattyú 300 literes használati meleg víz tartállyal, minden lakásnak külön hőszivattyú berendezés- H- tarifás mérőszekrény kialakítás- Minden helyiségben padlófűtés- Betoncserép- 3 rétegű 6 légkamrás nyílászárók, kívül antracit kivitelben- 1 db autónak térkövezett kocsibeálló- Riasztó előkészítése- Szaniterek- Hideg/meleg burkolatok ( 10 000 Ft/m2 meleg: 10 000 Ft/ m2 )- Beltéri ajtók- Bejárati ajtó Ezek mind kiemelkedő minőségben és az átlagnál magasabb áron választhatóak. Árlista tőlem kérhető.Az építkezés megtekintése után minden a házzal kapcsolatos dokumentáció rendelkezésre áll. Vállalkozó garantáltan megbízható, rugalmas, rengeteg referencia munkával, amit közösen megtudunk tekinteni a nagy döntés előtt.Környék rendezett, minden perceken belül elérhető. Iskola, óvoda, bevásárlási lehetőségek, MO. Várható átadás: 2026 Tavasz További információkért hívjon bizalommal.

E-mail küldése a hirdetőnek

Hibás hirdetés bejelentése

Sikeres elküldtük a hiba bejelentést.

Hirdető adatai

Gosztonyi Éva
E-mail cím: gosztonyi.eva@dh.hu
Telefonszám: +36301266992
Duna House
Hirdetés feladója: Ingatlaniroda
Ingatlaniroda: Duna House
E-mail cím: istenhegyi@dh.hu
Telefonszám: +3612250102

Képek



Térkép


Ajánlott ingatlanok

Ikerház

Eladó ház, Budapest 2. ker.

Keresés azonosító alapján: HI-2490093
  • Budapest II. Cseppkő utca
  • Alapterület: 210 m²
  • Telekterület: 450 m²
  • Ár: 348 000 000 Ft (896 907 €)
  • Feltöltés dátuma: 2025.10.16.
  •  
Ikerház

Eladó ház, Budapest 3. ker.

Keresés azonosító alapján: HI-2443810
  • Budapest III. Vizimenta utca
  • Alapterület: 260 m²
  • Telekterület: 450 m²
  • Ár: 340 000 000 Ft (876 289 €)
  • Feltöltés dátuma: 2025.07.11.
  •  
Ikerház

Eladó ház, Budapest 2. ker.

Keresés azonosító alapján: HI-2479944
  • Budapest II. Kossuth Lajos utca
  • Alapterület: 145 m²
  • Telekterület: 447 m²
  • Ár: 220 000 000 Ft (567 010 €)
  • Feltöltés dátuma: 2025.09.24.
  •  
Ikerház

Eladó ház, Budapest 2. ker.

Keresés azonosító alapján: HI-2340222
  • Budapest II. Hidegkúti út
  • Alapterület: 157 m²
  • Telekterület: 600 m²
  • Ár: 249 000 000 Ft (641 753 €)
  • Feltöltés dátuma: 2024.12.03.
  •  
Facebook
Blogger
Twitter
Tweets by hasznaltingatla
Flickr