Eladó ház, Budapest 22. ker.

Ingatlan azonosító: HI-2417083

Budapest - Budapest XXII., Ikerház


139 900 000 Ft (364 323 €)

  • Hirdetés feladója: Ingatlaniroda
  • Pontos cím: Budapest XXII.
  • Típus: Eladó
  • Belső irodai azonosító: HZ081299-4940556
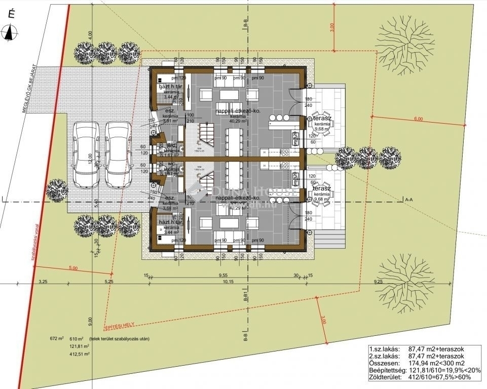
  • Alapterület: 96 m²
  • Telekterület: 300 m² ( 83 négyszögöl )
  • Építés éve: 2025
  • Egész szobák száma (12 m² felett): 4 db
  • Félszobák száma (6-12 m² között): 0 db
  • Fürdőszobák száma: 1 db
  • Ingatlan állapota: új építésű
  • Komfort: összkomfortos
  • Fűtés: egyéb
  • Pince: nincs
  • Akadálymentesített: nincs
  • Energiatanúsítvány: A+
  • Napelem van?: nincs
  • Légkondicionáló: van

Leírás

**ÚJÉPÍTÉSŰ IKERHÁZFÉL A 22. KERÜLETBEN** Fedezze fel Budapest 22. kerületében ezt a különleges ajánlatot: egy újépítésű ikerházfelet, amely egyaránt ideális választás családoknak és befektetőknek. Az ingatlan a közkedvelt Bartók Béla utcában található, amely tökéletesen ötvözi a kertvárosi nyugalmat és a város közelségét. Tulajdonságok A nettó 87,5 négyzetméteres lakótér kiváló tervezésű, két szinten elhelyezkedő otthon, amely négy szobával és egy tágas nappalival rendelkezik. A két terasz még több lehetőséget kínál a pihenésre vagy családi összejövetelekre. Emellett egy saját, 300 négyzetméteres kert és egy kocsibeálló is a rendelkezésére áll. Az energiatakarékos hőszivattyús rendszer garantálja az alacsony fűtési és hűtési költségeket, így hosszú távon fenntartható és gazdaságos megoldást kínál. Rugalmasság a kivitelezésben Jelen állapotában még lehetősége van a belső terek testreszabására, kiválaszthatja a burkolatokat és szanitereket, így teljesen az Ön igényeire szabhatja új otthonát. Az építkezést egy megbízható, számos referenciával rendelkező helyi építő cég végzi, biztosítva a minőségi kivitelezést. Kiváló infrastruktúra és elhelyezkedés Elhelyezkedése ideális, hiszen könnyen elérhető a városközpont autóval és tömegközlekedéssel egyaránt. A közelben számos szolgáltatás áll rendelkezésre: iskola, óvoda, gyógyszertár, posta és boltok mind karnyújtásnyira találhatók. A tömegközlekedés kiváló: a 187-es és 941-es buszok megállói rövid sétatávolságra vannak, míg a Budafok vasútállomás gyors kapcsolatot biztosít a Déli pályaudvar felé. Az M0-s autópálya közelsége pedig megkönnyíti a közlekedést az agglomeráció és az ország többi része felé. Kérdése van? Forduljon hozzánk bizalommal! A Duna House teljes kínálatával kapcsolatban forduljanak hozzám bizalommal! Bankfüggetlen pénzügyi szakembereink tanácsadással, ügyintézéssel tudják segíteni Önöket álmaik, céljaik megvalósításában! Vegye igénybe díjmentes konzultációinkat! https://www.facebook.com/otthonkonnyeden Referencia szám: HZ081299

E-mail küldése a hirdetőnek

Hibás hirdetés bejelentése

Sikeres elküldtük a hiba bejelentést.

Hirdető adatai

Drevnó Béla
E-mail cím: drevno.bela@dh.hu
Telefonszám: +36703077503
Duna House
Hirdetés feladója: Ingatlaniroda
Ingatlaniroda: Duna House
E-mail cím: kispest@dh.hu
Telefonszám: +36703077503

Képek



Térkép


Ajánlott ingatlanok

Ikerház

Eladó ház, Budapest 18. ker.

Keresés azonosító alapján: HI-2344674
  • Budapest XVIII.
  • Alapterület: 70 m²
  • Telekterület: 709 m²
  • Ár: 49 900 000 Ft (129 948 €)
  • Feltöltés dátuma: 2024.12.14.
  •  
Ikerház

Eladó ház, Budapest 3. ker.

Keresés azonosító alapján: HI-2345695
  • Budapest III.
  • Alapterület: 193 m²
  • Telekterület: 468 m²
  • Ár: 265 000 000 Ft (690 104 €)
  • Feltöltés dátuma: 2024.12.20.
  •  
Ikerház

Eladó ház, Budapest 2. ker.

Keresés azonosító alapján: HI-2433318
  • Budapest II.
  • Alapterület: 145 m²
  • Telekterület: 447 m²
  • Ár: 220 000 000 Ft (572 917 €)
  • Feltöltés dátuma: 2025.06.20.
  •  
Ikerház

Eladó ház, Herceghalom

Keresés azonosító alapján: HI-2457952
  • Herceghalom
  • Alapterület: 114 m²
  • Telekterület: 1 201 m²
  • Ár: 149 900 000 Ft (390 365 €)
  • Feltöltés dátuma: 2025.08.05.
  •  
Facebook
Blogger
Twitter
Tweets by hasznaltingatla
Flickr