Eladó ház Budapest 23. ker., Soroksár-Újtelep

Ingatlan azonosító: HI-2534527

Budapest - Budapest XXIII., Családi ház


114 900 000 Ft (319 167 €)

  • Hirdetés feladója: Ingatlaniroda
  • Pontos cím: Budapest XXIII. Könyves utca
  • Típus: Eladó
  • Belső irodai azonosító: H505700-5144333
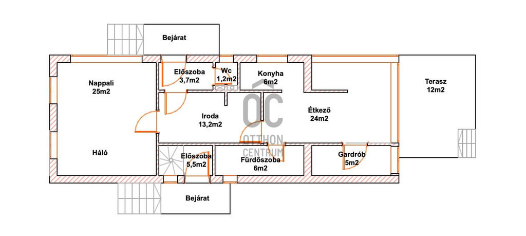
  • Alapterület: 240 m²
  • Telekterület: 1 039 m² ( 289 négyszögöl )
  • Építés éve: 1985
  • Egész szobák száma (12 m² felett): 6 db
  • Félszobák száma (6-12 m² között): 0 db
  • Fürdőszobák száma: 3 db
  • Ingatlan állapota: jó állapotú
  • Komfort: duplakomfortos
  • Fűtés: gáz (cirko)
  • Pince: nincs
  • Akadálymentesített: nincs
  • Napelem van?: nincs
  • Légkondicionáló: nincs

Leírás

Két lakás egy családi házon belül, teljesen külön bejárattal a saját udvarról. Képzelje el, hogy egy csendes, családbarát környéken találja meg álmai otthonát, ahol a tágas terek és a kényelmes életstílus minden napot különlegessé tesz! Budapest 23. kerületében, Soroksár-Újtelepen kínálunk eladásra egy kivételes, használt házat, mely ideális választás családosok számára. Az ingatlan 240 négyzetméteres alapterülettel rendelkezik, és egy 1039 négyzetméteres telken helyezkedik el, ami bőséges teret biztosít a szabadidős tevékenységekhez és a gyerekek játékához. Az ingatlanban összesen 6 szoba található, amelyeket egyedi tervezés jellemez, így minden családtag saját, intim teret élvezhet. A tágas nappali a családi összejövetelek középpontja lehet, míg a három fürdőszoba kényelmet és praktikusságot biztosít a mindennapok során. A 12 négyzetméteres terasz ideális helyszín a reggeli kávézásra vagy a nyári estéken való pihenésre, romantikus hangulatú kertkapcsolattal. A ház egyik része teljes felújításon esett át, a másik rész jó állapotban van, befejezés vár rá. Gáz cirkó fűtéssel rendelkezik, ami gazdaságos és kényelmes fűtési megoldást kínál. Soroksár-Újtelep nem csupán egy csendes és biztonságos lakóhely, hanem remek közlekedési lehetőségekkel is rendelkezik. A környék jól megközelíthető autóval és tömegközlekedéssel egyaránt, így a város többi része könnyen elérhető. A közeli iskolák, óvodák és bevásárlási lehetőségek mind hozzájárulnak ahhoz, hogy a mindennapi élet egyszerűbb és kényelmesebb legyen. Ha Ön is egy olyan ingatlant keres, amely nemcsak otthont, hanem életminőséget is biztosít a családja számára, akkor ez a ház tökéletes választás lehet. Kérjük, ne habozzon kapcsolatba lépni velünk, ha bármilyen kérdése van a hirdetéssel vagy az ingatlannal kapcsolatban. Szívesen állunk rendelkezésére, hogy segíthessünk Önnek megtalálni a legjobb megoldást álmai otthona vagy befektetése kapcsán. Az energetikai tanúsítvány készítése folyamatban van, amint rendelkezésre áll, úgy azzal a hirdetés frissítésre kerül. Referencia szám: H505700

E-mail küldése a hirdetőnek

Hibás hirdetés bejelentése

Sikeres elküldtük a hiba bejelentést.

Hirdető adatai

Fejes Hajnalka
E-mail cím: fejes.hajnalka@oc.hu
Telefonszám: +36 70 469 3706
Otthon Centrum
Hirdetés feladója: Ingatlaniroda
Ingatlaniroda: Otthon Centrum
E-mail cím: illyes.anita@oc.hu
Telefonszám: +36 70 454 5077

Képek



Térkép


Ajánlott ingatlanok

Családi ház

Eladó ház Budapest 16. ker., Rákosszentmihály

Keresés azonosító alapján: HI-2468006
  • Budapest XVI. Hársfa utca
  • Alapterület: 170 m²
  • Telekterület: 551 m²
  • Ár: 99 900 000 Ft (277 500 €)
  • Feltöltés dátuma: 2025.09.01.
  •  
Családi ház

Eladó ház Kakucs

Keresés azonosító alapján: HI-2441762
  • Kakucs Fő utca
  • Alapterület: 120 m²
  • Telekterület: 1 475 m²
  • Ár: 45 000 000 Ft (125 000 €)
  • Feltöltés dátuma: 2025.07.06.
  •  
Családi ház

Eladó ház Tóalmás

Keresés azonosító alapján: HI-2475347
  • Tóalmás Jókai utca
  • Alapterület: 360 m²
  • Telekterület: 1 196 m²
  • Ár: 55 000 000 Ft (152 778 €)
  • Feltöltés dátuma: 2025.09.18.
  •  
Családi ház

Eladó ház Vecsés, Andrássy-telep

Keresés azonosító alapján: HI-2535397
  • Vecsés Deák Ferenc utca
  • Alapterület: 66 m²
  • Telekterület: 217 m²
  • Ár: 87 700 000 Ft (243 611 €)
  • Feltöltés dátuma: 2026.02.12.
  •  
Facebook
Blogger
Twitter
Tweets by hasznaltingatla
Flickr