Eladó ház, Bugyi

Ingatlan azonosító: HI-2496329

Pest megye - Bugyi, Ikerház


118 110 000 Ft (305 984 €)

  • Hirdetés feladója: Ingatlaniroda
  • Pontos cím: Bugyi
  • Típus: Eladó
  • Belső irodai azonosító: HZ056936-5074090
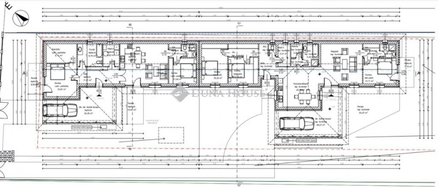
  • Alapterület: 126 m²
  • Telekterület: 767 m² ( 213 négyszögöl )
  • Építés éve: 2025
  • Egész szobák száma (12 m² felett): 4 db
  • Félszobák száma (6-12 m² között): 0 db
  • Fürdőszobák száma: 2 db
  • Ingatlan állapota: új építésű
  • Komfort: duplakomfortos
  • Fűtés: egyéb
  • Pince: nincs
  • Akadálymentesített: nincs
  • Napelem van?: nincs
  • Légkondicionáló: nincs

Leírás

Egy ház, ami valóban a jövőt képviseli okosan, stílusosan, elérhető áron. Ha olyan otthonra vágyik, ami egyszerre modern, energiatakarékos és kényelmes, ez a ház akkor Önre vár! Megbízható, referenciákkal rendelkező kivitelezőtől Bugyi csendes, kertvárosi részén kínálunk eladásra egy tágas, földszintes ikerházfelet nagy, 767 m²-es saját telekkel. A 126 m²-es otthonban nappali + 3 hálószoba, 2 fürdőszoba, külön WC, konyha-étkező, kamra és gardrób találhatók minden a család kényelmét szolgálja. Fedett autóbeálló és több parkolóhely is rendelkezésre áll. Főbb műszaki jellemzők: 30 cm vázkerámia fal + min. 15 cm hőszigetelés 40 cm kőzetgyapot födémszigetelés 2 rétegű hőszigetelt nyílászárók, redőnyökkel és szúnyoghálóval Hőszivattyús padlófűtés, vizes helyiségekben törölközőszárító radiátorral, napelem rendszer Energetikai besorolás: várhatóan AA++ Antracit tető, törtfehér homlokzat A ház korszerű hőszigeteléssel, hőszivattyús fűtéssel és napelemrendszerrel készül, várható AA++ energiabesorolással. A beépített okos otthon rendszer pedig lehetővé teszi, hogy akár a telefonról irányítható a fűtés, világítás vagy biztonsági funkciók. Nyugodt környezet, barátságos szomszédság, minden elérhető a közelben és Budapest is csak 35 percnyire van. Egy otthon, ahol a modern építészet és a jövő technológiája találkozik. Hívjon akár hétvégén is, hogy megmutathassam Önnek álmai ingatlanát. Érd: Tóth Erika email: toth.erika.margit@dh.hu tel.: +36309113284 Referencia szám: HZ056936

E-mail küldése a hirdetőnek

Hibás hirdetés bejelentése

Sikeres elküldtük a hiba bejelentést.

Hirdető adatai

Tóth Erika Margit
E-mail cím: toth.erika.margit@dh.hu
Telefonszám: +36309113284
Duna House
Hirdetés feladója: Ingatlaniroda
Ingatlaniroda: Duna House
E-mail cím: dunaharaszti@dh.hu
Telefonszám: +3624958661

Képek



Térkép


Ajánlott ingatlanok

Ikerház

Eladó ház, Szigetszentmárton

Keresés azonosító alapján: HI-2471489
  • Szigetszentmárton
  • Alapterület: 82 m²
  • Telekterület: 180 m²
  • Ár: 69 900 000 Ft (181 088 €)
  • Feltöltés dátuma: 2025.09.07.
  •  
Ikerház

Eladó ház, Szigetbecse

Keresés azonosító alapján: HI-2488134
  • Szigetbecse
  • Alapterület: 105 m²
  • Telekterület: 457 m²
  • Ár: 84 900 000 Ft (219 948 €)
  • Feltöltés dátuma: 2025.10.10.
  •  
Ikerház

Eladó ház, Budapest 19. ker.

Keresés azonosító alapján: HI-2472123
  • Budapest XIX.
  • Alapterület: 98 m²
  • Telekterület: 200 m²
  • Ár: 119 900 000 Ft (310 622 €)
  • Feltöltés dátuma: 2025.09.10.
  •  
Ikerház

Eladó ház, Dunavarsány

Keresés azonosító alapján: HI-2460692
  • Dunavarsány
  • Alapterület: 95 m²
  • Telekterület: 870 m²
  • Ár: 98 000 000 Ft (253 886 €)
  • Feltöltés dátuma: 2025.08.12.
  •  
Facebook
Blogger
Twitter
Tweets by hasznaltingatla
Flickr