Eladó ház, Cegléd

Ingatlan azonosító: HI-2502650

Pest megye - Cegléd, Ikerház


54 800 000 Ft (143 081 €)

  • Hirdetés feladója: Ingatlaniroda
  • Pontos cím: Cegléd Budai út
  • Típus: Eladó
  • Belső irodai azonosító: HZ052140-5077690
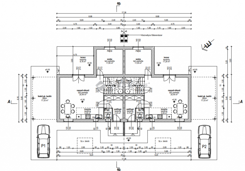
  • Alapterület: 83 m²
  • Telekterület: 458 m² ( 127 négyszögöl )
  • Építés éve: 2025
  • Egész szobák száma (12 m² felett): 4 db
  • Félszobák száma (6-12 m² között): 0 db
  • Fürdőszobák száma: 1 db
  • Ingatlan állapota: új építésű
  • Fűtés: egyéb
  • Pince: nincs
  • Akadálymentesített: nincs
  • Napelem van?: nincs
  • Légkondicionáló: nincs

Leírás

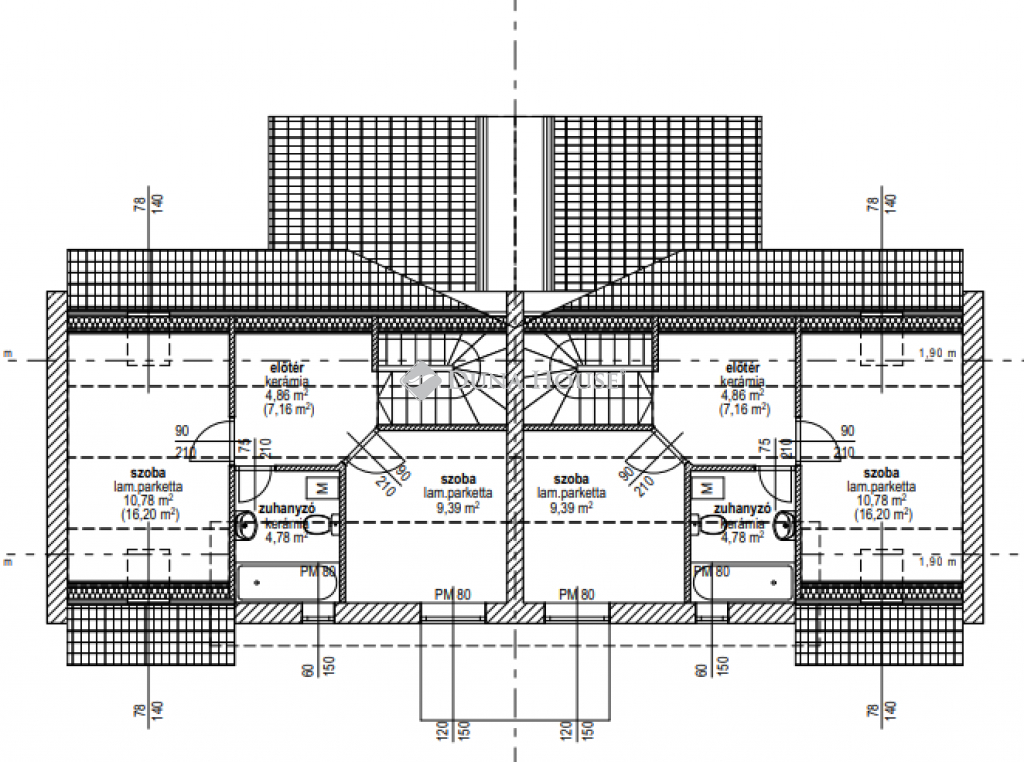
Megvételre kínálunk Cegléden egy 83,3 m2-es újépítésű, önálló-saját kertrésszel rendelkező ikerházfelet.Az épület beton alapra, VIABLOKK téglából, 3 rétegű műanyag nyílászárókkal, beton födémmel, fa tetőszerkezettel és cserépfedéssel épül.Az épület fűtését hőszivattyús rendszer biztosítja, padlófűtésen keresztül.Helyiségeket tekintve kialakításra kerül a(z)földszinten: teraszkapcsolatos amerikai-konyhás nappali, egy hálószoba, előtér, WC, és egy tároló a lépcső alatt.emeleten: 2 darab hálószoba, előtér, fürdő WC-vel.Hideg/meleg burkolatok 6.000 HUF/m2-ig,beltéri ajtók 70.000 HUF/darab-ig,belső falszínek jelenleg még választhatók.A telek mérete kb. 458 m2, melyen ehhez a lakáshoz, egy 17,33 m2-es fedett autóbeálló is létesítésre kerül.Várható átadás időpontja: 2025.12.A KIVITELEZŐ A KÖRNYÉKEN SZÁMOS REFERENCIA MUNKÁVAL RENDELKEZIK, MELYEKET SZÍVESEN BEMUTATUNK AZ ÉRDEKLŐDŐKNEK!Ajánlatom megfelelne az elvárásainak, de nem rendelkezik a kiválasztott ingatlan teljes vételárával?A Credipass munkatársai kötelezettség nélkül állnak rendelkezésére.Hiteltanácsadónk DÍJMENTES. Hétvégén is várom megtisztelő hívását!

E-mail küldése a hirdetőnek

Hibás hirdetés bejelentése

Sikeres elküldtük a hiba bejelentést.

Hirdető adatai

Balázs Tibor
E-mail cím: balazs.tibor1@dh.hu
Telefonszám: +36203159528
Duna House
Hirdetés feladója: Ingatlaniroda
Ingatlaniroda: Duna House
E-mail cím: gyal@dh.hu
Telefonszám: +36706593342

Képek



Térkép


Ajánlott ingatlanok

Ikerház

Eladó ház, Cegléd

Keresés azonosító alapján: HI-2502641
  • Cegléd Akácos utca
  • Alapterület: 46 m²
  • Telekterület: 250 m²
  • Ár: 15 000 000 Ft (39 164 €)
  • Feltöltés dátuma: 2025.11.17.
  •  
Ikerház

Eladó ház, Cegléd

Keresés azonosító alapján: HI-2502618
  • Cegléd Árpa utca
  • Alapterület: 64 m²
  • Telekterület: 260 m²
  • Ár: 53 500 000 Ft (139 687 €)
  • Feltöltés dátuma: 2025.11.17.
  •  
Ikerház

Eladó ház, Hernád

Keresés azonosító alapján: HI-2502583
  • Hernád Váradi út
  • Alapterület: 124 m²
  • Telekterület: 3 270 m²
  • Ár: 49 900 000 Ft (130 287 €)
  • Feltöltés dátuma: 2025.11.17.
  •  
Ikerház

Eladó ház, Gyál

Keresés azonosító alapján: HI-2502601
  • Gyál Somogyi Béla utca
  • Alapterület: 60 m²
  • Telekterület: 300 m²
  • Ár: 33 500 000 Ft (87 467 €)
  • Feltöltés dátuma: 2025.11.17.
  •  
Facebook
Blogger
Twitter
Tweets by hasznaltingatla
Flickr