Eladó ház, Ceglédbercel

Ingatlan azonosító: HI-2554386

Pest megye - Ceglédbercel, Családi ház


99 900 000 Ft (275 207 €)

  • Hirdetés feladója: Ingatlaniroda
  • Pontos cím: Ceglédbercel
  • Típus: Eladó
  • Belső irodai azonosító: HZ015192-5184373
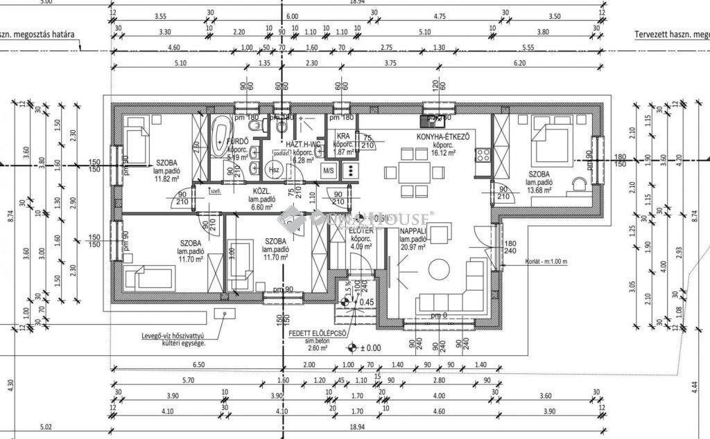
  • Alapterület: 110 m²
  • Telekterület: 1 575 m² ( 438 négyszögöl )
  • Építés éve: 2026
  • Egész szobák száma (12 m² felett): 5 db
  • Félszobák száma (6-12 m² között): 0 db
  • Fürdőszobák száma: 1 db
  • Ingatlan állapota: új építésű
  • Fűtés: egyéb
  • Pince: nincs
  • Akadálymentesített: nincs
  • Napelem van?: nincs
  • Légkondicionáló: nincs

Leírás

ÚJ ÉPÍTÉSŰ CSALÁDI HÁZ KULCSRAKÉSZEN Ceglédbercelen, Aranyhegy utcában.Eladó egy 110m2-es családi ház, nappali + 4 szoba, nagy méretű, 1575 m²-es telken - az ár a telekkel együtt értendő!Ár: kulcsrakészen, terasz, konyhabútor és lámpatestek nélkülKiemelt előnyök:-ELŐFINANSZÍROZÁS lehetősége csak az elkészült ütemek után kell fizetni.-ÁRGARANCIA és kötbér vállalás a kivitelezőtőlMűszaki tartalom:Teherhordó falazat: Wienerberger Porotherm 30 N+FHomlokzati hőszigetelés: 15 cmTetőhéjazat választható: Leier Toscana tetőcserép választható színbenKülső nyílászárók: 3 réteg üvegezésű, kívül antracit, belül fehér prémium Gealan S8000 külső nyílászárók, 36 mm-es üvegezéssel + antracit, alumínium redőnyök + antracit műkő párkányVálaszfal: Wienerberger Porotherm 10 tégla válaszfalBejárati ajtó választható: Colorplast standard betéttelTeraszajtó: Dupla szárnyasBeltéri ajtó: Borovi Szicília (dekorfóliás) választható színbenHidegburkolat választható: 6.500 Ft / m2Melegburkolat választható: 6.000 Ft / m2Szaniterek választható: (kád, zuhanykabin, csaptelep stb.) 460.000Ft-igGépészet: Bosch 3400 levegő-víz hőszivattyú vizes padlófűtésselAz ár kulcsrakész állapotban történő átadással értendő, konyhabútor és lámpatestek nélkül!Közművek:Gáz: nincsVillany: ingatlanbanCsatorna: ingatlanbanVíz: ingatlanban Érd: Novák Krisztina +36/30-882-4935 email: krisztina.novak@dh.hu A Duna House teljes kínálatával kapcsolatosan forduljon hozzám bizalommal! Referencia szám: HZ015192-HI

E-mail küldése a hirdetőnek

Hibás hirdetés bejelentése

Sikeres elküldtük a hiba bejelentést.

Hirdető adatai

Novák Krisztina
E-mail cím: krisztina.novak@dh.hu
Telefonszám: +36308824935
Duna House
Hirdetés feladója: Ingatlaniroda
Ingatlaniroda: Duna House
E-mail cím: gyomro@dh.hu
Telefonszám: +3629263520

Képek



Térkép


Ajánlott ingatlanok

Családi ház

Eladó ház, Gyömrő

Keresés azonosító alapján: HI-2352778
  • Gyömrő
  • Alapterület: 340 m²
  • Telekterület: 3 127 m²
  • Ár: 219 000 000 Ft (603 306 €)
  • Feltöltés dátuma: 2025.01.02.
  •  
Családi ház

Eladó ház, Pilis

Keresés azonosító alapján: HI-2533626
  • Pilis
  • Alapterület: 127 m²
  • Telekterület: 550 m²
  • Ár: 96 900 000 Ft (266 942 €)
  • Feltöltés dátuma: 2026.02.06.
  •  
Családi ház

Eladó ház, Albertirsa

Keresés azonosító alapján: HI-2554388
  • Albertirsa
  • Alapterület: 48 m²
  • Telekterület: 2 525 m²
  • Ár: 9 990 000 Ft (27 521 €)
  • Feltöltés dátuma: 2026.03.25.
  •  
Családi ház

Eladó ház, Gyömrő

Keresés azonosító alapján: HI-2520709
  • Gyömrő
  • Alapterület: 166 m²
  • Telekterület: 691 m²
  • Ár: 89 900 000 Ft (247 658 €)
  • Feltöltés dátuma: 2026.01.13.
  •  
Facebook
Blogger
Twitter
Tweets by hasznaltingatla
Flickr