Eladó Ház, Csongrád

Ingatlan azonosító: HI-2524171

Csongrád megye - Csongrád, Családi ház


79 900 000 Ft (224 438 €)

  • Hirdetés feladója: Ingatlaniroda
  • Pontos cím: Csongrád
  • Típus: Eladó
  • Belső irodai azonosító: M319711-5120040
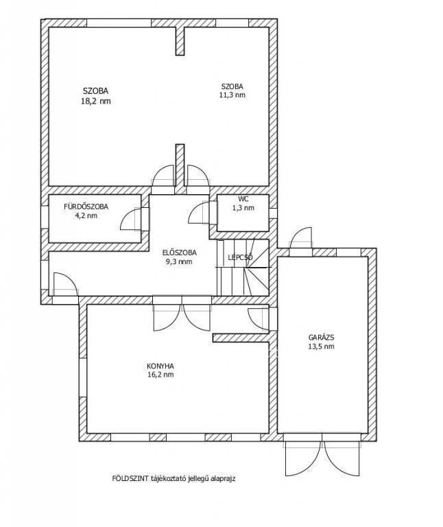
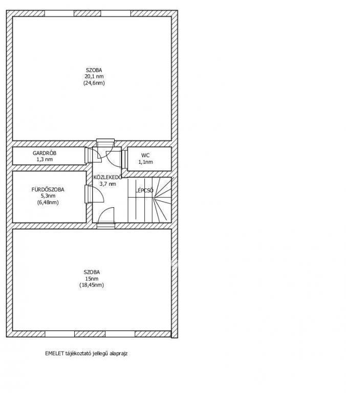
  • Alapterület: 120 m²
  • Telekterület: 734 m² ( 204 négyszögöl )
  • Építés éve: 1990
  • Egész szobák száma (12 m² felett): 3 db
  • Félszobák száma (6-12 m² között): 1 db
  • Ingatlan állapota: jó állapotú
  • Komfort: duplakomfortos
  • Fűtés: gáz (cirko)
  • Pince: nincs
  • Akadálymentesített: nincs
  • Napelem van?: nincs
  • Légkondicionáló: nincs

Leírás

** CSAK AZ OTP INGATLANPONT KÍNÁLATÁBAN! *** Eladóvá vált egy 1990-ben épült tégla szerkezetű dupla komfortos családi ház a városközpont közelében 734 m2 telken.LIDL, PEPCO, KIK a közelben. A ház tetőtér beépítéses 3 és fél szobás, kiváló elosztásával alkalmas akár egy nagyobb család számára is. A nappaliban hangulatos cserépkályha biztosít kellemes meleget a hidegebb hónapokban, mellette pedig gáz-központi fűtés is üzemel, ami a kényelmet szolgálja. A fa nyílászárók dupla üvegezésűek, redőnnyel felszereltek. A kert rendezett, karbantartott, alkalmas pihenésre, kerti sütögetésre és a fedett kerti kiülő biztosítja a teret a családi, baráti összejövetelekre.1 kocsiállásos garázs is van, melyet a főépületen belülről is meg lehet közelíteni. A házhoz tartozik még egy több mint 100 m2-es 6 helyiségből álló tornácos épület, egykor lakásként szolgált, ma felújításra szorul. Kiváló lehetőség üzlethelyiség létrehozására is. Önálló bejárattal rendelkezik. Amennyiben felkeltettem érdeklődését, hívjon bizalommal! Az OTP Ingatlanpont teljes körű ügyintézéssel áll az eladók és vevők rendelkezésére. A kínálatunkból választott ingatlan finanszírozásához kedvezményes hitelkonstrukciót biztosítunk. Az OTP Banknál elérhető Otthon Start Hitelprogram, Babaváró, falusi CSOK, CSOK Plusz hitel és egyéb kölcsönök intézését díjmentesen vállaljuk. Az adásvételi szerződés megkötéséhez igény szerint ügyvédet biztosítunk. Irodáink Csongrád, Fő utca 54. szám és Szentes, Petőfi utca 12. (buszmegálló felől) várjuk a személyes érdeklődőket. Válasszuk ki együtt az Önnek legmegfelelőbb ajánlatot banki sorban állás nélkül! Az energetikai tanúsítvány készítése folyamatban van, amint rendelkezésre áll, úgy azzal a hirdetés frissítésre kerül. Referencia szám: M319711-HI

E-mail küldése a hirdetőnek

Hibás hirdetés bejelentése

Sikeres elküldtük a hiba bejelentést.

Hirdető adatai

Arnoth-Kuczora Eszter
E-mail cím: eszter.arnoth-kuczora@otpip.hu
Telefonszám: +36-30-472-6467
OTPip
Hirdetés feladója: Ingatlaniroda
Ingatlaniroda: OTPip
E-mail cím: szentes@otpip.hu
Telefonszám: +36302233606

Képek



Térkép


Ajánlott ingatlanok

Családi ház

Eladó Ház, Hódmezővásárhely

Keresés azonosító alapján: HI-2566694
  • Hódmezővásárhely
  • Alapterület: 190 m²
  • Telekterület: 457 m²
  • Ár: 105 000 000 Ft (294 944 €)
  • Feltöltés dátuma: 2026.05.01.
  •  
Családi ház

Eladó Ház, Baks

Keresés azonosító alapján: HI-2548717
  • Baks
  • Alapterület: 128 m²
  • Telekterület: 3 098 m²
  • Ár: 42 000 000 Ft (117 978 €)
  • Feltöltés dátuma: 2026.03.11.
  •  
Családi ház

Eladó Ház, Kondoros

Keresés azonosító alapján: HI-2545529
  • Kondoros
  • Alapterület: 150 m²
  • Telekterület: 887 m²
  • Ár: 25 000 000 Ft (70 225 €)
  • Feltöltés dátuma: 2026.03.03.
  •  
Családi ház

Eladó Ház, Körösladány

Keresés azonosító alapján: HI-2545512
  • Körösladány
  • Alapterület: 75 m²
  • Telekterület: 1 630 m²
  • Ár: 11 000 000 Ft (30 899 €)
  • Feltöltés dátuma: 2026.03.03.
  •  
Facebook
Blogger
Twitter
Tweets by hasznaltingatla
Flickr