Eladó Ház, Csongrád

Ingatlan azonosító: HI-2557173

Csongrád megye - Csongrád, Családi ház


125 000 000 Ft (348 189 €)

  • Hirdetés feladója: Ingatlaniroda
  • Pontos cím: Csongrád
  • Típus: Eladó
  • Belső irodai azonosító: M323911-5190877
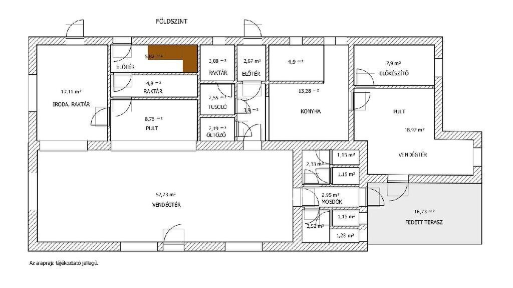
  • Alapterület: 258 m²
  • Telekterület: 609 m² ( 169 négyszögöl )
  • Építés éve: 1985
  • Egész szobák száma (12 m² felett): 6 db
  • Félszobák száma (6-12 m² között): 1 db
  • Ingatlan állapota: felújított
  • Komfort: összkomfortos
  • Fűtés: gáz (cirko)
  • Pince: nincs
  • Akadálymentesített: nincs
  • Napelem van?: nincs
  • Légkondicionáló: van

Leírás

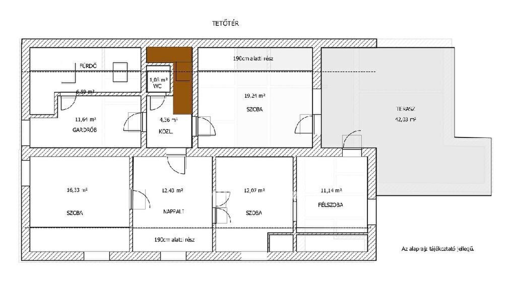
------ Kizárólag az OTP Ingatlanpontnál! ------ Többféle hasznosítási lehetőséget kínáló ingatlan eladó Csongrádon, forgalmas, bejáratott helyen! A 258m2 hasznos alapterületű teljeskörűen felújított és korszerűsített ingatlan földszinti része nettó 163m2 alapterületű, eredetileg vendéglátó funkcióra lett kialakítva, de akár üzletnek, irodának is kiválóan alkalmas lehet. A tetőtérben kialakított külön bejáratú lakás hasznos (190cm belmagasságot elérő) alapterülete 95m2, amely 5 lakószobát, gardrób szobát, fürdőszobát, WC-t foglal magában, valamint egy hangulatos, tágas (40m2-es), részben fedett terasz növeli az életteret, ahová 2 szobából is kijuthatunk. Az ingatlan napelemmel felszerelt így a központi fűtés villany kazánról gazdaságosan üzemeltethető, de gázkazán, vegyes tüzelésű kazán, valamint gázkonvektorok is rendelkezésre állnak. A melegvíz előállítása is többféle módon megoldható. Az ingatlanba több klíma is felszerelésre került. A burkolatok, nyílászárók felújításra kerültek, a falazat és a tető is kiváló állapotban van. A 609m2-es szépen parkosított telken egy garázs is megtalálható. Az épület kívül-belül stílusos, igényes kialakítású, arra vár, hogy a leendő tulajdonosok megtalálják benne a megélhetési és lakhatási lehetőségeiket. A tulajdoni lapon kivett lakóház, üzlet és udvar megnevezéssel szerepel. További információért hívjon bizalommal! Az OTP Ingatlanpont teljes körű ügyintézéssel áll az eladók és vevők rendelkezésére. A kínálatunkból választott ingatlan finanszírozásához kedvezményes hitelkonstrukciót biztosítunk. Az OTP Banknál elérhető Otthon Start Program, Babaváró, falusi CSOK, CSOK Plusz hitel és egyéb kölcsönök intézését díjmentesen vállaljuk. Az adásvételi szerződés megkötéséhez igény szerint ügyvédet biztosítunk. Irodáink Szentes, Petőfi utca 12. a buszmegálló felől, és Csongrád, Fő utca 54. szám alatt várjuk a személyes érdeklődőket. Válasszuk ki együtt az Önnek legmegfelelőbb ajánlatot banki sorban állás nélkül! Legyen Ön is megbízónk, és adja el rajtunk keresztül ingatlanát! Az energetikai tanúsítvány készítése folyamatban van, amint rendelkezésre áll, úgy azzal a hirdetés frissítésre kerül. Referencia szám: M323911-HI

E-mail küldése a hirdetőnek

Hibás hirdetés bejelentése

Sikeres elküldtük a hiba bejelentést.

Hirdető adatai

Vas Edit
E-mail cím: edit.vas@otpip.hu
Telefonszám: +36-70-402-4029
OTPip
Hirdetés feladója: Ingatlaniroda
Ingatlaniroda: OTPip
E-mail cím: csongrad@otpip.hu
Telefonszám: +36704550993

Képek



Térkép


Ajánlott ingatlanok

Családi ház

Eladó Ház, Tiszakécske

Keresés azonosító alapján: HI-2557203
  • Tiszakécske
  • Alapterület: 54 m²
  • Telekterület: 1 727 m²
  • Ár: 16 900 000 Ft (47 075 €)
  • Feltöltés dátuma: 2026.04.01.
  •  
Családi ház

Eladó Ház, Szentes

Keresés azonosító alapján: HI-2550783
  • Szentes
  • Alapterület: 53 m²
  • Telekterület: 698 m²
  • Ár: 31 000 000 Ft (86 351 €)
  • Feltöltés dátuma: 2026.03.15.
  •  
Családi ház

Eladó Ház, Dévaványa

Keresés azonosító alapján: HI-2507642
  • Dévaványa
  • Alapterület: 77 m²
  • Telekterület: 1 084 m²
  • Ár: 9 000 000 Ft (25 070 €)
  • Feltöltés dátuma: 2025.11.30.
  •  
Családi ház

Eladó Ház, Abony

Keresés azonosító alapján: HI-2467888
  • Abony
  • Alapterület: 146 m²
  • Telekterület: 850 m²
  • Ár: 59 150 000 Ft (164 763 €)
  • Feltöltés dátuma: 2025.08.31.
  •  
Facebook
Blogger
Twitter
Tweets by hasznaltingatla
Flickr