Eladó Ház, Csongrád

Ingatlan azonosító: HI-2546819

Csongrád megye - Csongrád, Családi ház


29 900 000 Ft (83 989 €)

  • Hirdetés feladója: Ingatlaniroda
  • Pontos cím: Csongrád
  • Típus: Eladó
  • Belső irodai azonosító: M322317-5166344
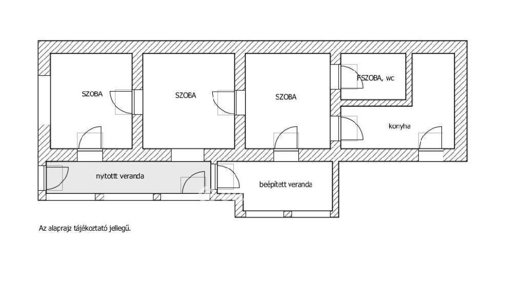
  • Alapterület: 98 m²
  • Telekterület: 724 m² ( 201 négyszögöl )
  • Építés éve: 1950
  • Egész szobák száma (12 m² felett): 3 db
  • Félszobák száma (6-12 m² között): 1 db
  • Ingatlan állapota: felújítandó
  • Komfort: komfortos
  • Fűtés: gáz (konvektor)
  • Pince: nincs
  • Akadálymentesített: nincs
  • Napelem van?: nincs
  • Légkondicionáló: nincs

Leírás

*** CSAK AZ OTP INGATLANPONT KÍNÁLATÁBAN! *** Eladó Csongrád egyik legcsendesebb részén egy 98 nm-es, részben felújított családi ház 724 nm-es telken! Az ingatlanban három kényelmes szoba, nappali, konyha, fürdőszoba, WC és előszoba található, így ideális választás családok számára. A ház felújítása már megkezdődött: egy részében a nyílászárókat és a villanyhálózatot korszerűsítették, így a modernizálás folyamatosan halad. Az új kerítés és az elektromosan nyíló kapu biztosítja a kényelmet és a biztonságot, amit egy kamerarendszer is támogat. A melléképületek kiváló tárolási lehetőséget kínálnak, az udvar rendezett és sokféle felhasználásra alkalmas, legyen szó kertészkedésről, hobbi tevékenységekről vagy akár kültéri pihenőről. Az ingatlan elhelyezkedése kiváló: mindössze egy utcányira található óvoda, iskola, bolt és egyéb szolgáltatások, így a mindennapi élet könnyen és kényelmesen szervezhető. Legújabb szolgáltatásként ajánlom minden kedves ügyfelem részére az OTP Bank által közvetített Babaváró, CSOK PLUSZ, Otthon Start Hitelprogram vagy egyéb kölcsönök intézését. Számos konstrukció közül választhatnak. Irodáink Szentes, Petőfi utca 12. A buszmegálló felől, és Csongrád, Fő utca 54. szám alatt várja a személyes érdeklődőket. ***VÁLASSZUK KI EGYÜTT AZ ÖNNEK LEGMEGFELELŐBB AJÁNLATOT! BANKI SORBAN ÁLLÁS NÉLKÜL! Az adásvételi szerződés megkötéséhez igény szerint megbízható ügyvédi közreműködést biztosítunk, és segítséget nyújtunk az adásvételhez kapcsolódó ügyek intézésénél. Az energetikai tanúsítvány készítése folyamatban van, amint rendelkezésre áll, úgy azzal a hirdetés frissítésre kerül. Referencia szám: M322317-HI

E-mail küldése a hirdetőnek

Hibás hirdetés bejelentése

Sikeres elküldtük a hiba bejelentést.

Hirdető adatai

Petkov Gyöngyi Katalin
E-mail cím: Gyongyi.Petkov@otpip.hu
Telefonszám: +36-20-985-2665
OTPip
Hirdetés feladója: Ingatlaniroda
Ingatlaniroda: OTPip
E-mail cím: csongrad@otpip.hu
Telefonszám: +36704550993

Képek



Térkép


Ajánlott ingatlanok

Családi ház

Eladó Ház, Csongrád

Keresés azonosító alapján: HI-2512795
  • Csongrád
  • Alapterület: 110 m²
  • Telekterület: 383 m²
  • Ár: 39 000 000 Ft (109 551 €)
  • Feltöltés dátuma: 2025.12.16.
  •  
Családi ház

Eladó Ház, Csongrád

Keresés azonosító alapján: HI-2509184
  • Csongrád
  • Alapterület: 238 m²
  • Telekterület: 934 m²
  • Ár: 75 000 000 Ft (210 674 €)
  • Feltöltés dátuma: 2025.12.03.
  • klímás
Családi ház

Eladó Ház, Baks

Keresés azonosító alapján: HI-2546821
  • Baks
  • Alapterület: 128 m²
  • Telekterület: 3 098 m²
  • Ár: 42 000 000 Ft (117 978 €)
  • Feltöltés dátuma: 2026.03.05.
  •  
Családi ház

Eladó Ház, Tiszakécske

Keresés azonosító alapján: HI-2558938
  • Tiszakécske
  • Alapterület: 140 m²
  • Telekterület: 683 m²
  • Ár: 23 990 000 Ft (67 388 €)
  • Feltöltés dátuma: 2026.04.08.
  •  
Facebook
Blogger
Twitter
Tweets by hasznaltingatla
Flickr