Eladó ház, Dabas

Ingatlan azonosító: HI-2537962

Pest megye - Dabas, Ikerház


104 900 000 Ft (286 612 €)

  • Hirdetés feladója: Ingatlaniroda
  • Pontos cím: Dabas
  • Típus: Eladó
  • Belső irodai azonosító: HZ024683-5150326
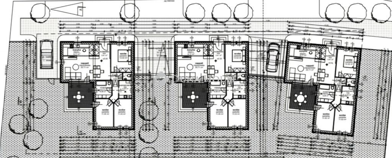
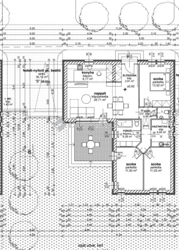
  • Alapterület: 90 m²
  • Telekterület: 500 m² ( 139 négyszögöl )
  • Építés éve: 2026
  • Egész szobák száma (12 m² felett): 4 db
  • Félszobák száma (6-12 m² között): 0 db
  • Fürdőszobák száma: 1 db
  • Ingatlan állapota: új építésű
  • Fűtés: egyéb
  • Pince: nincs
  • Akadálymentesített: nincs
  • Napelem van?: nincs
  • Légkondicionáló: nincs

Leírás

Új építésű ikerház saját kertrésszel eladó!!!Dabason, kertvárosi környezetben mégis központhoz közel, nettó 90,51 nm-es, amerikai konyha nappalis, 3 hálószobás otthon, 500 nm-es telken várja leendő tulajdonosát!Várható kulcsrakész átadás: 2026 ősz!Műszaki tartalom:- 30-as Porotherm tégla- 15 cm-es homlokzati szigetelés- 30 cm födém szigetelés- Bramac betoncserép- 3 rétegű hőszigetelt üveggel ellátott műanyag nyílászárók- hőszivattyú- mindenhol padlófűtés- inverteres klíma- Hideg/meleg burkolatok 6500 Ft/nm áron választhatókBudapest autóval, 30 percen belül elérhető, volánbusszal a Népliget 40-45 perc. Bölcsőde, óvoda, gimnázium, egészségügyi központ, szépségszalon.., és minden igényt kielégítő vásárlási lehetőségek adottak!Igen ez lehet az Ön otthona! Jöjjön, nézzük meg együtt és tegyen rá ajánlatot!Amennyiben ajánlatom megfelelne az elvárásainak, de nem rendelkezik a kiválasztott ingatlan vételárával, a Credipass hitelügyintéző munkatársai díjmentesen biztosítják a legkedvezőbb, személyre szabott hitelkonstrukciót a kedves vevők számára.Keressen bizalommal a hét bármely napján hétvégén és ünnepnapokon is! Referencia szám: HZ024683-HI

E-mail küldése a hirdetőnek

Hibás hirdetés bejelentése

Sikeres elküldtük a hiba bejelentést.

Hirdető adatai

Papp Tiborné Erika
E-mail cím: papp.erika@dh.hu
Telefonszám: +36309523769
Duna House
Hirdetés feladója: Ingatlaniroda
Ingatlaniroda: Duna House
E-mail cím: vecseyutca@dh.hu
Telefonszám: +3617089994

Képek



Térkép


Ajánlott ingatlanok

Ikerház

Eladó ház, Szigetbecse

Keresés azonosító alapján: HI-2489514
  • Szigetbecse
  • Alapterület: 105 m²
  • Telekterület: 457 m²
  • Ár: 84 900 000 Ft (231 967 €)
  • Feltöltés dátuma: 2025.10.15.
  •  
Ikerház

Eladó ház, Halásztelek

Keresés azonosító alapján: HI-2488066
  • Halásztelek
  • Alapterület: 42 m²
  • Telekterület: 400 m²
  • Ár: 44 000 000 Ft (120 219 €)
  • Feltöltés dátuma: 2025.10.10.
  •  
Ikerház

Eladó ház, Szigetszentmiklós

Keresés azonosító alapján: HI-2516516
  • Szigetszentmiklós
  • Alapterület: 109 m²
  • Telekterület: 330 m²
  • Ár: 140 000 000 Ft (382 514 €)
  • Feltöltés dátuma: 2026.01.04.
  •  
Ikerház

Eladó ház, Halásztelek

Keresés azonosító alapján: HI-2452409
  • Halásztelek
  • Alapterület: 120 m²
  • Telekterület: 440 m²
  • Ár: 124 900 000 Ft (341 257 €)
  • Feltöltés dátuma: 2025.08.02.
  •  
Facebook
Blogger
Twitter
Tweets by hasznaltingatla
Flickr